Dieses gepflegte Reihenmittelhaus in der beliebten Rostocker Stadtlage Neubramowstr überzeugt durch eine ruhige Wohnlage und eine durchdachte Raumaufteilung. Auf ca. 163 m² Wohnfläche verteilen sich mehrere helle Zimmer, eine moderne Küche, sowie zwei Badezimmer mit Tageslicht. Der gepflegte Garten mit Terrasse lädt zum Entspannen und Spielen ein. Im dachbereich befindet sich eine weitere terrase mit Sauna. Ideal für Paare und Familien, die stadtnah und dennoch ruhig wohnen möchten. Einkaufsmöglichkeiten, Schulen, und öffentliche Verkehrsmittel befinden sich in unmittelbarer Nähe. Ein Stellplatz direkt am Garten steht zur Verfügung.
Infos
| Haustyp | Reihenmittelhaus |
|---|---|
| Etagenzahl | 3 |
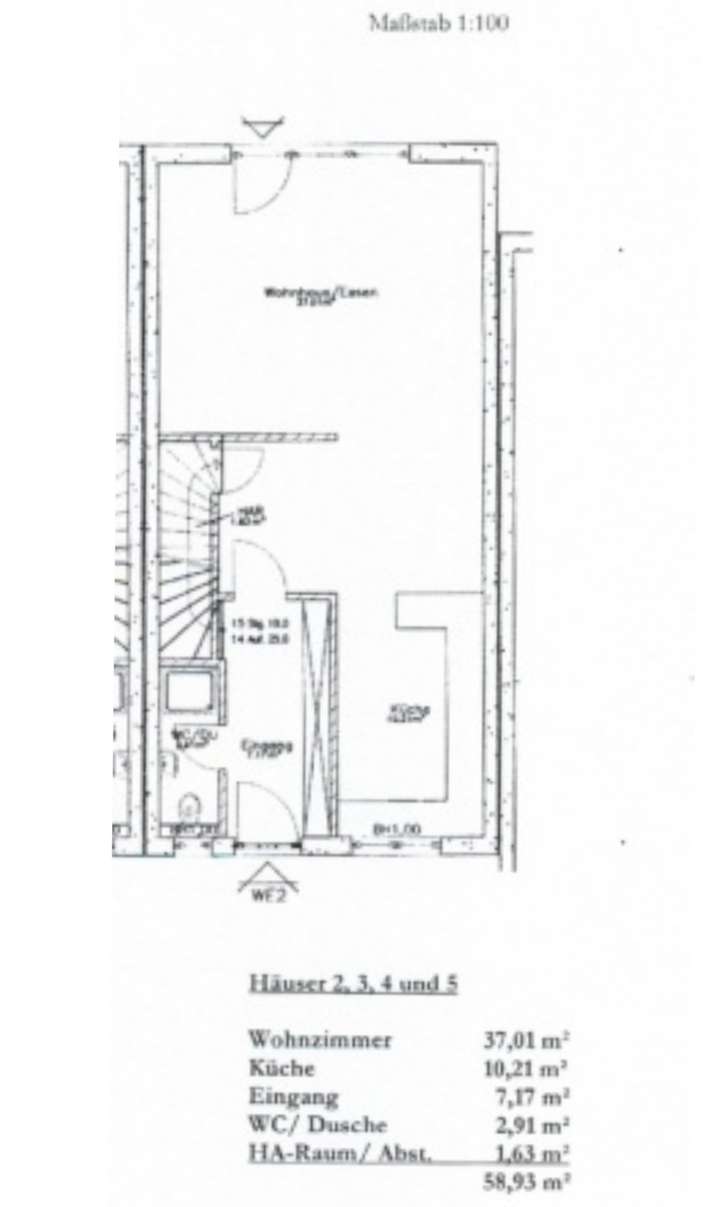
| Wohnfläche ca. | 163 m2 |
| Grundstücksfläche | 184 m2 |
| Bezugsfrei ab | 01.11.2025 |
| Zimmer | 6 |
| Badezimmer | 2 |
| Haustiere | Nach Vereinbarung |
| Garage/Stellplatz | Außenstellplatz |
| Anzahl Garage/Stellplatz | 1 |
Kosten
| Kaltmiete |
3.113 € |
|---|---|
| Nebenkosten | + 130 € |
| Heizkosten | + 80 € |
| Gesamtmiete | 3.323 € (zzgl. Heizkosten) |
| Kaution o. Genossenschaftsanteile | 9339,00 |
Weiter mieten oder doch kaufen?
Wer in Miete wohnt, überweist dem Vermieter im Laufe der Jahre hohe Summen, die sich
auch in die eigenen vier Wände investieren lassen könnten.
Bausubstanz & Energieausweis
| Baujahr | 2009 |
|---|---|
| Objektzustand | Vollständig Renoviert |
| Heizungsart | Etagenheizung |
| Wesentliche Energieträger | Gas |
| Energieausweis | liegt vor |
| Energieausweistyp | Verbrauchsausweis |
| Energieverbrauchskennwert | 67,9 kWh/(m²*a) |
| Energieeffizienzklasse | B |
67,9
kWh/(m²*a)
Energieeffizienzklasse B
- A+
- A
- B
- C
- D
- E
- F
- G
- H
- 0
- 25
- 50
- 75
- 100
- 125
- 150
- 175
- 200
- 225
- >250
Beschreibung des Objekts
Ausstattung
Diese ansprechend ausgestattete Immobilie überzeugt durch zahlreiche Highlights und ein durchdachtes Raumkonzept.
Im Wohnbereich sorgt ein stilvoller Kaminofen für gemütliche Stunden und wohlige Wärme. Die moderne Einbauküche ist funktional und optisch ansprechend gestaltet – ideal für kulinarische Entfaltung.
Die Immobilie verfügt über insgesamt zwei Bäder sowie ein separates Gäste-WC, was insbesondere Familien oder Besuchern höchsten Komfort bietet. Ein praktischer Abstellraum und ein großzügiger Ankleideraum schaffen zusätzlichen Stauraum und Ordnung.
Ein besonderes Highlight ist die Dachterrasse mit integrierter Sauna, die zur privaten Entspannungsoase wird.
Die Beheizung erfolgt über eine effiziente Gasetagenheizung. Für ein angenehmes Wohnklima sorgen Außenjalousien, die gleichzeitig Sicht- und Sonnenschutz bieten.
Die Böden sind mit pflegeleichtem Laminat und Fliesen ausgestattet – eine gelungene Kombination aus Funktionalität und modernem Wohnstil.
Der Garten lädt zum Verweilen und Entspannen im Grünen ein, während die überdachte Terrasse zusätzlichen Raum für gesellige Stunden im Freien bietet. Im Vorgarten befindet sich ein praktisches Gerätehaus für Gartengeräte oder Fahrräder.
Fahrradabstellplätze runden das Angebot ab und machen die Immobilie besonders attraktiv für aktive Bewohner.
Lage
Das Objekt finden Sie in Rostock Kröpeliner Tor Vorstadt. In Laufnähe gibt es mehrere Ärzte, Restaurants, Cafés, Bäckereien und Einkaufszentren. Auch mehrere Modegeschäfte, Fitnessstudios, Bars, Grün- und Parkanlagen und Buchhandlungen erreichen Sie.
Grundriss
IMG_8835[1]
>
>
IMG_9562[1][1]
>
>
IMG_9561[1][1]
>
>
Adresse
Neubramowstr. 19f, 18057 Rostock
Interessante Orte
Preis- und Lageinformationen
Preistrend für Bestandsimmobilien in Kröpeliner Tor Vorstadt