Diese gepflegte Immobilie überzeugt durch Ihre durchdachte Raumaufteilung.
Bei dem schönen, einstöckigen grosszügigen Reihenhaus (8,60 m Breite) handelt es sich um eine Immobilie, die sich durch eine sehr gute, hochwertige Innenausstattung auszeichnet und ab dem 01.11.2025 bezogen werden kann.
Zu dem Objekt zählen neben vier grosszügigen Zimmern, ein Badezimmer und ein separates Gäste-WC.
Der grosszügige Wohnbereich bietet viel Platz für gemütliche Stunden, und geht nahtlos in die perfekt ausgestattete Küche über.
Die beiden Schlafzimmer bieten ausreichend Platz um grosse Kleiderschränke unterbringen zu können.
Das weitere Zimmer im OG kann als Kinder oder Arbeitszimmer genutzt werden.
Besonders toll ist die großzügige Grundstücksgröße von 234 Quadratmetern, die bei schönem Wetter zu einem regelrechten Outdoor-Zimmer werden kann.
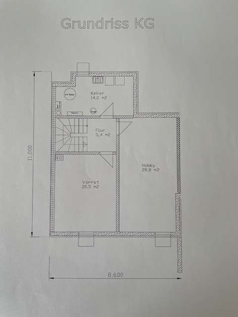
Zur Verfügung stehen Ihnen außerdem eine Luxus Einbauküche sowie 3 grosse Kellerräume.
Baujahr 2009 / gepflegter Bestzustand
KFW 60 Standard - Gastherme mit Solarthermie - geringe Heizkosten über Fussbodenheizung.
Fliesen, neuer Eiche Parkettboden in beiden Schlafzimmern.
Funktionelles Tageslicht Bad mit Wanne, Dusche und separate Toilette, mit Fenster.
2 Abstellräume EG und OG zur Sicherstellung ausreichendem Stauraum
Elektrische Rollläden im EG
Hausstaubsauganlage
Luxus Einbauküche von Siematic.
Neuer Anstrich (innen und aussen.)
2 Stellplätze vor dem Haus plus Garage mit Wallbox in das Haus integriert.
Süd-/ Ost bzw. Nord-/ Westausrichtung
Grosse Terasse plus kleine West-Dachterasse.
Ansprechend angelegter und eingewachsener Garten mit netter Nachbarschaft, somit perfekt für eine langfristige Vermietung.
Freundliches 4 Zimmer-Reihenhaus mit hochwertiger Innenausstattung inkl. EBK in Landsberg am Lech
Gotenstraße 12,
86899 Landsberg am Lech
Auf Karte anzeigen
Infos
| Haustyp | Reihenmittelhaus |
|---|---|
| Etagenzahl | 1 |
| Wohnfläche ca. | 147 m2 |
| Nutzfläche | 200 m2 |
| Grundstücksfläche | 234 m2 |
| Bezugsfrei ab | 29.12.2025 |
| Zimmer | 4 |
| Schlafzimmer | 3 |
| Badezimmer | 1 |
| Haustiere | Nein |
| Garage/Stellplatz | Garage |
| Anzahl Garage/Stellplatz | 1 |
Kosten
| Kaltmiete |
2.395 € |
|---|---|
| Nebenkosten | + 120 € |
| Heizkosten | + 100 € |
| Gesamtmiete | 2.615 € (zzgl. Heizkosten) |
| Miete für Garage/Stellplatz | 85 € |
| Kaution o. Genossenschaftsanteile | 7.185,00 |
Weiter mieten oder doch kaufen?
Wer in Miete wohnt, überweist dem Vermieter im Laufe der Jahre hohe Summen, die sich
auch in die eigenen vier Wände investieren lassen könnten.
Bausubstanz & Energieausweis
| Baujahr | 2009 |
|---|---|
| Letzte Sanierung | 2025 |
| Objektzustand | Gepflegt |
| Qualität der Austattung | Gehoben |
| Heizungsart | Gas-Heizung |
| Wesentliche Energieträger | Gas |
| Energieausweis | liegt vor |
| Energieausweistyp | Verbrauchsausweis |
| Energieverbrauchskennwert | 42,0 kWh/(m²*a) |
| Energieeffizienzklasse | A |
42,0
kWh/(m²*a)
Energieeffizienzklasse A
- A+
- A
- B
- C
- D
- E
- F
- G
- H
- 0
- 25
- 50
- 75
- 100
- 125
- 150
- 175
- 200
- 225
- >250
Beschreibung des Objekts
Lage
Zentrumsnahe, ruhige Lage in einer Spielstrasse,.
Versorger und Schulen in kurzer Entfernung erreichbar.
Grundriss
Erdgeschoss
>
>
Dachgeschoss
>
>
Kellergeschoss
>
>
Adresse
Gotenstraße 12, 86899 Landsberg am Lech
Interessante Orte
Preis- und Lageinformationen
Preistrend für Bestandsimmobilien in Landsberg am Lech