Hier bieten wir eine Maisonnette Wohnung in einem 3 ´Familien Ensemble mit insgesamt 200qm, Wohnfläche. Das Haus hat 7 Zimmer, über 2 Geschosse (EG; OG, DG), ein Zimmer im OG bietet sich als Fitnessraum an, da er eine Sauna beherbergt. Das grosse Büro im hellen Dachgeschoss hat 40qm, ideal für Arbeiten zu Hause, es kann aber auch als eigenständiges Zimmer genutzt werden. Im EG und OG ist jeweils ein Bad. Die Küche ist voll eingerichtet. Es gibt einen sehr schön gepflasterten Innenhof mit Garten nach Süden und überdachtem Freisitz. Das Haus hat keinen Keller, aber im EG Abstellmöglichkeiten für Fahrräder, Waschmaschinen etc von 64qm (zusätzlich) also mehr als genug Platz. Das Haus liegt sehr zentral in Markt Rettenbach und man kann schon mit 5 Gehminuten die wichtigen Einkäufe erledigen. Markt Rettenbach selbst hat Kindergärten und Schulen. Darüberhinaus gibt es um das Ensemble herum Stellplätze und Garagen die separat vermietet werden. Anschauen lohnt sich, denn man kann gar nicht alles beschreiben. Das Haus richtet sich an eine grosse Familie, oder Mehrgenerationen, wo jeder seinen eigenen Bereich haben kann, auch wegen des grossen Büros ist ein Gewerbe möglich, oder aber auch an eine Wohngemeinschaft.
Geräumiges 7-Zimmer-Reihenendhaus /Wohnung mit EBK in Markt Rettenbach
87733 Markt Rettenbach
Die vollständige Adresse der Immobilie erhalten Sie vom Anbieter.
Auf Karte anzeigen
Die vollständige Adresse der Immobilie erhalten Sie vom Anbieter.
Infos
| Haustyp | Reiheneckhaus |
|---|---|
| Etagenzahl | 2 |
| Wohnfläche ca. | 200 m2 |
| Nutzfläche | 250 m2 |
| Grundstücksfläche | 300 m2 |
| Bezugsfrei ab | 1.12.2025 |
| Zimmer | 7 |
| Schlafzimmer | 6 |
| Badezimmer | 2 |
| Haustiere | Ja |
| Garage/Stellplatz | Carport |
| Anzahl Garage/Stellplatz | 3 |
Kosten
| Kaltmiete |
2.000 € |
|---|---|
| Nebenkosten | + 330 € |
| Heizkosten | in Nebenkosten enthalten |
| Gesamtmiete | 2.330 € |
| Miete für Garage/Stellplatz | 200 € |
| Kaution o. Genossenschaftsanteile | 6.9 |
Weiter mieten oder doch kaufen?
Wer in Miete wohnt, überweist dem Vermieter im Laufe der Jahre hohe Summen, die sich
auch in die eigenen vier Wände investieren lassen könnten.
Bausubstanz & Energieausweis
| Letzte Sanierung | 2015 |
|---|---|
| Objektzustand | Saniert |
| Qualität der Austattung | Normal |
| Heizungsart | Gas-Heizung |
| Wesentliche Energieträger | Gas |
| Energieausweis | liegt vor |
Beschreibung des Objekts
Ausstattung
Parkett, Sauna, Hof, sehr geräumig
Lage
Die Immobilie liegt in Markt Rettenbach. In der Umgebung befindet sich Ottobeuren. Fußläufig von der Immobilie entfernt gibt es zwei Bäckereien, zwei Restaurants, zwei Supermärkte und einen Arzt. Zwei Fitnessstudios, eine Grün- und Parkanlage, ein Modegeschäft, eine Bibliothek und eine Apotheke sind ebenso in der Nähe gelegen. Weiter entfernt gibt es außerdem einen Kindergarten. Interessante Kultureinrichtungen erreichen Sie schließlich ebenfalls im größeren Umkreis.
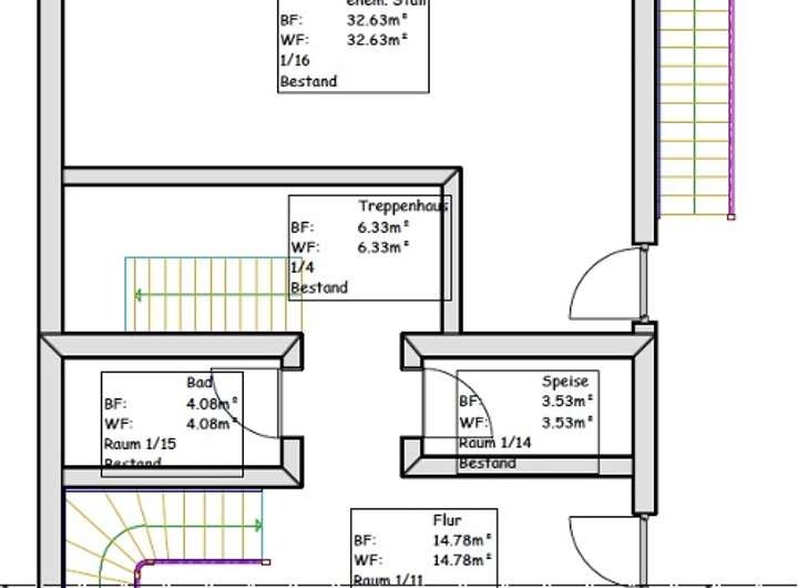
Grundriss
Obergeschoss
>
>
Dachgeschoss
>
>
Erdgeschoss
>
>
Adresse
87733 Markt Rettenbach
Interessante Orte
Preis- und Lageinformationen
Preistrend für Bestandsimmobilien in Markt Rettenbach