Das moderne 10-Familienhaus besticht durch die hellen & modernen Wohnungen in entspannter Vorstadt-Atmosphäre.
Im Dachgeschoss befinden sich lediglich zwei Wohnungen
charmante & helle Neubau-Wohnung | 3,5 ZKB | Einbauküche | Gäste-WC | Dachterrasse *PROVISIONSFREI*
66540 Neunkirchen
Die vollständige Adresse der Immobilie erhalten Sie vom Anbieter.
Auf Karte anzeigen
Die vollständige Adresse der Immobilie erhalten Sie vom Anbieter.
Infos
| Wohnungskategorie | Penthouse |
|---|---|
| Etage | 3 von 3 |
| Wohnfläche ca. | 139 m2 |
| Bezugsfrei ab | 01-2026 |
| Zimmer | 3,5 |
| Schlafzimmer | 2 |
| Badezimmer | 2 |
| Haustiere | Nach Vereinbarung |
| Garage/Stellplatz | Außenstellplatz |
| Anzahl Garage/Stellplatz | 2 |
Kosten
| Kaltmiete |
1.290 € |
|---|---|
| Nebenkosten | + 280 € |
| Heizkosten | in Nebenkosten enthalten |
| Gesamtmiete | 1.570 € |
| Kaution o. Genossenschaftsanteile | 4170 |
Weiter mieten oder doch kaufen?
Wer in Miete wohnt, überweist dem Vermieter im Laufe der Jahre hohe Summen, die sich
auch in die eigenen vier Wände investieren lassen könnten.
Bausubstanz & Energieausweis
| Baujahr | 2024 |
|---|---|
| Letzte Sanierung | 2024 |
| Objektzustand | Neuwertig |
| Qualität der Austattung | Gehoben |
| Heizungsart | Zentralheizung |
| Wesentliche Energieträger | Erdgas leicht |
| Energieausweis | liegt vor |
| Energieausweistyp | Bedarfsausweis |
| Energieverbrauchskennwert | 81,7 kWh/(m²*a) |
| Energieeffizienzklasse | C |
81,7
kWh/(m²*a)
Energieeffizienzklasse C
- A+
- A
- B
- C
- D
- E
- F
- G
- H
- 0
- 25
- 50
- 75
- 100
- 125
- 150
- 175
- 200
- 225
- >250
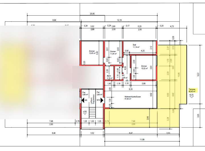
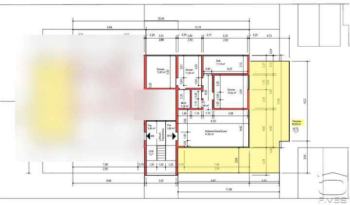
Beschreibung des Objekts
Ausstattung
Die Wohnung befindet sich im Dachgeschoss mit Sichtrichtung zum Vorplatz mit Parkplätzen und verfügt über eine großzügige Dachterrasse.
In der, zum Wohnbereich offenen, Küche ist aktuell eine Einbauküche aus 2024 verbaut. Diese Küche wird für 30 € Aufschlag je Monat mitvermietet.
Die lichtdurchflutete Wohnung hat 3 Zimmer inkl. einem Durchgangszimmer sowie einen knapp 50 m² großen Wohn- & Essbereich, der direkt an die offene Küche anschließt.
Die Küche, der Wohn-/ Essbereich sowie das Schlafzimmer sind mit elektrischen Rollläden ausgestattet.
Das Bad mit bodentiefen, satinierten Fenstern ist mit einer ebenerdigen, gefliesten halboffenen Dusche ausgestattet.
Zudem gibt es ein Gäste-WC mit einem Waschmaschinen- & Trocknerstellplatz.
In der Wohnung befindet sich zudem ein praktischer Abstellraum.
In der gesamten Wohnung ist je Zimmer ein Netzwerkanschluss vorhanden. Zudem wurde zur smarten Lichtsteuerung KNX verbaut.
Lage
Dieser Neubau liegt in einer Nebenstraße in Neunkirchen-Wiebelskirchen in der Nähe der Oster.
Während der ÖPNV & eine Metzgerei fußläufig in zwei Minuten erreichbar sind, gibt es auch zahlreiche Einkaufmöglichkeiten (Discounter & Supermärkte) sowie Ärzte in wenigen Autominuten Entfernung.
Die Neunkircher Innenstadt ist ca. 10 Autominuten entfernt - die Autobahn ebenso.
Hier handelt es sich um die perfekte Lage! Sie leben in dieser Wohnung weit genug von der Innenstadt und deren Lärm & Hektik entfernt, dennoch sind Sie in wenigen Minuten an den verschiedenen Einkaufsmöglichkeiten des täglichen Bedarfs, der Autobahn oder dem Bahnhof.
Direkt um die Ecke laden Feldwege zu entspannten Spaziergängen ein – ob zum Abschalten nach der Arbeit oder für ausgedehnte Runden mit dem Hund im nahegelegenen Wald.
Sonstige Angaben
Besichtigungstermine:
Die Wohnung ist aktuell noch bewohnt und kann nach Absprache besichtigt werden. Besichtigungen sind nach vorheriger Terminabsprache aufgrund der aktuellen Vermietung lediglich montags & mittwochs möglich.
Als Einzugstermin ist aktuell der 15.12.2025 vorgesehen.
Bitte senden Sie uns bei Interesse eine kurze Nachricht mit Angaben zu Ihrer Person, Haushaltsgröße und gewünschtem Einzugstermin – wir setzen uns schnellstmöglich mit Ihnen in Verbindung, um einen individuellen Besichtigungstermin zu vereinbaren.
Für die Anmietung wünscht der Eigentümer Interessenten mit regelmäßigem Einkommen aus einem unbefristeten Arbeitsverhältnis.
In den Anlagen finden Sie unsere Mieterselbstauskunft, die wir vor Vereinbarung eines Besichtigungstermins via Mail oder Chat benötigen.
Weitere Dokumente
B34_Energieausweis_EnEV_2025FIVES_Mieterselbstauskunft_mit
Grundriss
Grundriss
>
>
Adresse
66540 Neunkirchen
Interessante Orte
Preis- und Lageinformationen
Preistrend für Bestandsimmobilien in Neunkirchen