Liebe Interessenten,
wenn Sie ein modernes Zuhause mit ländlichem Charme suchen – einen Ort, an dem Ruhe, Komfort und Technik in Einklang stehen – dann laden wir Sie herzlich ein, dieses besondere Anwesen im Außenbereich von Nottuln-Appelhülsen näher kennenzulernen.
Auf einem ca. 1.800 m² großen Grundstück mit unverbaubarem Blick über weitläufige Felder erwartet Sie ein hochwertig kernsaniertes Wohnhaus in modernstem Zustand. Die Immobilie bietet ca. 140 m² Wohnfläche und überzeugt durch eine durchdachte Raumaufteilung, zeitgemäße Ausstattung sowie zusätzliche Nutzflächen – ideal für Familien oder Paare mit Platzbedarf.
ERDGESCHOSS
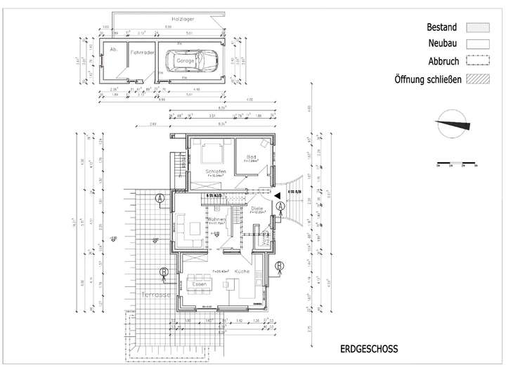
Der Eingangsbereich führt Sie in den offen gestalteten Ess- und Küchenbereich, der durch großzügige Fensterflächen viel Licht erhält und direkten Zugang auf die Terrasse bietet. Die Küche ist funktional eingebunden und ermöglicht einen angenehmen Alltag in familiärer Atmosphäre. Angrenzend, jedoch räumlich abgetrennt, befindet sich der separate Wohnbereich, der ebenfalls über einen eigenen Zugang zur Terrasse verfügt. Eine gerade verlaufende Treppe verbindet diesen Bereich direkt mit dem Obergeschoss. Ein Schlafzimmer im Erdgeschoss sowie ein hochwertig ausgestattetes Duschbad runden das Angebot dieser Ebene ab.
OBERGESCHOSS
Das Dachgeschoss überzeugt mit zwei großzügigen Schlafzimmern, deren Deckenhöhe bis zum Giebel reicht und sichtbare Holzbalken freilegt – das verleiht den Räumen Charakter und ein angenehmes Raumgefühl. Eines der Zimmer verfügt zusätzlich über eine Galerie, die über eine Leiter erreichbar ist – ein echtes Highlight für Kinder oder als kreative Rückzugsmöglichkeit. Ein stilvolles Tageslichtbad mit Dusche und Badewanne steht ebenfalls zur Verfügung.
TECHNIK & AUSSTATTUNG
Die Immobilie wurde vollständig kernsaniert und befindet sich technisch im Neubaustandard: Eine moderne Wärmepumpe sorgt für effiziente Beheizung, ergänzt durch eine Videoüberwachung rund ums Haus für zusätzliche Sicherheit. Hochwertige Materialien und eine präzise Ausführung schaffen ein zeitgemäßes und angenehmes Wohnumfeld.
AUSSENBEREICH & NEBENGEBÄUDE
Der Garten wird aktuell noch weiter gestaltet und bietet bereits jetzt ein hohes Maß an Privatsphäre und Ruhe. Die ehemalige Scheune dient heute als großzügige Garage mit angrenzendem Schuppen – ideal für Fahrzeuge, Lager oder Hobbyzwecke.
Ein Anwesen mit Substanz, Stil und Ruhe – bereit für den nächsten Lebensabschnitt.
Gerne senden wir Ihnen weitere Unterlagen zu und vereinbaren bei Interesse einen persönlichen Besichtigungstermin.
Wohnen im Grünen – stilvoll, großzügig und technisch auf dem neuesten Stand
48301 Nottuln
Die vollständige Adresse der Immobilie erhalten Sie vom Anbieter.
Auf Karte anzeigen
Die vollständige Adresse der Immobilie erhalten Sie vom Anbieter.
Infos
| Haustyp | Einfamilienhaus |
|---|---|
| Wohnfläche ca. | 140 m2 |
| Grundstücksfläche | 1.800 m2 |
| Bezugsfrei ab | 01.09.2025 |
| Zimmer | 5 |
| Haustiere | Ja |
| Garage/Stellplatz | Garage |
| Anzahl Garage/Stellplatz | 1 |
Kosten
| Kaltmiete |
2.200 € |
|---|---|
| Nebenkosten | + 100 € |
| Heizkosten | keine Angabe |
| Gesamtmiete | 2.300 € |
| Kaution o. Genossenschaftsanteile | 4.400,00 EUR |
Weiter mieten oder doch kaufen?
Wer in Miete wohnt, überweist dem Vermieter im Laufe der Jahre hohe Summen, die sich
auch in die eigenen vier Wände investieren lassen könnten.
Bausubstanz & Energieausweis
| Objektzustand | Neuwertig |
|---|---|
| Qualität der Austattung | Gehoben |
| Heizungsart | Fußbodenheizung |
| Energieausweis | liegt vor |
| Energieausweistyp | Bedarfsausweis |
| Energieverbrauchskennwert | 30,5 kWh/(m²*a) |
| Energieeffizienzklasse | A |
30,5
kWh/(m²*a)
Energieeffizienzklasse A
- A+
- A
- B
- C
- D
- E
- F
- G
- H
- 0
- 25
- 50
- 75
- 100
- 125
- 150
- 175
- 200
- 225
- >250
Beschreibung des Objekts
Ausstattung
- Komplett kernsaniert
- technischer Neubaustandard
- Effiziente Wärmepumpenheizung
- Kameraüberwachung rund ums Haus
- Großes Grundstück mit ca. 1.800 m²Fläche
- Separate Garage (ehem. Scheune) mit zusätzlichem Schuppen
- Offener Ess- und Küchenbereich mit Zugang zur Terrasse
- Separater Wohnbereich mit direktem Zugang zur Terrasse
- Hochwertiger Parkettboden in den Wohn-Schlafbereichen
- Hochwertige Fliesen in Flure und Nassbereichen
- 1 Schlafzimmer im EG
- Tageslicht Duschbad im EG
- 2 Schlafzimmer im OG mit offenen Holzbalkendecken bis zum Giebel
- Galerie im Kinderzimmer, erreichbar über Leiter
- Tageslichtbad im OG mit Dusche und Badewanne
- Garten (in Umgestaltung) mit freiem Blick ins Grüne
- Ruhige Lage im Außenbereich von Nottuln-Appelhülsen
- Gerade verlaufende Treppe vom Wohnzimmer ins OG
- Zeitlose, wertige Innenausstattung
Lage
Das Haus befindet sich in zentraler Randlage von Nottuln. Kindergarten, Grundschule und weiterführende Schulen befinden sich im Ort in unmittelbarer Nähe. Zahlreiche Einkaufsmöglichkeiten, Ärzte, ein umfassendes Sport- und Freizeitangebot sowie vielfältige gastronomische Highlights schaffen eine hohe Lebensqualität der besonderen Art. Nottuln verfügt über eine hervorragende Autobahnanbindungen an die A43 und die A1. Innerhalb kürzester Zeit sind Sie auf der Autobahn in Richtung Ruhrgebiet oder im Norden. Die Stadt Münster ist dadurch für Berufspendler schnell erreichbar.
Sonstige Angaben
Bitte haben Sie Verständnis, dass wir nur Anfragen mit vollständiger Nennung Ihres Namens, Ihrer Anschrift und einer Rückrufmöglichkeit bearbeiten können. Die Speicherung und Verarbeitung dieser Angaben unterliegen den Bestimmungen der Datenschutz-Grundverordnung (DSGVO).
HAFTUNG: Wir weisen darauf hin, dass die von uns weitergegebenen Objektinformationen, Unterlagen, Pläne, etc. vom Verkäufer bzw. Vermieter stammen. Die Erstellung unserer Exposés erfolgt nach bestem Wissen und mit grösster Sorgfalt. Dieses Exposé ist eine Vorabinformation und ersetzt nicht die persönliche Besichtigung des potenziellen Käufers vor Ort. Flächen- und Maßangaben sind ca.-Werte. Eine Haftung für die Richtigkeit oder Vollständigkeit der Angaben übernehmen wir aus den vorab genannten Gründen nicht. Es obliegt daher unseren Kunden, die darin enthaltenen Objektinformationen und Angaben auf ihre Richtigkeit hin zu überprüfen. Alle Immobilienangebote sind freibleibend und vorbehaltlich Irrtümern, Zwischenverkauf- und Vermietung oder sonstiger Zwischenverwertung. Es gelten unsere Allgemeinen Geschäftsbedingungen.
GELDWÄSCHE: Als Immobilienmaklerunternehmen ist die C.B-Immoconsult e.K. nach § § 1, 2 Abs. 1 Nr. 10, 4 Abs. 3 Geldwäschegesetz (GwG) dazu verpflichtet, vor Begründung einer Geschäftsbeziehung die Identität des Vertragspartners festzustellen und zu überprüfen. Hierzu ist es erforderlich, dass wir die relevanten Daten Ihres Personalausweises festhalten – beispielsweise mittels einer Kopie. Das Geldwäschegesetz (GwG) sieht vor, dass der Makler die Kopien bzw. Unterlagen fünf Jahre aufbewahren muss.
UNSER SERVICE FÜR SIE ALS EIGENTÜMER: Planen Sie den Verkauf oder die Vermietung Ihrer Immobilie, so ist es für Sie wichtig, deren Marktwert zu kennen. Lassen Sie kostenfrei und unverbindlich den aktuellen Wert Ihrer Immobilie durch einen unserer Immobilienspezialisten professionell einschätzen.
FINANZIERUNG: Durch unsere Kooperation mit Dr. Klein bieten wir Ihnen nicht nur fundierte Immobilienexpertise, sondern auch maßgeschneiderte Finanzierungslösungen aus einer Hand. Ob es um den Kauf Ihres Traumhauses, die Absicherung Ihrer Immobilie oder flexible Kreditangebote geht – gemeinsam mit den Spezialisten von Dr. Klein begleiten wir Sie persönlich, transparent und mit dem Anspruch höchster Qualität.
Grundriss
EG
>
>
OG
>
>
KG
>
>
Adresse
48301 Nottuln
Interessante Orte
Preis- und Lageinformationen
Preistrend für Bestandsimmobilien in Nottuln