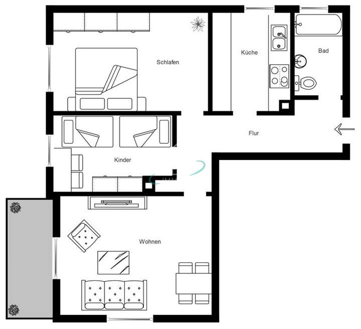
Diese gut geschnittene 3-Zimmer-Mietwohnung befindet sich im 2. OG eines im Jahr 1960 erbauten Mehrfamilienhauses in Gschwend. Mit einer Wohnfläche von ca. 70 m² bietet sie ausreichend Platz für Paare, Einzelpersonen mit Raumbedarf oder kleine Familien. Die Wohnung zeichnet sich durch eine durchdachte Raumaufteilung sowie praktische Ausstattungsmerkmale aus.
Über den länglichen Flur sind sämtliche Räume der Wohnung direkt erreichbar. Das Tageslicht Badezimmer ist mit einer Badewanne, einem Waschbecken sowie einem WC ausgestattet. Eine Infrarotheizung sowie ein Warmwasser-Boiler sorgen hier für zeitgemäßen Komfort.
Die Küche verfügt über eine vorhandene Einbauküche und bietet ausreichend Platz für den täglichen Bedarf. Direkt angrenzend befinden sich das Schlafzimmer sowie ein weiteres Zimmer, das flexibel als Kinderzimmer oder Büro genutzt werden kann. Beide Räume sind mit doppelt verglasten Holzfenstern ausgestattet und bieten eine gute Tageslichtversorgung. Alle Fenster sind zusätzlich mit Rollläden versehen, welche für Verdunkelung und Privatsphäre sorgen.
Das Wohnzimmer bildet den größten Raum der Wohnung und verfügt über einen Zugang zum Balkon. Neben dem doppelt verglasten Holzfenster sorgt eine Kunststoff-Balkontür mit Isolierverglasung für Licht und einen direkten Zugang ins Freie.
Ein zentral im Wohnzimmer platzierter Ofen dient als Hauptheizung der Wohnung und sorgt nicht nur für eine gleichmäßige, angenehme Wärme, sondern auch für ein behagliches Ambiente und ein ausgeglichenes Raumklima in allen Wohnbereichen. Durch seine zentrale Lage verteilt sich die Wärme optimal, sodass eine komfortable und zugleich energiesparende Beheizung gewährleistet ist.
Während Wohnzimmer und Büro/Kinderzimmer mit Laminat ausgelegt sind, sind Flur, Küche, Bad und Schlafzimmer mit Fliesen versehen. Alle Fenster in der Wohnung sind zweifach verglast, teils in Holz-, teils in Kunststoffausführung.
Zur Wohnung gehört außerdem ein PKW-Stellplatz direkt vor dem Haus.
3-Zimmer-Wohnung mit Einbauküche und Balkon in ruhiger Lage
74417 Gschwend
Die vollständige Adresse der Immobilie erhalten Sie vom Anbieter.
Auf Karte anzeigen
Die vollständige Adresse der Immobilie erhalten Sie vom Anbieter.
Infos
| Wohnungskategorie | Etagenwohnung |
|---|---|
| Wohnfläche ca. | 70 m2 |
| Zimmer | 3 |
| Schlafzimmer | 2 |
| Badezimmer | 1 |
| Haustiere | Nein |
Kosten
| Kaltmiete |
650 € |
|---|---|
| Nebenkosten | + 100 € |
| Heizkosten | keine Angabe |
| Gesamtmiete | 750 € |
| Kaution o. Genossenschaftsanteile | 1950,00 |
Weiter mieten oder doch kaufen?
Wer in Miete wohnt, überweist dem Vermieter im Laufe der Jahre hohe Summen, die sich
auch in die eigenen vier Wände investieren lassen könnten.
Bausubstanz & Energieausweis
| Baujahr | 1960 |
|---|---|
| Wesentliche Energieträger | Öl |
| Energieausweis | liegt vor |
| Energieausweistyp | Bedarfsausweis |
| Energieverbrauchskennwert | 173,7 kWh/(m²*a) |
| Energieeffizienzklasse | F |
173,7
kWh/(m²*a)
Energieeffizienzklasse F
- A+
- A
- B
- C
- D
- E
- F
- G
- H
- 0
- 25
- 50
- 75
- 100
- 125
- 150
- 175
- 200
- 225
- >250
Beschreibung des Objekts
Ausstattung
•Mietwohnung im 2. Obergeschoss
•Ca. 70 m² Wohnfläche
•3 Zimmer zzgl. Küche und Bad
•Badezimmer mit Badewanne, WC, Waschbecken
•Infrarotheizung im Badezimmer
•Warmwasser über Boiler
•Einbauküche vorhanden
•Laminatboden in Wohnzimmer und Kinderzimmer/Büro
•Fliesen in Flur, Bad, Küche und Schlafzimmer
•Zweifach verglaste Holz- und Kunststofffenster
•Balkon mit Zugang vom Wohnzimmer
•Balkontür aus Kunststoff, 2-fach verglast
•Ofen im Wohnzimmer
•Holzverkleidung an jedem Zimmer, außer Schlafzimmer
•Rollläden an allen Fenstern vorhanden
Lage
Die Wohnung befindet sich in Gschwend, einer Gemeinde im Osten des Ostalbkreises in Baden-Württemberg. Die nächstgrößere Stadt ist Schwäbisch Gmünd, die in ca. 25 Fahrminuten erreichbar ist. Gschwend bietet eine naturnahe Wohnlage mit einer überschaubaren Bevölkerungsstruktur und guter Erreichbarkeit der umliegenden Zentren.
Gschwend zeichnet sich durch eine solide Infrastruktur aus. Verschiedene Einkaufsmöglichkeiten für den täglichen Bedarf sind mit dem Auto oder teils auch fußläufig gut erreichbar. Auch Bäckereien und kleinere Dienstleister sind im Ort vorhanden. Die medizinische Grundversorgung wird durch ortsansässige Hausärzte und eine nahegelegene Apotheke sichergestellt.
Für Familien mit Kindern bietet Gschwend ein gutes Bildungsangebot mit verschiedenen Kindergärten sowie einer Grund- und Gemeinschaftsschule. Weiterführende Schulen befinden sich in den benachbarten Städten und sind durch öffentliche Verkehrsmittel erreichbar.
Wirtschaftlich ist die Region durch mittelständische Betriebe geprägt, die überwiegend im handwerklichen oder produzierenden Bereich tätig sind. Die Lage bietet zudem gute Möglichkeiten für Pendler, die in den größeren Städten der Region arbeiten.
Gschwend ist über die Bundesstraße B298 gut an das überregionale Verkehrsnetz angebunden. Die nächste Autobahnzufahrt (A7 oder A6) ist in ca. 30 Minuten erreichbar. Der öffentliche Nahverkehr ist durch Busverbindungen abgedeckt, ein Bahnanschluss besteht im nahegelegenen Gaildorf oder Schwäbisch Gmünd mit direkten Verbindungen u.a. nach Stuttgart, Aalen und Nürnberg.
Grundriss
Grundriss
>
>
Adresse
74417 Gschwend
Interessante Orte
Preis- und Lageinformationen
Preistrend für Bestandsimmobilien in Gschwend