Die neuwertige Penthousewohnung mit ca. 162m² befindet sich im 4. OG einer modernen Wohnanlage in Friedrichshafen/Fischbach. Die Wohnung liegt ruhig in ca. 600m Entfernung vom Bodensee. In wenigen Gehminuten erreichen Sie das Strandbad und einen öffentlich zugänglichen Freizeit- und Badebereich direkt am Bodensee.
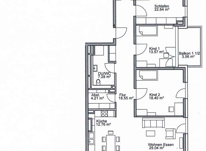
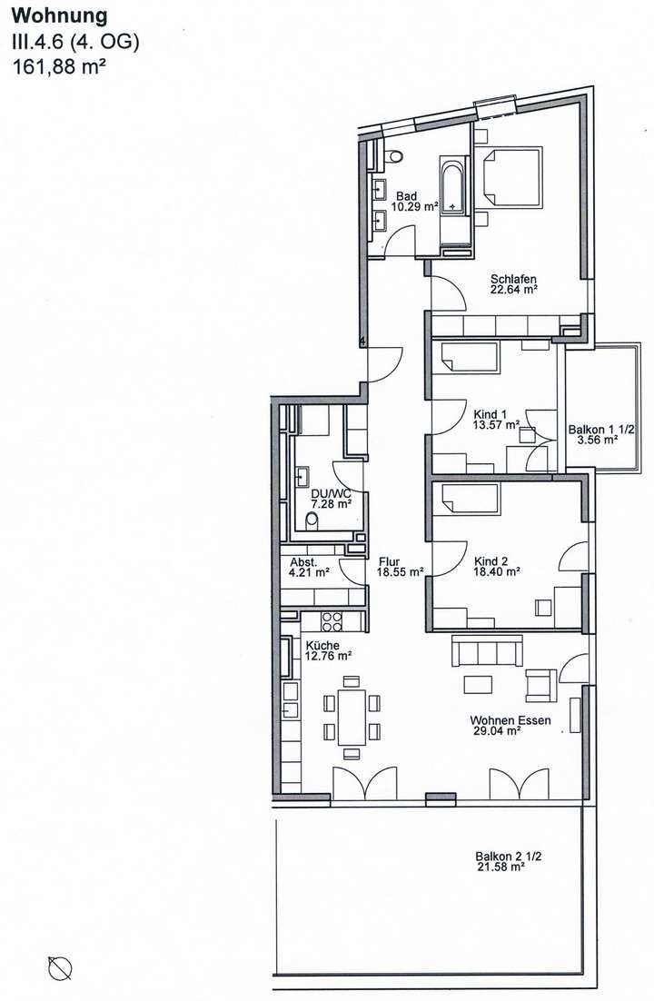
Überzeugen Sie sich bei einer Besichtigung vor Ort von dem durchdachten Grundriss und den hellen Räumen. Über den Flur gelangen Sie in den offen gestalteten Wohn- und Essbereich, von wo aus Sie direkten Zugang zur herrlich nach Süden ausgerichteten, großzügigen Terrasse (ca. 40m²) haben. Hier können Sie einen traumhaften Panoramablick über den Bodensee und die Alpenkette genießen. Im Wohnbereich befindet sich auch die hochwertige Einbauküche, mit Markengeräten ausgestattet. Außerdem bietet diese Wohnung 2 Bäder und 3 Schlafräume, einer davon hat Zugang zu einem ostseitigen Balkon.
Sie haben einen Abstellraum innerhalb der Wohnung und einen im Keller. Außerdem verfügt die Wohnung über 2 Stellplätze in der hauseigenen Tiefgarage (einzeln anmietbar à 50€/Mt.) und einen Fahrradabstellkeller.
Exklusive 4-Zimmer-Penthouse-Wohnung mit luxuriöser Innenausstattung in FN Neue Mitte mit Seeblick
88048 Friedrichshafen
Die vollständige Adresse der Immobilie erhalten Sie vom Anbieter.
Auf Karte anzeigen
Die vollständige Adresse der Immobilie erhalten Sie vom Anbieter.
Infos
| Wohnungskategorie | Penthouse |
|---|---|
| Etage | 4 von 4 |
| Wohnfläche ca. | 162 m2 |
| Bezugsfrei ab | 1.12.2025 |
| Zimmer | 4 |
| Schlafzimmer | 3 |
| Badezimmer | 2 |
| Haustiere | Nein |
| Garage/Stellplatz | Tiefgarage |
| Anzahl Garage/Stellplatz | 2 |
Kosten
| Kaltmiete |
2.350 € |
|---|---|
| Nebenkosten | + 450 € |
| Heizkosten | in Nebenkosten enthalten |
| Gesamtmiete | 2.800 € |
| Miete für Garage/Stellplatz | 50 € |
Weiter mieten oder doch kaufen?
Wer in Miete wohnt, überweist dem Vermieter im Laufe der Jahre hohe Summen, die sich
auch in die eigenen vier Wände investieren lassen könnten.
Bausubstanz & Energieausweis
| Baujahr | 2018 |
|---|---|
| Letzte Sanierung | 2018 |
| Objektzustand | Neuwertig |
| Qualität der Austattung | Luxus |
| Heizungsart | Fußbodenheizung |
| Energieausweis | liegt zur Besichtigung vor |
Beschreibung des Objekts
Ausstattung
- Dielen-Echtholzparkett in allen Wohnräumen
- moderne Einbauküche mit Markengeräten
- hochwertige Sanitäreinrichtungen
- elektrische Rollläden
- große Markise auf der Dachterrasse
- Aufzug von der Wohnung bis in die Tiefgarage
- energetisch hochwertige, zeitgemäße Bauausführung
Lage
Fischbach ist ein Ortsteil von Friedrichshafen. Kindergärten und die Grundschule sind in unmittelbarer Nähe zur Wohnung vorhanden, weiterführende Schulen im nahe gelegenen Friedrichshafen. Öffentliche Verkehrsmittel sind nur 3 Minuten zu Fuß entfernt. Aufgrund der guten Verkehrsanbindung ergeben sich kurze Anfahrtswege zu allen renommierten Friedrichshafener Firmen und Schulen und ins Zentrum. Einkaufsmöglichkeiten bestehen auch in Fischbach in unmittelbarer Nähe. Auch Anlagen und Einrichtungen für verschiedene Sportarten sind in Fischbach vorhanden, was den hohen Freizeitwert des Ortes noch mehr auszeichnet. Auch Ärzte befinden sich direkt im Umfeld.
Grundriss
Grundriss
>
>
Adresse
88048 Friedrichshafen
Interessante Orte
Preis- und Lageinformationen
Preistrend für Bestandsimmobilien in Friedrichshafen