Wir bitten um Verständnis, dass wir ausschließlich schriftliche Anfragen berücksichtigen können.
Unsere Objekt-ID SA-3381
Diese außergewöhnliche Immobilie wurde 2022 mit viel Liebe zum Detail erbaut. Hier finden Sie moderne Architektur in allen Einzelheiten.
Sichtbeton harmoniert mit warmen Eichenparkett. Bodentiefe Fenster sorgen für optimale Lichtverhältnisse. Ein echtes Highlight ist das Dachgeschoss mit einem hellen Galeriezimmer und einem Duschbad en Suite.
206 m² verteilen sich auf drei Etagen. Durch den großzügigen Schnitt, den hohen Lichteinfall und die offene Bauweise entsteht ein einzigartiges Wohnambiente.
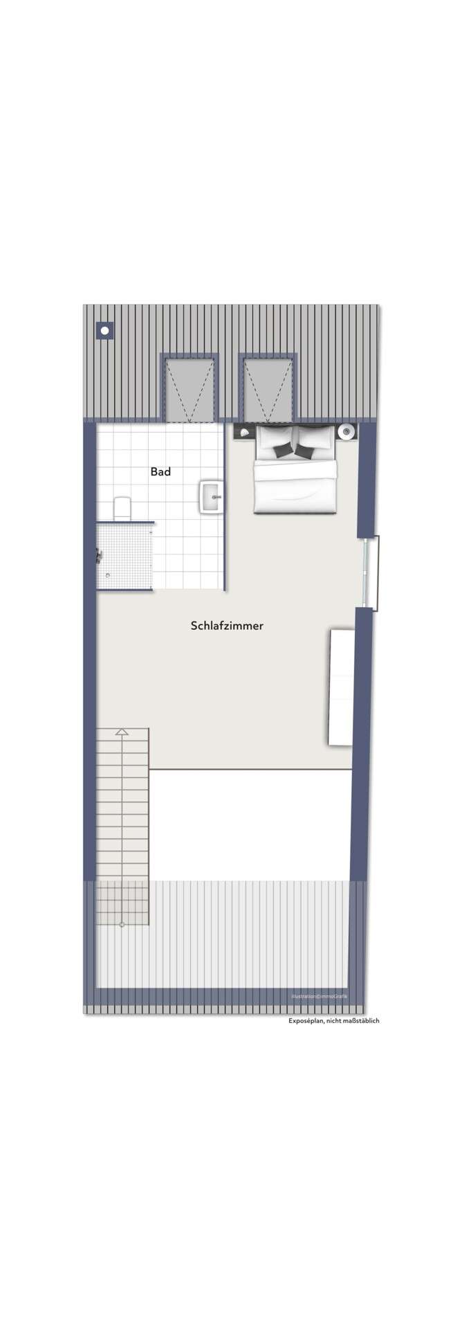
Im Erdgeschoss befindet sich ein offener Wohn-/ Ess- und Küchenbereich mit ca. 68 m², ein Gästebad sowie ein Wirtschaftsraum. Über mehre Schiebeelemente gelangt man auf die ums Haus laufende Terrasse und in den pflegeleichten Garten. Im 1. Obergeschoss befinden sich zwei Schlafzimmer, ein weiterer Wohnbereich sowie ein Fensterbad mit Wanne. Im Dachgeschoss ist ein geräumiges Studio mit offenem Duschbad und einer Wohnfläche von ca. 58 m².
Einfamilienhaus in Geyen - Moderne Architektur bis ins Detail
50259 Pulheim
Die vollständige Adresse der Immobilie erhalten Sie vom Anbieter.
Auf Karte anzeigen
Die vollständige Adresse der Immobilie erhalten Sie vom Anbieter.
Infos
| Haustyp | Einfamilienhaus |
|---|---|
| Etagenzahl | 2 |
| Wohnfläche ca. | 206 m2 |
| Grundstücksfläche | 464 m2 |
| Bezugsfrei ab | 01.12.2025 |
| Zimmer | 4 |
| Schlafzimmer | 3 |
| Badezimmer | 2 |
| Haustiere | Nach Vereinbarung |
| Garage/Stellplatz | Außenstellplatz |
| Anzahl Garage/Stellplatz | 2 |
Kosten
| Kaltmiete |
3.200 € |
|---|---|
| Nebenkosten | + 200 € |
| Heizkosten | keine Angabe |
| Gesamtmiete | 3.400 € |
| Kaution o. Genossenschaftsanteile | 9600 |
Weiter mieten oder doch kaufen?
Wer in Miete wohnt, überweist dem Vermieter im Laufe der Jahre hohe Summen, die sich
auch in die eigenen vier Wände investieren lassen könnten.
Bausubstanz & Energieausweis
| Baujahr | 2022 |
|---|---|
| Objektzustand | Neuwertig |
| Heizungsart | Wärmepumpe |
| Wesentliche Energieträger | Strom |
| Energieausweis | liegt vor |
| Energieausweistyp | Bedarfsausweis |
| Energieverbrauchskennwert | 30,4 kWh/(m²*a) |
| Energieeffizienzklasse | A |
30,4
kWh/(m²*a)
Energieeffizienzklasse A
- A+
- A
- B
- C
- D
- E
- F
- G
- H
- 0
- 25
- 50
- 75
- 100
- 125
- 150
- 175
- 200
- 225
- >250
Beschreibung des Objekts
Ausstattung
Zur Ausstattung gehört im Wesentlichen:
°Eichenparkett im gesamten Haus
°Fußbodenheizung über Wärmepumpe
°moderne Bäder mit hochwertiger Austattung
°Kunststofffenster mit Isolierverglasung in anthrazit
°Deckenlampen und Bodenspots
°zwei Außenstellplätze vorm Haus
Lage
Geyen ist ein idyllischer Ortsteil der Stadt Pulheim im Rhein-Erft-Kreis, westlich von Köln gelegen. Es bietet eine ruhige Dorfgemeinschaft mit grüner Umgebung, ist aber auch gut an die Kölner City angebunden und verfügt über eine eigene Infrastruktur mit Geschäften und Gastronomie. Der Pulheimer Bach, der durch Geyen fließt, sowie der nahegelegene Mühlenpark und das Erholungsgebiet bieten vielfältige Möglichkeiten zur Naherholung.
Alle Einrichtungen des täglichen Bedarfs wie Supermärkte, Bäckereien, Apotheken und Ärzte sind bequem erreichbar. Ebenso stehen Kindergärten, Schulen und zahlreiche Freizeitangebote in unmittelbarer Umgebung zur Verfügung. Das nahegelegene Naherholungsgebiet Geyener Wiesen sowie Felder und Grünflächen laden zu erholsamen Spaziergängen und sportlichen Aktivitäten ein.
Dank der verkehrsgünstigen Lage mit guter Anbindung an den öffentlichen Nahverkehr sowie die Autobahnen A57 und A1 gelangen Berufspendler schnell in die umliegenden Städte. Eine Bushaltestelle mit Verbindung nach Pulheim Zentrum und Köln befindet sich in fußläufiger Entfernung.
Sonstige Angaben
In den Betriebskosten sind die Grundbesitzabgaben sowie die Wohngebäudeversicherung enthalten. Alle übrigen Nebenkosten zahlen die Mieter direkt an den jeweiligen Versorger / Dienstleister.
Grundriss
Erdgeschoss
>
>
Obergeschoss
>
>
Dachgeschoss
>
>
Adresse
50259 Pulheim
Interessante Orte
Preis- und Lageinformationen
Preistrend für Bestandsimmobilien in Pulheim