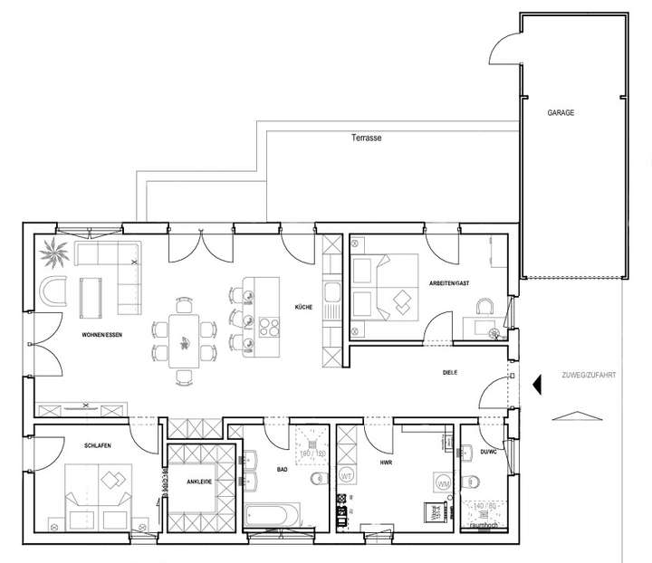
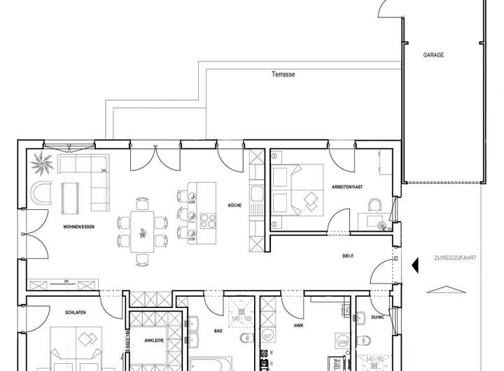
Dieser freistehende Flachdachbungalow im Herzen von Ganderkesee bietet Ihnen moderste Details wie eine Luftwärmepumpe, eine Lüftungsanlage, eine Fußbodenheizung, eine offene Küche mit Kochinsel oder ein Badezimmer mit ebenerdiger Dusche sowie ein GWC mit Dusche.
Im Wohnbereich ist Fliesenfußboden in Holzoptik verlegt, in den Nassbereichen ist der Fliesenboden grau. Schlafzimmer, Ankleidezimmer, und Büro/ Gästezimmer werden mit Laminat in Eiche ausgestattet. Für die Wärme sorgt eine Fußbodenheizung, betrieben über eine Wärmepumpe. Die Fenster wurden in dreifach-Verglasung ausgeführt, der Energieverbrauch entspricht somit dem modernsten Standard. Die Wände werden mit weiß gestrichener Raufasertapete übergeben. Die Räumlichkeiten sind mit elektrischen Rolläden zu verdunkeln.
In der Kaltmiete von 1.550,- € sind quasi die Heizkosten bereits enthalten, da das Haus per Luftwärmepumpe und PV-Anlage erwärmt wird, ebenso das Warmwasser.
Sie zahlen zur Miete noch ca.150,- € NK, für die Garage 50€, für die Betriebskosten inkl. Wasser ansonsten nur noch den Strom, den Sie direkt an den Anbieter selbst zahlen.
Ganderkesee | Freistehender Neubau-Bungalow mit Garage mit Luftwärmepumpe und Solar
27777 Ganderkesee
Die vollständige Adresse der Immobilie erhalten Sie vom Anbieter.
Auf Karte anzeigen
Die vollständige Adresse der Immobilie erhalten Sie vom Anbieter.
Infos
| Haustyp | Bungalow |
|---|---|
| Wohnfläche ca. | 120 m2 |
| Grundstücksfläche | 400 m2 |
| Bezugsfrei ab | nach Vereinbarung |
| Zimmer | 3 |
| Schlafzimmer | 2 |
| Badezimmer | 2 |
| Garage/Stellplatz | Garage |
| Anzahl Garage/Stellplatz | 1 |
Kosten
| Kaltmiete |
1.550 € |
|---|---|
| Nebenkosten | + 150 € |
| Heizkosten | keine Angabe |
| Gesamtmiete | 1.700 € |
| Miete für Garage/Stellplatz | 50 € |
| Kaution o. Genossenschaftsanteile | 3100 |
Weiter mieten oder doch kaufen?
Wer in Miete wohnt, überweist dem Vermieter im Laufe der Jahre hohe Summen, die sich
auch in die eigenen vier Wände investieren lassen könnten.
Bausubstanz & Energieausweis
| Baujahr | 2025 |
|---|---|
| Objektzustand | Erstbezug |
| Qualität der Austattung | Gehoben |
| Heizungsart | Wärmepumpe |
| Energieausweis | liegt vor |
| Energieausweistyp | Bedarfsausweis |
| Energieverbrauchskennwert | 14,0 kWh/(m²*a) |
| Energieeffizienzklasse | A+ |
14,0
kWh/(m²*a)
Energieeffizienzklasse A+
- A+
- A
- B
- C
- D
- E
- F
- G
- H
- 0
- 25
- 50
- 75
- 100
- 125
- 150
- 175
- 200
- 225
- >250
Beschreibung des Objekts
Ausstattung
+ Elektrische Rollläden
+ Neue Einbauküche mit Kochinsel
+ Luftwärmepumpe
+ PV-Anlage
+ Lüftungsanlage
+ Fußbodenheizung
+ GWC mit Dusche
+ Fliesenboden in Küche, Bäder, Wohnzimmer
+ Laminat Eiche in Schlafzimmer, Ankleidezimmer, Büro
+ Garage mit -Tor (nicht in Kaltmiete enthalten, 50€ extra]
+ ebenerdige Dusche
+ Badewanne
+ Hauswirtschaftsraum/ Abstellraum
+ Energieklasse A+
+ Verkehrsberuhigte Straße, Sackgasse
+ Altersgerecht
Lage
Der Bungalow liegt in einer ruhigen und gepflegten Wohnsiedlung im Herzen von Ganderkesee, einer beliebten Gemeinde im Landkreis Oldenburg. Die Lage vereint naturnahes Wohnen mit guter Infrastruktur: Einkaufsmöglichkeiten, Ärzte und Apotheken sind schnell erreichbar.
Familien profitieren von kurzen Wegen zu Kindergärten, Grundschulen sowie weiterführenden Schulen. Freizeitangebote wie Sportvereine, Freibad oder das „SaunaHuus“ sorgen für Abwechslung.
Der Bahnhof und Bushaltestellen bieten gute Verbindungen nach Bremen und Osnabrück, die A28 eine schnelle Anbindung an das Straßennetz. Insgesamt ein ruhiges, sicheres und familienfreundliches Umfeld – ideal für Paare und Familien, die naturnah und zugleich gut angebunden leben möchten.
Sonstige Angaben
Wir weisen darauf hin, dass die von uns weitergegebenen Objektinformationen, Unterlagen, Pläne etc. vom Auftraggeber stammen. Eine Haftung für die Richtigkeit oder Vollständigkeit der Angaben übernehmen wir nicht. Es obliegt daher unseren Kunden, die darin enthaltenen Objektinformationen und Angaben auf ihre Richtigkeit hin zu überprüfen. Alle Immobilienangebote sind freibleibend und vorbehaltlich Irrtümer, Zwischenverkauf- und Vermietung oder sonstiger Zwischenverwertung.
Geldwäsche: Die Rutz Immobilien GmbH ist als Immobilienmaklerunternehmen gemäß § 2 Abs. 1 Nr. 14 und § 11 Abs. 1, 2 des Geldwäschegesetzes (GwG) verpflichtet, die Identität ihrer Vertragspartner zu überprüfen, sobald eine Geschäftsbeziehung entsteht oder ernsthaftes Interesse an einem Immobilienkaufvertrag besteht.
Dafür erfassen wir nach § 11 Abs. 4 GwG die relevanten Daten Ihres Personalausweises (bei natürlichen Personen), beispielsweise durch eine Kopie. Handelt es sich um eine juristische Person, ist ein Handelsregisterauszug erforderlich, aus dem der wirtschaftlich Berechtigte hervorgeht.
Das Geldwäschegesetz verpflichtet uns, diese Unterlagen für einen Zeitraum von fünf Jahren aufzubewahren. Zudem sind Sie als unser Vertragspartner gemäß § 11 Abs. 6 GwG zur Mitwirkung verpflichtet.
Grundriss
Grundriß
>
>
Adresse
27777 Ganderkesee
Interessante Orte
Preis- und Lageinformationen
Preistrend für Bestandsimmobilien in Ganderkesee