Nachhaltig wohnen, sicher ankommen: Ihr Weg ins Eigenheim beginnt hier!
In ruhiger, familienfreundlicher Lage erwartet Sie ein liebevoll gepflegtes Zuhause mit viel Raum für Ihre persönlichen Wünsche.
Jetzt mit Miet | Kauf den Traum vom Eigenheim erfüllen!
63697 Hirzenhain
Die vollständige Adresse der Immobilie erhalten Sie vom Anbieter.
Auf Karte anzeigen
Die vollständige Adresse der Immobilie erhalten Sie vom Anbieter.
Infos
| Haustyp | Einfamilienhaus |
|---|---|
| Wohnfläche ca. | 140 m2 |
| Nutzfläche | 0 m2 |
| Grundstücksfläche | 510 m2 |
| Zimmer | 4 |
| Schlafzimmer | 3 |
| Badezimmer | 1 |
| Anzahl Garage/Stellplatz | 0 |
Kosten
| Kaltmiete |
1.340 € |
|---|---|
| Nebenkosten | keine Angabe |
| Heizkosten | keine Angabe |
| Gesamtmiete | 1.340 € |
Weiter mieten oder doch kaufen?
Wer in Miete wohnt, überweist dem Vermieter im Laufe der Jahre hohe Summen, die sich
auch in die eigenen vier Wände investieren lassen könnten.
Bausubstanz & Energieausweis
| Baujahr | 2025 |
|---|---|
| Qualität der Austattung | Gehoben |
| Heizungsart | Wärmepumpe |
Beschreibung des Objekts
Ausstattung
3 Schlafzimmer
großzügiges Wohn-/Esszimmer mit Zugang zur sonnigen Terrasse
Grüner Garten zur eigenen Nutzung - perfekt für Kinder oder naturnahes Gärtnern
Gute Anbindung an den öffentlichen Nahverkehr, Schulen und Einkaufsmöglichkeiten in der Nähe
Lage
Die Immobilie befindet sich in einer ruhigen, familienfreundlichen Lage von Hirzenhain, einer idyllischen Gemeinde im mittelhessischen Landkreis Vogelsberg. Die Umgebung überzeugt durch eine angenehme Balance aus naturnaher Lebensqualität und moderner Versorgung.
Einkaufsmöglichkeiten, Apotheke, Post und weitere Nahversorgungsangebote sind im Ortsteil oder in den benachbarten Orten schnell erreichbar.
Vielfältige Freizeitmöglichkeiten direkt vor der Haustür: Wälder, Felder und Grünflächen laden zu Spaziergängen, Joggen oder Radtouren ein; Vereine und Sportanlagen befinden sich in der Nähe.
Busverbindungen ins Umland; gute Anbindung an regionale Linien, die Pendeln in umliegende Städte erleichtern.
Verkehrsanbindung: Gut ausgebaute Straßen führen zügig zu größeren Zentren; Pendeln nach Gießen, Frankfurt, Kassel oder weiteren Städten im Rhein-Misch-Gebiet ist gut möglich.
Ruhige Wohnstraßen mit gepflegten Einfamilienhäusern, Doppelhäusern oder attraktiven Neubauprojekten schaffen eine gemütliche, familienfreundliche Atmosphäre.
Nähe zu Grün- und Waldflächen ermöglicht kurze Spaziergänge oder Ausflüge direkt vom Zuhause aus.
Schulen, Kindertagesstätten sowie medizinische Versorgung befinden sich in der Umgebung und sind zeitnah erreichbar.
Gute Anbindung an das regionale Verkehrsnetz über gut ausgebaute Straßen; öffentliche Verkehrsmittel ermöglichen bequeme Mobilität in die umliegenden Städte.
Pendeln nach Frankfurt, Gießen, Fulda oder Kassel ist durch die Nähe zu Autobahnen bzw. Schnellstraßen bequem möglich.
Sonstige Angaben
Vereinbare einen persönlichen Beratungstermin, um über unser Miet-Kauf Modell zu sprechen.
Bitte beachte, dass die dargestellten Bilder und Grundrisse nur beispielhaft sind und unter Umständen Sonderbauteile enthalten, die nicht im angegebenen Preis enthalten sind.
Hab außerdem bitte Verständnis dafür, dass weitere Details zum angebotenen Grundstück erst nach einem persönlichen Gespräch bekanntgegeben werden und nur vollständige Anfragen bearbeitet werden können.
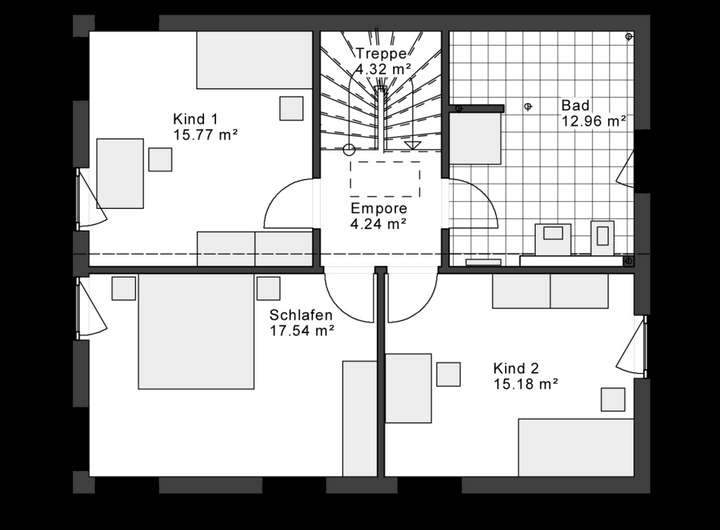
Grundriss
Grundriss EG
>
>
Grundriss OG
>
>
Adresse
63697 Hirzenhain
Interessante Orte
Preis- und Lageinformationen
Preistrend für Bestandsimmobilien in Hirzenhain