Erwerben Sie jetzt Ihr neues Zuhause und zahlen Sie eine Miete, die Ihnen gehört.
Hier fängt Ihr Traum an!
Miet-Kauf möglich.
Altschulden oder Verbindlichkeiten kein Hindernis. (Bonität vorausgesetzt)
Sie möchten erfahren ob Sie Miet-Kauf berechtigt sind?
Unser Miet-Kauf-Experte prüft dies gerne bei einem persönlichen Gespräch.
Jetzt mit Miet | Kauf den Traum vom Eigenheim erfüllen!
61231 Bad Nauheim
Die vollständige Adresse der Immobilie erhalten Sie vom Anbieter.
Auf Karte anzeigen
Die vollständige Adresse der Immobilie erhalten Sie vom Anbieter.
Infos
| Haustyp | Einfamilienhaus |
|---|---|
| Wohnfläche ca. | 119 m2 |
| Nutzfläche | 0 m2 |
| Grundstücksfläche | 363 m2 |
| Zimmer | 3 |
| Schlafzimmer | 3 |
| Badezimmer | 1 |
| Anzahl Garage/Stellplatz | 0 |
Kosten
| Kaltmiete |
1.970 € |
|---|---|
| Nebenkosten | keine Angabe |
| Heizkosten | keine Angabe |
| Gesamtmiete | 1.970 € |
Weiter mieten oder doch kaufen?
Wer in Miete wohnt, überweist dem Vermieter im Laufe der Jahre hohe Summen, die sich
auch in die eigenen vier Wände investieren lassen könnten.
Bausubstanz & Energieausweis
| Baujahr | 2025 |
|---|---|
| Qualität der Austattung | Gehoben |
| Heizungsart | Wärmepumpe |
Beschreibung des Objekts
Ausstattung
Jedes unserer Fertighäuser wird speziell für Sie geplant und ist perfekt auf die Anforderungen und Vorgaben Ihres Bauvorhabens angepasst – Bebauungspläne, eine besondere Grundstückslage und die gewünschten Eigenleistungen werden im Detail geprüft und berücksichtigt.
Jedes technik-fertige White & Black Traumhaus verfügt standardmäßig über:
- Heizungstechnik auf Ihre Wünsche hin konfigurierbar
- Fußbodenheizung mit Kühleffekt im Sommer
- Elektroinstallation fertig hergestellt
- Hochwertige Ausstattung mit Markenfabrikaten
- 3-Scheiben-Wärmeschutzglas
- Rollläden im Standard enthalten, auf Wunsch auch mit Elektroantrieb lieferbar
- Schwimmender Estrich mit Wärmedämmung verlegt
- Sanitär-Rohinstallation enthalten
In Eigenleistung von Ihnen sind folgende Gewerke selbst auszuführen:
Malern
Fliesen
Bodenbeläge
Innentüren
Sanitärobjekte
Diesem Angebot liegt die beliebte White & Black-Ausbaustufe "technik-fertig" zugrunde. Diese kann selbstverständlich noch entsprechend Ihrer geplanten Eigenleistungen angepasst werden.
White & Black ist ein Home Concept der Firmen Schwabenhaus & Danhaus.
Lage
Bad Nauheim liegt im Herzen des Wetteraukreises in Hessen und ist bekannt für seine elegante Kurstadtatmosphäre und die vielfältigen Erholungsmöglichkeiten. Die Immobilie befindet sich in einer ruhigen, gepflegten Wohngegend, die sowohl Komfort als auch eine angenehme Nachbarschaft bietet.
In der näheren Umgebung finden Sie zahlreiche Einkaufsmöglichkeiten, Restaurants, Cafés sowie medizinische Einrichtungen und Apotheken. Für Familien sind Kindergärten, Schulen und Freizeitangebote in der Nähe vorhanden. Die Stadt ist durch ihre historische Bäderarchitektur und den Kurpark geprägt, die zu Spaziergängen und Erholung einladen.
Die gute Anbindung an die Autobahnen A5 und A661 sowie an den öffentlichen Nahverkehr ermöglicht eine schnelle Mobilität in die umliegenden Städte wie Frankfurt, Gießen oder Friedberg. Die zentrale Lage und die attraktive Infrastruktur machen Bad Nauheim zu einem begehrten Wohnort für Menschen, die das ruhige, aber dennoch gut angebundene Leben schätzen.
Sonstige Angaben
Vereinbare einen persönlichen Beratungstermin, um über unser Miet-Kauf Modell zu sprechen.
Bitte beachte, dass die dargestellten Bilder und Grundrisse nur beispielhaft sind und unter Umständen Sonderbauteile enthalten, die nicht im angegebenen Preis enthalten sind.
Hab außerdem bitte Verständnis dafür, dass weitere Details zum angebotenen Grundstück erst nach einem persönlichen Gespräch bekanntgegeben werden und nur vollständige Anfragen bearbeitet werden können.
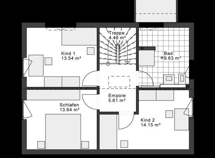
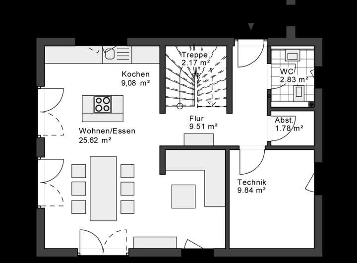
Grundriss
Grundriss EG
>
>
Grundriss OG
>
>
Adresse
61231 Bad Nauheim
Interessante Orte
Preis- und Lageinformationen
Preistrend für Bestandsimmobilien in Bad Nauheim