Das moderne Doppelhaus bietet mit einer Wohnfläche von ca. 150 m² ein ideales Zuhause für Familien oder Paare mit Platzbedarf. Erbaut im Jahr 2018, verbindet es eine energieeffiziente Bauweise mit zeitgemäßer Ausstattung und wohnlichem Komfort.
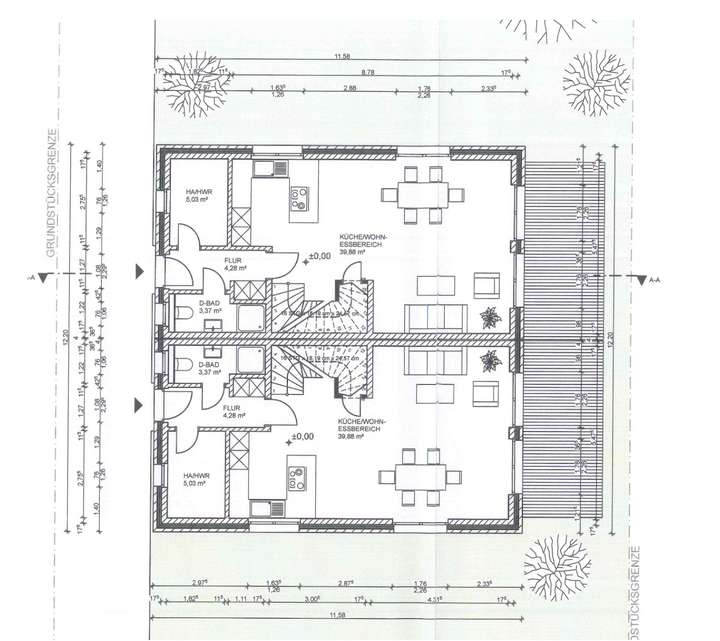
Im Erdgeschoss erwartet Sie ein großzügiger Wohn- und Essbereich mit offener Küche, der durch bodentiefe Fenster viel Licht erhält und direkten Zugang in den Garten bietet. Die stilvolle Landhausküche ist voll ausgestattet und lädt zum Kochen und Verweilen ein. Ein modernes Tageslichtbad ergänzt das Erdgeschoss.
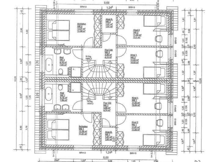
Das Obergeschoss überzeugt mit mehreren gut geschnittenen Schlafzimmern, die sich flexibel als Kinder-, Arbeits- oder Gästezimmer nutzen lassen. Ein weiteres, hochwertiges Tageslichtbad mit Badewanne und Dusche rundet die Etage ab.
Das Haus besticht nicht nur durch seine durchdachte Raumaufteilung, sondern auch durch seine energieeffiziente Technik: Wärmepumpe, Photovoltaikanlage, Fußbodenheizung und eine zentrale Lüftungsanlage sorgen für ein nachhaltiges und komfortables Wohnklima.
Der Außenbereich bietet mit einem gepflegten Garten, einem Schuppen sowie zwei überdachten Stellplätzen unter dem Carport ideale Rahmenbedingungen für Familienleben, Freizeit und Hobbys.
Dieses Haus vereint moderne Architektur, hochwertige Ausstattung und eine ruhige Lage in Hoisdorf – ein perfektes Zuhause für alle, die Wert auf Qualität, Nachhaltigkeit und Wohnkomfort legen.
Exklusiv wohnen im schönen Hoisdorf
22955 Hoisdorf
Die vollständige Adresse der Immobilie erhalten Sie vom Anbieter.
Auf Karte anzeigen
Die vollständige Adresse der Immobilie erhalten Sie vom Anbieter.
Infos
| Haustyp | Doppelhaushaelfte |
|---|---|
| Wohnfläche ca. | 150 m2 |
| Grundstücksfläche | 300 m2 |
| Bezugsfrei ab | 01.11.2025 |
| Zimmer | 4 |
| Garage/Stellplatz | Carport |
| Anzahl Garage/Stellplatz | 2 |
Kosten
| Kaltmiete |
2.550 € |
|---|---|
| Nebenkosten | + 250 € |
| Heizkosten | in Nebenkosten enthalten |
| Gesamtmiete | 2.800 € |
| Miete für Garage/Stellplatz | 60 € |
Weiter mieten oder doch kaufen?
Wer in Miete wohnt, überweist dem Vermieter im Laufe der Jahre hohe Summen, die sich
auch in die eigenen vier Wände investieren lassen könnten.
Bausubstanz & Energieausweis
| Baujahr | 2018 |
|---|---|
| Objektzustand | Neuwertig |
| Qualität der Austattung | Gehoben |
| Energieausweis | liegt zur Besichtigung vor |
Beschreibung des Objekts
Ausstattung
Das Haus präsentiert sich in einem modernen und hochwertigen Ausstattungsstandard:
Wohnfläche: ca. 150 m²
Baujahr: 2018
Grundstücksgröße: ca. 300 m² Gartenfläche
Heizung & Energie: Wärmepumpe mit Photovoltaikanlage, Fußbodenheizung in allen Wohnräumen, zentrale Lüftungsanlage
Küche: stilvolle Landhaus-Einbauküche mit modernen Geräten
Bäder: zwei hochwertige Tageslichtbäder mit Fenster und gehobener Sanitärausstattung
Außenbereich: Carport mit zwei Stellplätzen, praktischer Schuppen für Fahrräder und Mülltonnen, gepflegter Garten mit viel Gestaltungspotenzial
Weitere Highlights: energieeffiziente Bauweise, durchdachte Grundrissgestaltung, helle und großzügige Räume
Lage
Das Doppelhaus befindet sich in ruhiger und familienfreundlicher Lage in Hoisdorf, einer beliebten Gemeinde im Kreis Stormarn. Die Adresse Schwarzer Weg überzeugt durch ihre idyllische Umgebung und die Nähe zur Natur. Gleichzeitig sind alle wichtigen Einrichtungen des täglichen Bedarfs schnell erreichbar. Einkaufsmöglichkeiten, Kindergärten, Schulen sowie ärztliche Versorgung befinden sich in der Umgebung und sind sowohl mit dem Auto als auch mit dem Fahrrad in kurzer Zeit erreichbar. Durch die verkehrsgünstige Anbindung an die Autobahn A1 sowie an die B404 sind die Städte Hamburg, Lübeck und Ahrensburg gut erreichbar – ideal für Berufspendler. Hoisdorf selbst bietet zudem zahlreiche Freizeit- und Erholungsmöglichkeiten, wie Rad- und Wanderwege, Reitställe und die Nähe zum Naherholungsgebiet „Großensee“.
Grundriss
EG
>
>
1.OG
>
>
2.OG
>
>
Adresse
22955 Hoisdorf
Interessante Orte
Preis- und Lageinformationen
Preistrend für Bestandsimmobilien in Hoisdorf