Es handelt sich um ein wunderschönes und barrierefreies Mehrfamilienhaus mit 26 Neubau-Wohnungen in zentraler Wohnlage von Hochspeyer. Der Wohnkomplex bietet einen barrierefreien Zugang zum Treppenhaus und verfügt auch über einen Aufzug.
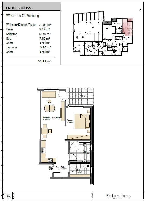
Diese stilvolle 2 Zimmer-Wohnung befindet sich im Erdgeschoss eines ruhigen und gehobenen Wohnkomplexes. Die gut geschnittene 2-Zimmer Wohnung bietet auf ca. 70qm Wohnfläche, einen schönen Eingangsbereich, ein Abstellraum als Hausanschluss und Hauswirtschaftsraum, ein helles und geräumiges Wohnzimmer mit offener Küche, 1 Schlafzimmer und ein barrierefreies Duschbad mit Fenster. Zusätzlich bietet eine Terrasse sich vom Alltagsstress zurückzuziehen und sich zu entspannen.
Alle Wohnungen haben eine außergewöhnliche Ausstattung, wie z. B. Fußbodenheizung, große Fensterflächen, elektrische Rollläden, offene Wohnraumgestaltung, Klingel mit Videofunktion, barrierefreies Duschbad, teilweise innenliegend und teilweise mit Fenster, hier können Sie noch frei wählen.
Jede Wohnung ist individuell mit viel Liebe zum Detail ausgestattet und sind lichtdurchflutet, behinderten- bzw. altersgerecht gestaltet. Die Balkone und Terrassen bieten einen Ausblick über die Stadt Hochspeyer oder einen wunderbaren Blick ins Grüne. Die bodentiefen, weißen Kunststofffenster schaffen in jeder Wohneinheit einen schönen, lichtdurchfluteten Wohn- und Schlafbereich.
Alle Wohnungen verfügen über einen Abstellraum mit Waschmaschinen-Anschluss.Der Mieter hat die Möglichkeit eine Einbauküche ganz nach seinen eigenen Bedürfnissen einrichten zu lassen und bietet dadurch zusätzlich einen noch besseren Wohnkomfort.
Optional besteht die Möglichkeit einen Stellplatz in der Tiefgarage anzumieten. Die Miete für den Stellplatz beträgt monatlich 75,00€. In der Tiefgarage sind 2 Stellplätze mit Ladevorrichtung für Ihr E-Auto vorhanden.
Bei den Wohnungen handelt es sich um NEUBAU ERSTBEZUG! Die Nebenkosten betragen ca. 4,34 €/qm inkl. einer Betreuungpauschale und basieren auf 1 Personenhaushalt, daher kann die Nebenkosten-Vorauszahlung noch variieren.
Das Anschaffen und Halten von Haustieren bedarf nach Absprache mit der Vermieterin. Bei Mietvetragsabschluss ist ein Dienstleistungsvertrag mit AWO Service-Wohnen abzuschließen, dieser beinhaltet ein Basispaket für ein altersgerechtes Zusammenwohnen.
Zum Beispiel lädt ein Gemeinschaftsraum für ein geselliges Frühstücken, Zusammentreffen oder Sportaktivitäten ein und bietet die Möglichkeit im Alter für Jung und Alt zusammen zu kommen und sich dort mit der Hausgemeinschaft zu treffen. Der Gemeinschaftsraum bietet auch eine Küche zur allgemeinen Nutzung für ein harmonischen Zusammenleben.
Die Wohnung ist ab sofort bzw. nach Einzugswunsch beziehbar.
NEUBAU-ERSTBEZUG: ALTERS- / BEHINDERTENGERCHTES WOHNEN MIT TOLLER AUSSTATTUNG, TERRASSE & STELLPLATZ
67691 Hochspeyer
Die vollständige Adresse der Immobilie erhalten Sie vom Anbieter.
Auf Karte anzeigen
Die vollständige Adresse der Immobilie erhalten Sie vom Anbieter.
Infos
| Wohnungskategorie | Erdgeschosswohnung |
|---|---|
| Etage | 0 von 3 |
| Wohnfläche ca. | 69 m2 |
| Bezugsfrei ab | sofort |
| Zimmer | 2 |
| Schlafzimmer | 1 |
| Badezimmer | 1 |
| Haustiere | Nach Vereinbarung |
| Garage/Stellplatz | Tiefgarage |
| Anzahl Garage/Stellplatz | 1 |
Kosten
| Kaltmiete |
898 € |
|---|---|
| Nebenkosten | + 314 € |
| Heizkosten | in Nebenkosten enthalten |
| Gesamtmiete | 1.213 € |
| Miete für Garage/Stellplatz | 75 € |
| Kaution o. Genossenschaftsanteile | 2700 |
Weiter mieten oder doch kaufen?
Wer in Miete wohnt, überweist dem Vermieter im Laufe der Jahre hohe Summen, die sich
auch in die eigenen vier Wände investieren lassen könnten.
Bausubstanz & Energieausweis
| Baujahr | 2022 |
|---|---|
| Objektzustand | Erstbezug |
| Qualität der Austattung | Gehoben |
| Heizungsart | Fußbodenheizung |
| Wesentliche Energieträger | Erdgas schwer |
| Energieausweis | liegt zur Besichtigung vor |
Beschreibung des Objekts
Ausstattung
Barrierefreie Wohnungen -
(alters- und behindertengerecht)
teilw. Bad mit Fenster und Dusche
Balkon / Terrasse
offene Küche (ohne EBK)
barrierefrei, rollstuhlgerecht
Böden: Fliesenboden, Parkett
Fenster: Kunststofffenster
elektr. Rollläden
Video-Sprechanlage
Zustand: Neubau / Erstbezug
kontrollierte Be- und Entlüftungsanlage
Weitere Räume: Abstellraum
Anschlüsse: DSL-Anschluss
Wohnanlage:
Baujahr: 2022
Zustand: Neubau
Personenaufzug
1 Stellplatz in der Tiefgarage optional
Serviceleistungen: Reinigungsservice
Lage
Das neuwertige und gehobene Mehrfamilienhaus befindet sich an einem sonnigen Südhang in zentraler Wohnlage von Hochspeyer. die Nähe zur Natur und dem Pfälzerwald macht Ihr neues Zuhause zu einem idealen Rückzugsort.
Die Gemeinde Hochspeyer liegt rund zehn Kilometer östlich von Kaiserslautern und gehört zur Verbandsgemeinde Enkenbach-Alsenborn. Die naturnahe Lage am Pfälzerwald bietet hohe Lebensqualität mit zahlreichen Wander- und Radwegen, darunter der Pfälzer Jakobsweg und der Mountainbikepark Pfälzerwald.
Die Gemeinde verfügt über eine ausgezeichnete Verkehrsanbindung. Die Bundesstraße B37 und die nahegelegene A6 ermöglichen schnelle Verbindungen nach Kaiserslautern, Mannheim und Saarbrücken. Zudem sorgt der Bahnhof Hochspeyer mit regelmäßigen Regionalbahnverbindungen für eine gute Anbindung an die Metropolregion Rhein-Neckar. Der Bahnhof ist fußläufig zu erreichen, sodass ein PKW gar nicht zwingend erforderlich ist.
Die Infrastruktur umfasst Einkaufsmöglichkeiten, Schulen, Kindergärten und medizinische Versorgung, während Kaiserslautern weiterführende Angebote bietet.
Sonstige Angaben
Besichtigungstermine:
Bitte lassen Sie uns bei Interesse am Objekt, die Mieter-Selbstauskunft zukommen. Die PDF-Datei finden Sie hier im Inserat und dient als reine Information für den Vermieter. Selbstverständlich werden Ihre Daten vertraulich behandelt! Vielen Dank im Voraus.
Alle Angaben in diesem Exposé wurden sorgfältig und so vollständig wie möglich gemacht. Gleichwohl kann das Vorhandensein von Fehlern nicht ausgeschlossen werden. Die Angaben in diesem Exposé erfolgen daher ohne jede Gewähr.
Besichtigungen sind jederzeit, jedoch nur nach vorheriger Terminabsprache möglich.
Sollte es nach Besichtigung zum Mietvertrag kommen,so benötigen wir dann weitere Bewerbungsunterlagen zwecks Bonitätsprüfung:
1) Mieter-Selbstauskunft
2) SCHUFA-Selbstauskunft
3) Nachweis zum Einkommen
4) Nachweis zur Identität
5) Mietschuldenfreiheitsbescheinigung
6) Abschluss einer Haftpflichtversicherung gegen Schäden am Mietobjekt / Verlust der Schlüssel der vorhandenen Schließanlage
DATENSCHUTZ:
Innerhalb dieser Internetpräsenz besteht die Möglichkeit uns personenbezogene Daten zu übermitteln. Dies sind Informationen die genutzt werden können um Ihre Identität zu erfahren. Darunter fallen Informationen wie Ihr Name, Adresse, Postanschrift, Telefonnummer, E-Mail, Adresse. Hinsichtlich Ihrer personenbezogenen Daten weisen wir gemäß §33 BDSG darauf hin, dass diese nach Maßgabe der anwendbaren Datenschutzbestimmungen gespeichert und/oder übertragen werden. Im Übrigen werden personenbezogene Daten absolut vertraulich behandelt und nur mit gesonderter Zustimmung an Dritte weitergeleitet. Wir weisen ausdrücklich darauf hin, dass der Datenschutz in offenen Netzen wie dem Internet nach dem derzeitigen Stand der Technik nicht vollständig gewährleistet werden kann.
Weitere Dokumente
DATENSCHUTZWiderrufsbelehrung für Verbrau
Mieter-Selbstauskunft
Mietschuldenfreistellungsbesch
Grundriss
Grundriss-Whg-03-EG
>
>
Adresse
67691 Hochspeyer
Interessante Orte
Preis- und Lageinformationen
Preistrend für Bestandsimmobilien in Hochspeyer