Diese hochwertige Doppelhaushälfte in familienfreundlicher Lage bietet modernes Wohnen auf rund 141 m² Wohnfläche – ideal für Paare oder Familien, die Wert auf zeitgemäßen Komfort und durchdachte Raumaufteilung legen. Der Erstbezug ist ab dem 01.12.2025 möglich – bereits jetzt sind Besichtigungen vor Ort möglich, um sich einen persönlichen Eindruck von Ihrem zukünftigen Zuhause zu verschaffen.
Raumaufteilung:
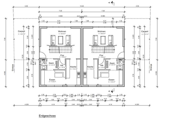
Im Erdgeschoss befindet sich ein großzügiges und lichtdurchflutetes Wohnzimmer mit direktem Zugang zur geräumigen, überdachten Terrasse – perfekt für entspannte Stunden im Freien. Die offene Küche wird mit einer modernen Einbauküche in stilvollem Schwarz ausgestattet und lädt zum gemeinsamen Kochen ein. Ein Gäste-WC sowie ein praktischer Abstellraum unter der Treppe runden das Raumangebot im Erdgeschoss ab.
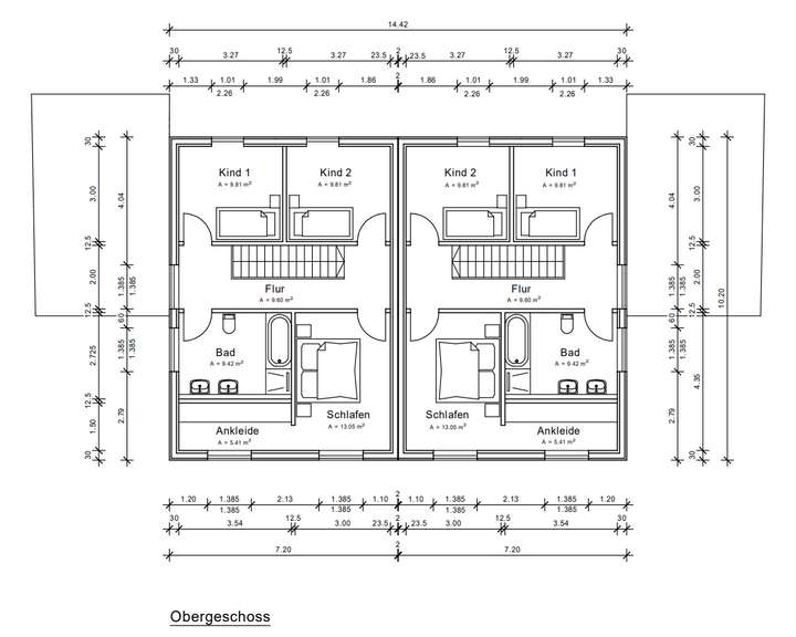
Das Obergeschoss beherbergt drei gut geschnittene Schlafzimmer sowie ein komfortables Badezimmer mit hochwertiger Ausstattung: Walk-In-Dusche, Badewanne, zwei Waschbecken und Waschmaschinenanschluss bieten höchsten Wohnkomfort. Ein besonderes Highlight ist der begehbare Kleiderschrank im Hauptschlafzimmer, der auch flexibel anderweitig genutzt werden kann.
Ausstattung im Überblick:
Ca. 141 m² Wohnfläche
Moderner Vinylboden in allen Wohnräumen
Einbauküche in elegantem Schwarz
Elektrische Außenrollläden an allen Fenstern
Begehbarer Kleiderschrank im Schlafzimmer
Überdachte Terrasse auf der Rückseite des Hauses
Carport mit angrenzendem Abstellraum für Fahrräder und Gartengeräte
Fazit:
Diese Immobilie vereint moderne Architektur mit funktionaler Ausstattung und bietet ein behagliches Zuhause für anspruchsvolle Bewohner. Vereinbaren Sie jetzt einen Besichtigungstermin und lassen Sie sich von dieser Doppelhaushälfte begeistern.
Moderne und neuwertige Doppelhaushälfte in Oyle zu vermieten
31608 Marklohe
Die vollständige Adresse der Immobilie erhalten Sie vom Anbieter.
Auf Karte anzeigen
Die vollständige Adresse der Immobilie erhalten Sie vom Anbieter.
Infos
| Wohnungskategorie | Etagenwohnung |
|---|---|
| Wohnfläche ca. | 141 m2 |
| Bezugsfrei ab | ab 01.12.2025 möglich |
| Zimmer | 4 |
| Garage/Stellplatz | Carport |
| Anzahl Garage/Stellplatz | 1 |
Kosten
| Kaltmiete |
1.300 € |
|---|---|
| Nebenkosten | + 150 € |
| Heizkosten | keine Angabe |
| Gesamtmiete | 1.450 € (zzgl. Heizkosten) |
| Kaution o. Genossenschaftsanteile | 2 Nettomieten |
Weiter mieten oder doch kaufen?
Wer in Miete wohnt, überweist dem Vermieter im Laufe der Jahre hohe Summen, die sich
auch in die eigenen vier Wände investieren lassen könnten.
Bausubstanz & Energieausweis
| Baujahr | 2025 |
|---|---|
| Objektzustand | Neuwertig |
| Qualität der Austattung | Gehoben |
| Heizungsart | Wärmepumpe |
| Wesentliche Energieträger | Strom |
| Energieausweis | liegt vor |
| Energieausweistyp | Bedarfsausweis |
| Energieverbrauchskennwert | 22,0 kWh/(m²*a) |
| Energieeffizienzklasse | A+ |
22,0
kWh/(m²*a)
Energieeffizienzklasse A+
- A+
- A
- B
- C
- D
- E
- F
- G
- H
- 0
- 25
- 50
- 75
- 100
- 125
- 150
- 175
- 200
- 225
- >250
Beschreibung des Objekts
Ausstattung
Einbauküche, Fußbodenheizung, Gäste WC, KFZ-Stellplatz, begehbarer Kleiderschrank, Terasse, Wannenbad
Lage
Die Immobilie befindet sich in ruhiger Wohnlage im Ortsteil Oyle der Gemeinde Marklohe, im Landkreis Nienburg/Weser in Niedersachsen. Oyle ist geprägt durch eine naturnahe Umgebung mit ländlichem Charme und guter Anbindung an die nahegelegene Stadt Nienburg (Weser), die in wenigen Minuten mit dem Auto erreichbar ist.
Die Nachbarschaft zeichnet sich durch gepflegte Einfamilienhäuser und eine angenehme, familienfreundliche Atmosphäre aus. Einkaufsmöglichkeiten, Schulen, Kindergärten und medizinische Versorgung befinden sich in der näheren Umgebung und sind sowohl mit dem Auto als auch mit dem Fahrrad gut erreichbar.
Die Nähe zur Bundesstraße B6 ermöglicht eine gute Verkehrsanbindung in Richtung Hannover und Bremen, was den Standort auch für Pendler attraktiv macht. Gleichzeitig lädt die umgebende Natur zu Spaziergängen, Radtouren und Freizeitaktivitäten im Grünen ein – ideal für alle, die eine Kombination aus ruhigem Wohnen und guter Erreichbarkeit suchen.
Grundriss
Grundriss EG
>
>
Grundriss OG
>
>
Adresse
31608 Marklohe
Interessante Orte
Preis- und Lageinformationen
Preistrend für Bestandsimmobilien in Marklohe