Diese ansprechende Immobilie überzeugt durch eine großzügige Raumaufteilung sowie durch eine gehobene, moderne Ausstattung.
Das Wohnzimmer mit Zugang zur Terrasse bildet das Zentrum des Erdgeschosses und bietet eine ideale Verbindung von Wohnkomfort und Repräsentativität. Die angrenzende, hochwertig ausgestattete Einbauküche erfüllt sämtliche Anforderungen an modernes Wohnen.
Darüber hinaus steht im Erdgeschoss ein Gäste-Bad mit bodentiefer Dusche zur Verfügung – ideal für Besucher oder zur flexiblen Nutzung.
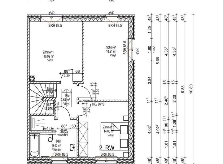
Im Obergeschoss befinden sich das geräumige Schlafzimmer, ein Kinderzimmer, ein separates Arbeitszimmer, sowie ein stilvoll gestaltetes, barrierearmes Vollbad. Dieses verfügt über eine separate, bodenebene Dusche und erfüllt somit auch gehobene Ansprüche an Komfort und Funktionalität.
Ein Hauswirtschaftsraum bietet ausreichend Platz für Technik, Vorräte und Haushaltsorganisation. Der Spitzboden stellt zusätzliche Lagerfläche bereit und rundet das Raumangebot sinnvoll ab.
Moderne Doppelhaushälfte im Neubaugebiet
25436 Uetersen
Die vollständige Adresse der Immobilie erhalten Sie vom Anbieter.
Auf Karte anzeigen
Die vollständige Adresse der Immobilie erhalten Sie vom Anbieter.
Infos
| Haustyp | Doppelhaushaelfte |
|---|---|
| Wohnfläche ca. | 124 m2 |
| Grundstücksfläche | 435 m2 |
| Bezugsfrei ab | 01.11.2025 |
| Zimmer | 4 |
| Garage/Stellplatz | Außenstellplatz |
| Anzahl Garage/Stellplatz | 2 |
Kosten
| Kaltmiete |
1.950 € |
|---|---|
| Nebenkosten | + 150 € |
| Heizkosten | keine Angabe |
| Gesamtmiete | 2.100 € (zzgl. Heizkosten) |
| Kaution o. Genossenschaftsanteile | 5.850,00 |
Weiter mieten oder doch kaufen?
Wer in Miete wohnt, überweist dem Vermieter im Laufe der Jahre hohe Summen, die sich
auch in die eigenen vier Wände investieren lassen könnten.
Bausubstanz & Energieausweis
| Baujahr | 2025 |
|---|---|
| Heizungsart | Wärmepumpe |
| Wesentliche Energieträger | Strom |
| Energieausweis | liegt vor |
| Energieausweistyp | Bedarfsausweis |
| Energieverbrauchskennwert | 18,4 kWh/(m²*a) |
| Energieeffizienzklasse | A+ |
18,4
kWh/(m²*a)
Energieeffizienzklasse A+
- A+
- A
- B
- C
- D
- E
- F
- G
- H
- 0
- 25
- 50
- 75
- 100
- 125
- 150
- 175
- 200
- 225
- >250
Beschreibung des Objekts
Ausstattung
- Großzügiges Wohnzimmer mit Austritt auf die Terrasse
- Schlafzimmer
- Arbeitszimmer
- Kinderzimmer
- Moderne Einbauküche
- Hauswirtschaftsraum
- Gäste-Bad mit bodentiefer Dusche
- Modernes, barrierearmes Vollbad mit separater bodenebener Dusche im Obergeschoss
- Spitzboden als Lagerfläche
- Elektrische Rollläden
- Kunststofffenster mit 3-fach-Isolierverglasung
- Be- und Entlüftungssystem
Lage
Uetersen, auch Rosen- und Hochzeitsstadt genannt, beheimatet rund 18.100 Einwohner und liegt im nordwestlichen Randbereich der Metropole Hamburg. Mit seinen Nachbargemeinden befindet sich Uetersen in zentraler Lage im Kreis Pinneberg. Besondere Merkmale sind das Rosarium der Stadt, Norddeutschlands größter Rosengarten sowie der Ruf als Hochzeitsstadt, in der man sich rund um die Uhr das Ja-Wort geben kann. Es finden sich alle Einkaufsmöglichkeiten des täglichen Bedarfs in Uetersen sowie die Fußgängerzone mit einem Mix aus Geschäften, Ärzten, Apotheken, Restaurants und Cafés.
Die Nähe zur A23 über die Anschlussstelle Tornesch bietet gute Anbindungen an das Autobahnnetz. Optimale Bedingungen bietet auch das Verkehrsgebiet der öffentlichen Verkehrsbetriebe. Ihre Buslinien verbinden Uetersen mit den Städten Elmshorn und Wedel sowie den umliegenden Gemeinden.
Verkehrsgünstig ist die Lage an der B431 und der Anschluss an die Bahnhöfe in Tornesch und Elmshorn,
die mit den Bahnlinien Hamburg, Kiel, Westerland (Sylt) und Flensburg verbindet.
Die Stadt Uetersen verfügt über sechs allgemeinbildende Schulen, davon drei Grundschulen, zwei Gemeinschaftsschulen, ein Gymnasium und ein Förderzentrum. Dieses Angebot wird abgerundet durch zahlreiche Kindergärten und Kindertagesstätten.
Sonstige Angaben
Die Verbrauchskosten (Wasser, Strom) rechnen die Mieter direkt mit den Versorgern ab.
Es wird ein beidseitiger Kündigungsausschluss von 24 Monaten vereinbart.
Weitere Angebote finden Sie unter www.martens-kuehl.de
Grundriss
Erdgeschoss
>
>
Obergeschoss
>
>
Adresse
25436 Uetersen
Interessante Orte
Preis- und Lageinformationen
Preistrend für Bestandsimmobilien in Uetersen