Zum Hauptinhalt springen
1/18
2/18
3/18
4/18
5/18
6/18
7/18
8/18
9/18
10/18
11/18
12/18
13/18
14/18
15/18
16/18
17/18
18/18
Junge erwachsene Frau in urbaner Umgebung, in die Ferne schauend. Mit Angebot zu Tagesgeldkonto im Overlay.
Tagesgeldkonto
Neu: jetzt mit 1,00% Zinsen p.a.
Sonderzinsen sichern!

Schöne 3-Raumwohnung am Bahnhof in Dessau

Fritz-Hesse-Str. 41, 06844 Dessau-Roßlau
Auf Karte anzeigen
Logo ImmoScout24 Logo ImmoScout24

Infos

Wohnungskategorie Etagenwohnung
Etage 2 von 2
Wohnfläche ca. 63 m2
Nutzfläche 63,24 m2
Bezugsfrei ab 01.10.2025
Zimmer 3
Schlafzimmer 1
Badezimmer 1
Haustiere Nach Vereinbarung
Garage/Stellplatz Außenstellplatz
Anzahl Garage/Stellplatz 20

Kosten

Kaltmiete 442 €
Nebenkosten + 100 €
Heizkosten + 100 €
Gesamtmiete 552 € (zzgl. Heizkosten)
Miete für Garage/Stellplatz 30 €

Weiter mieten oder doch kaufen?

Wer in Miete wohnt, überweist dem Vermieter im Laufe der Jahre hohe Summen, die sich auch in die eigenen vier Wände investieren lassen könnten.
In Ihrem Bundesland müssen Sie mit % Nebenkosten rechnen. Diese werden von dem finalen Betrag abgezogen.

Ihr Ergebnis

Mit diesen Zahlen können wir nicht rechnen.
Glückwunsch!
Sie können sich Ihr Traumzuhause im Wert von 308.894 € leisten!
Bitte geben Sie ein höheres Eigenkapital an. In der aktuell von Ihnen eingegebenen Konstellation sind die angenommenen Nebenkosten höher als das von Ihnen eingebrachte Eigenkapital.
*Basierend auf einem Zinssatz von % / % anfängliche Tilgung
Der Rechner soll Sie bei der Beantwortung der Frage: „Wie viel Haus kann ich mir eigentlich leisten?“ unterstützen. Das Ergebnis wird auf Grundlage der von Ihnen eingegebenen Daten und angenommenen pauschalisierten Werten errechnet. Für eine auf Sie zugeschnittene Aussage empfehlen wir Ihnen eine persönliche Beratung.

Details zur Berechnung

Bausubstanz & Energieausweis

Baujahr 1937
Letzte Sanierung 2007
Objektzustand Vollständig Renoviert
Qualität der Austattung Normal
Heizungsart Fernwärme
Wesentliche Energieträger Fernwärme-Dampf
Energieausweis liegt zur Besichtigung vor

Beschreibung des Objekts

                Die Häuser wurden 2007/2008 vollständig saniert.  Sie verfügen über großzügige Balkonanlagen und werden über Fernwärme versorgt. Der gute Mix aus 2- und 3-Raumwohnungen mit zweckmäßigen Grundrissen ist für Singles und Familien geeignet. Stellplätze stehen auf dem Hof Verfügung.
            

Ausstattung

                Die schön geschnittene, helle Wohnung wurde renoviert und verfügt über ein gefliestes  Wannen-/Duschbad, Waschmaschinenanschluss, geflieste Küche, Laminat in allen Räumen, Isolierglasfenster, Balkon etc. Zu jeder Wohnung gehört ein Kellerraum.
               

Sonstige Angaben

                Hinweis:  Der Mieter schließt mit den Stadtwerken Dessau einen eigenen Vertrag über die Lieferung von Warmwasser und Heizung ab (zurzeit ca. 1.50 €/m² Heiz- und Warmwasserkosten).
           

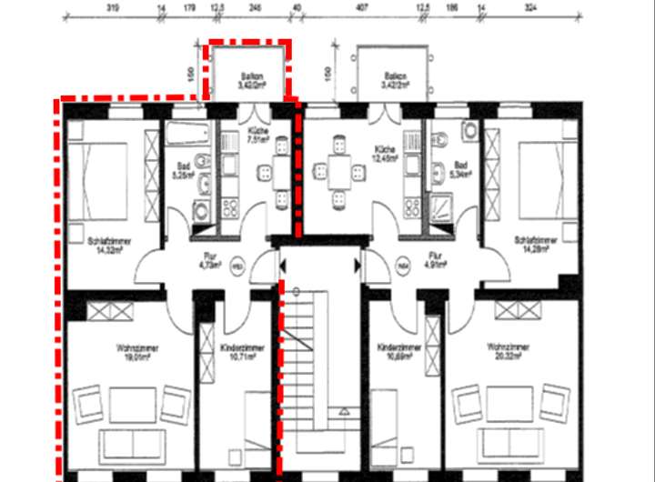
Grundriss

Grundriss Fritz-Hesse-Str. 41, Grundriss Fritz-Hesse-Str. 41, >

Adresse

Fritz-Hesse-Str. 41, 06844 Dessau-Roßlau

Interessante Orte

Bäckereien
Schulen
Ärzte

Preis- und Lageinformationen

Preistrend für Bestandsimmobilien in Innerstädtischer Bereich Mitte
Sept. 2022 Sept. 2023 Sept. 2024 Sept. 2025 6,19 €/m² 6,52 €/m² 5,33 % 2,15 %

Dieser Zeitraum ist nur für eingeloggte User sichtbar.

Jetzt einloggen

Ansprechpartner