Willkommen in diesem außergewöhnlich großzügigen Einfamilienhaus, das auch perfekt als Mehrgenerationenhaus genutzt werden kann. Auf rund 274 m² Wohnfläche erwartet Sie ein lichtdurchflutetes Ambiente, das Raum für Ihre persönlichen Wohnträume bietet, ob große Familie, Homeoffice oder Gäste.
Das Herzstück des Hauses ist das rund 53 m² große Wohnzimmer mit fast bodentiefer Fensterfront und Blick in den liebevoll angelegten Garten. Hier genießen Sie zu jeder Jahreszeit eine warme, einladende Atmosphäre. Das offene, großzügige Foyer heißt Sie und Ihre Gäste stilvoll willkommen und unterstreicht den besonderen Charakter dieser Immobilie.
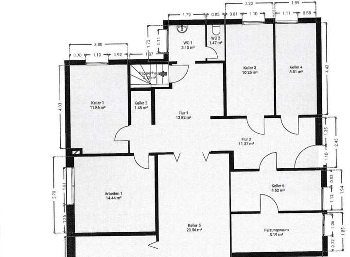
Zehn vielseitig nutzbare Zimmer, zwei elegante Badezimmer und insgesamt zwei zusätzliche WCs sorgen für höchsten Wohnkomfort. Der große Garten mit Terrasse und Grillplatz lädt zu entspannten Stunden im Freien ein, während der Balkon und die hauseigene Sauna zusätzliche Wohlfühlmomente schaffen.
Ausstattung im Überblick
• 53 m² lichtdurchflutetes Wohnzimmer mit Blick in den Garten
• Einbauküche
• Zehn vielseitig nutzbare Zimmer und zwei Abstellräume
• Zwei geschmackvolle Badezimmer
• Gäste-WC im Erdgeschoss
• Zusätzliches WC im Keller
• Großer Garten mit Terrasse und Grillplatz
• Balkon mit rund sieben Quadratmetern Fläche
• Entspannende Sauna
• Garage und Carport direkt am Haus
Einfamilienhaus mit großem Garten, Terrasse & Balkon, 274 m² zu vermieten
63454 Hanau
Die vollständige Adresse der Immobilie erhalten Sie vom Anbieter.
Auf Karte anzeigen
Die vollständige Adresse der Immobilie erhalten Sie vom Anbieter.
Infos
| Haustyp | Einfamilienhaus |
|---|---|
| Etagenzahl | 3 |
| Wohnfläche ca. | 274 m2 |
| Grundstücksfläche | 686 m2 |
| Bezugsfrei ab | nach Absprache |
| Zimmer | 10 |
| Badezimmer | 4 |
| Garage/Stellplatz | Garage |
| Anzahl Garage/Stellplatz | 1 |
Kosten
| Kaltmiete |
2.850 € |
|---|---|
| Nebenkosten | + 520 € |
| Heizkosten | in Nebenkosten enthalten |
| Gesamtmiete | 3.370 € |
| Kaution o. Genossenschaftsanteile | 8550 EUR |
Weiter mieten oder doch kaufen?
Wer in Miete wohnt, überweist dem Vermieter im Laufe der Jahre hohe Summen, die sich
auch in die eigenen vier Wände investieren lassen könnten.
Bausubstanz & Energieausweis
| Baujahr | unbekannt |
|---|---|
| Objektzustand | Vollständig Renoviert |
| Wesentliche Energieträger | Fernwärme |
| Energieausweis | liegt zur Besichtigung vor |
Beschreibung des Objekts
Ausstattung
Balkon, Terrasse, Garten, Keller, Vollbad, Duschbad, Sauna, Einbauküche, Gäste-WC, Laminat, Fliesen
Lage
Die Immobilie befindet sich in einer ruhigen und gepflegten Wohnstraße im beliebten Hanauer Stadtteil Kesselstadt. Die Röntgenstraße ist eine verkehrsberuhigte Anliegerstraße mit 30 km/h-Zone, was für eine angenehme Wohnatmosphäre sorgt und besonders für Familien attraktiv ist.
Kesselstadt überzeugt durch seinen charmanten Mix aus historischem Flair und moderner Infrastruktur. Das nahegelegene Schloss Philippsruhe mit seinem weitläufigen Park, die Mainpromenade mit Spielplatz, sowie die Kuranlagen Wilhelmsbad bieten vielfältige Möglichkeiten zur Erholung, für Spaziergänge und sportliche Aktivitäten.
Die Nahversorgung ist ausgezeichnet: Supermärkte, Bäckereien, Apotheken und Ärzte sind in wenigen Minuten erreichbar. Kindergärten, Grund- und weiterführende Schulen befinden sich ebenfalls in der Umgebung.
Die Verkehrsanbindung ist ideal. Über die A66, A45 und A3 erreichen Sie schnell Frankfurt, Offenbach, Aschaffenburg und die gesamte Rhein-Main-Region. Die Bahnhöfe Hanau-West und Hanau-Wilhelmsbad liegen nur wenige Fahrminuten entfernt und bieten schnelle Zugverbindungen in Richtung Frankfurt und Fulda. Der internationale Flughafen Frankfurt ist in etwa 30 Minuten erreichbar.
Kesselstadt bietet zudem ein lebendiges Vereins- und Kulturleben, regelmäßige Veranstaltungen im Amphitheater am Schloss Philippsruhe sowie ein abwechslungsreiches Gastronomieangebot.
Infrastruktur (im Umkreis von 5 km):
Apotheke, Lebensmittel-Discount, Allgemeinmediziner, Kindergarten, Grundschule, Hauptschule, Realschule, Gymnasium, Gesamtschule, Öffentliche Verkehrsmittel
Sonstige Angaben
Energieträger: Fernwärme
Energieausweis nicht vorhanden
Mietvoraussetzungen
•SCHUFA-Bonitätsauskunft
•Letzte drei Gehaltsabrechnungen
•Optional: Mietschuldenfreiheitsbescheinigung des Vorvermieters
Miete:
Kalt: 2.850€
Warm zzgl. ca. 520€
Vereinbaren Sie gerne einen Besichtigungstermin und überzeugen Sie sich selbst von diesem besonderen Wohnangebot. Sie können uns auch telefonisch unter der Nummer 01726959518 erreichen.
Makleranfragen nicht erwünscht. Nach § 7 UWG sind unaufgeforderte Kontaktaufnahmen durch Makler ohne ausdrückliche Einwilligung des Empfängers verboten!
ohne-makler (OM) ist weder Anbieter noch Vermittler der Immobilie. OM betreibt eine Plattform für Immobilieneigentümer, die unter anderem die gleichzeitige Veröffentlichung einzelner Inserate auf mehreren Immobilienportalen ermöglicht. Die Inhalte dieser Inserate werden ausschließlich von Dritten verantwortet. Für die Richtigkeit, Vollständigkeit oder Rechtmäßigkeit der Angaben übernimmt OM keine Haftung. Hinweise auf mögliche Rechtsverstöße können jederzeit gemeldet werden und werden nach Prüfung umgehend bearbeitet.
Grundriss
Erdgeschoss
>
>
Obergeschoss
>
>
Untergeschoss
>
>
Adresse
63454 Hanau
Interessante Orte
Preis- und Lageinformationen
Preistrend für Bestandsimmobilien in Hanau