Willkommen in der Papierfabrik Schkeuditz!
Im historischen Denkmalensemble der Papierfabrik Schkeuditz wartet ein frisch saniertes 4-Zimmer-Reihenhaus mit ca. 131 m² Wohnfläche auf Sie.
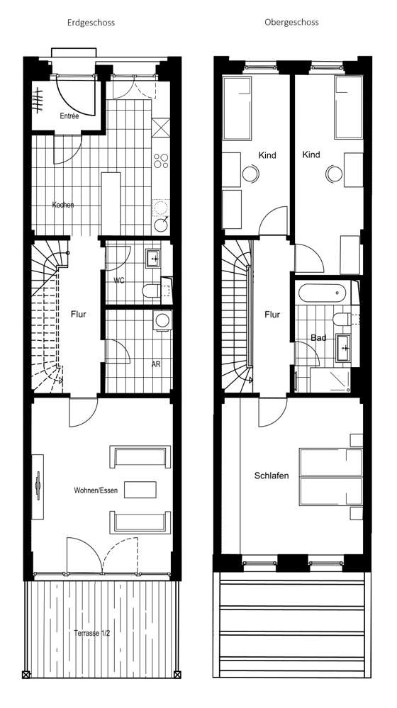
Das Erdgeschoss empfängt mit einem einladenden Entrée und einem offenen Koch-/Essbereich; über den Flur sind das Gäste-WC und ein Hauswirtschaftsraum mit Waschmaschinenanschluss erreichbar.
Im Anschluss öffnet sich der großzügige Wohn-/Essbereich mit direktem Zugang zur großen Terrasse – ideal für entspannte Abende im Freien.
Im Obergeschoss befinden sich drei gut geschnittene Zimmer sowie ein komfortables Bad mit Wanne und separater Dusche.
Hochwertige Details wie Echtholzparkett und Fußbodenheizung sorgen für zeitgemäßen Wohnkomfort.
Das historische Gebäude-Ensemble beherbergt außerdem gemeinschaftlich nutzbare Annehmlichkeiten wie eine Sauna und einen Fitnessbereich sowie einen Spielplatz für die Kleinen. Obendrauf gibt's einen Stellplatz im Freien für nur 50,00 € monatlich.
Bereit für den Einzug? Dein neues Zuhause ist ab sofort verfügbar! Vereinbare noch heute einen Besichtigungstermin unter 0341 900 440-0!
Eigenes Haus mit Garten | Einbauküche möglich | ab sofort verfügbar
Fabrikstraße 33,
04435 Schkeuditz
Auf Karte anzeigen
Infos
| Haustyp | Reihenmittelhaus |
|---|---|
| Wohnfläche ca. | 130 m2 |
| Grundstücksfläche | 70 m2 |
| Bezugsfrei ab | sofort |
| Zimmer | 4 |
| Badezimmer | 1 |
| Haustiere | Nach Vereinbarung |
| Garage/Stellplatz | Außenstellplatz |
| Anzahl Garage/Stellplatz | 1 |
Kosten
| Kaltmiete |
1.309 € |
|---|---|
| Nebenkosten | + 400 € |
| Heizkosten | in Nebenkosten enthalten |
| Gesamtmiete | 1.709 € |
| Miete für Garage/Stellplatz | 50 € |
| Kaution o. Genossenschaftsanteile | 2.618,60 |
Weiter mieten oder doch kaufen?
Wer in Miete wohnt, überweist dem Vermieter im Laufe der Jahre hohe Summen, die sich
auch in die eigenen vier Wände investieren lassen könnten.
Bausubstanz & Energieausweis
| Objektzustand | Saniert |
|---|---|
| Qualität der Austattung | Gehoben |
| Heizungsart | Wärmepumpe |
| Energieausweis | laut Gesetz nicht erforderlich |
Beschreibung des Objekts
Ausstattung
- Historisches Gebäude-Ensemble
- Eigenes Haus mit großer Terrasse
- Hochwertig ausgestattete Bäder
- Bad mit Dusche und mit Wanne
- Gäste-WC
- Echtholzparkett und Fußbodenheizung
- Gas-Brennwerttherme und Luft-Wärmepumpe
- Gemeinschaftlich nutzbare Sauna und Fitnessbereich
- Gemeinschaftshof und Spielplatz
- Großer Abstellraum innerhalb des Hauses
- Stellplatz im Freien für 50,00 € /mtl.
- Weitere Wohnungen aus diesem Objekt finden Sie unter www.papierfabrik-schkeuditz.de
Lage
Schkeuditz – Kleinstadtflair mit Großstadtanschluss
Eingebettet zwischen den pulsierenden Städten Leipzig und Halle liegt Schkeuditz – eine charmante Stadt mit rund 18.000 Einwohnern. Bekannt durch den nahegelegenen Flughafen Leipzig/Halle, ist Schkeuditz längst nicht nur Verkehrsknotenpunkt, sondern ein attraktiver Wohnort mit hoher Lebensqualität.
Dank der hervorragenden Verkehrsanbindung über die Autobahnen A9 und A14 sowie die Bundesstraßen B6 und B186, erreichen Sie in kürzester Zeit die Zentren der umliegenden Städte. Auch per Bahn und Straßenbahn ist Schkeuditz bestens vernetzt – ideal für Pendler und Berufstätige. In knapp 15 Minuten erreicht man das Zentrum von Leipzig
Doch nicht nur Mobilität wird hier großgeschrieben: Wer Natur und Erholung sucht, findet sie direkt vor der Haustür. Der Auenwald lädt zu ausgedehnten Spaziergängen oder Fahrradtouren ein, während der Schladitzer See im Norden von Schkeuditz mit Badestellen, Wassersport und Sandstränden überzeugt – perfekt für aktive Sommertage oder entspannte Stunden im Freien.
Kulturell und historisch hat Schkeuditz einiges zu bieten. Die Stadtkirche St. Albanus, zahlreiche Denkmäler sowie ein Rittergut in der Nähe zeugen von einer bewegten Geschichte. Gleichzeitig entwickelt sich die Stadt stetig weiter: Neue Wohngebiete, moderne Freizeiteinrichtungen und ein wachsendes Vereinsleben bringen frischen Wind in die traditionsreiche Gemeinde.
Familienfreundlich, seniorengerecht und offen für Neues – Schkeuditz punktet mit einem breiten Angebot an Kindertagesstätten, Schulen, medizinischer Versorgung und Einkaufsmöglichkeiten. Zwei Krankenhäuser, vielfältige Betreuungs- und Bildungsangebote sowie ein reges Vereins- und Kulturleben machen den Ort besonders lebenswert.
Ob Sie den Alltag entschleunigen oder neue Wurzeln schlagen möchten – in Schkeuditz finden Sie den idealen Ort zum Leben, Arbeiten und Wohlfühlen.
Unweit des Erholungsparks Lößnig-Dölitz im Südosten von Leipzig liegt die Gemeinde Meusdorf.
Ein ruhiger Stadtteil, welcher dörfliche Idylle mit städtischer Nähe verbindet. Nur sieben Kilometer vom Zentrum entfernt, bietet es eine harmonische Mischung aus Wohngebieten, Grünflächen und historischen Elementen.
Trotz moderner Neubauten hat Meusdorf seinen ländlichen Charme bewahrt. Weitläufige Grünflächen, Spielplätze und wenig Verkehr machen den Stadtteil besonders attraktiv für Familien.
Die ausgezeichnete Anbindung an die Innenstadt sowie die Nähe zum Markkleeberger See, einem beliebten Freizeitgebiet, unterstreichen die hohe Lebensqualität.
Mit Kita, Grundschule und weiterführenden Schulen in der Nähe ist Meusdorf bestens aufgestellt. Ein idealer Ort für Naturliebhaber und Familien, die eine ruhige, grüne Umgebung schätzen und zugleich die Nähe zur Stadt genießen möchten.
Grundriss
Grundriss
>
>
Adresse
Fabrikstraße 33, 04435 Schkeuditz
Interessante Orte
Preis- und Lageinformationen
Preistrend für Bestandsimmobilien in Schkeuditz