Der Neubau befindet sich in einem Wohn- & Geschäftsquartier in zentraler Lage von Korntal-Münchingen. Auf einem ca. 3.600 m² großen Areal sind im Frühjahr 2024 61 Wohneinheiten, eine Praxis sowie eine Einkaufsmöglichkeit entstanden.
Zwei Tiefgaragenebenen bieten Platz für den Großteil der PKW-Stellplätze. Einen kleinen Teil der Stellplätze finden Sie im Außenbereich. In unmittelbarer Nähe befinden sich Anbindungen des ÖPNV s, sowie Geschäfte des täglichen Bedarfs.
Die Wohnungen sind ab sofort bezugsfertig!
*** Bilder stammen aus einer Musterwohnung im Haus ***
Neubau - 1. Monat mietfrei - Traumhafte 3 Zimmer-Maisonette in Top-Lage von Korntal-Münchingen
Stuttgarter Str. 44,
70825 Korntal-Münchingen
Auf Karte anzeigen
Infos
| Wohnungskategorie | Maisonette |
|---|---|
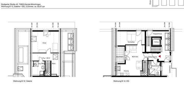
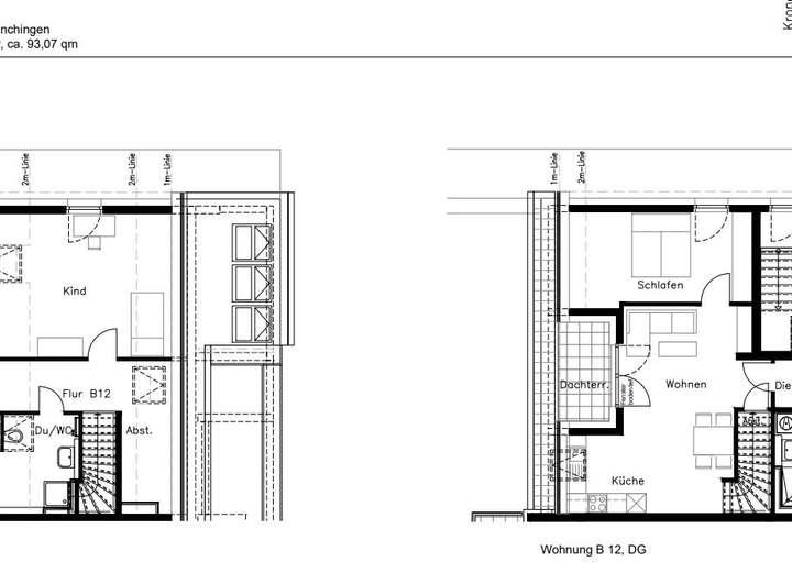
| Wohnfläche ca. | 93 m2 |
| Bezugsfrei ab | nach Vereinbarung |
| Zimmer | 3 |
| Haustiere | Nach Vereinbarung |
| Anzahl Garage/Stellplatz | 1 |
Kosten
| Kaltmiete |
1.495 € |
|---|---|
| Nebenkosten | + 280 € |
| Heizkosten | in Nebenkosten enthalten |
| Gesamtmiete | 1.775 € |
| Kaution o. Genossenschaftsanteile | 2 Kaltmieten |
Weiter mieten oder doch kaufen?
Wer in Miete wohnt, überweist dem Vermieter im Laufe der Jahre hohe Summen, die sich
auch in die eigenen vier Wände investieren lassen könnten.
Bausubstanz & Energieausweis
| Baujahr | unbekannt |
|---|---|
| Objektzustand | Erstbezug |
| Heizungsart | Fußbodenheizung |
| Wesentliche Energieträger | Erdwärme |
| Energieausweis | liegt vor |
| Energieausweistyp | Bedarfsausweis |
| Energieverbrauchskennwert | 26,5 kWh/(m²*a) |
| Energieeffizienzklasse | A+ |
26,5
kWh/(m²*a)
Energieeffizienzklasse A+
- A+
- A
- B
- C
- D
- E
- F
- G
- H
- 0
- 25
- 50
- 75
- 100
- 125
- 150
- 175
- 200
- 225
- >250
Beschreibung des Objekts
Ausstattung
Die helle und großzügige 4-Zimmerwohnung verfügt über eine tolle Ausstattung. Die Wohnräume sowie der Eingangsbereich sind mit einem hochwertigen Parkettboden versehen. Der helle Wohnbereich verfügt über eine große Fensterfront. Der sonnige Balkon/Terrasse lädt zum Verweilen ein.
Der Eingangsbereich der Wohnung ist großzügig gestaltet. Von diesem gehen Wohn- und Schlafzimmer sowie auch das Badezimmer ab.
Die anthrazitfarbenen Boden- und hellen Wandfliesen, der Handtuchheizkörper sowie die modernen Sanitärgegenstände runden das Bild des großzügigen Bades mit einer Dusche ab. Waschmaschine und Trockner finden Platz im Hauswirtschaftsraum.
Für ein besonders angenehmes Raumklima sorgt die vorhandene Fußbodenheizung. Sie verleiht der Wohnung in der kalten Jahreszeit eine angenehme Raumtemperatur.
Die Tiefgarage bietet eine ausreichende Anzahl an Stellplätzen. Hier kann optional ein Stellplatz angemietet werden.
Lage
Im Stuttgarter Großraum ist der Ortsteil Korntal-Münchingen gelegen und grenzt u.a. an den Ortsteilen Stuttgart-Zuffenhausen, Ludwigsburg, Dietzingen und Schwieberdignen an. Stuttgart bietet eine einzigartige Mischung aus Arbeitsmöglichkeiten, Freizeitaktivitäten und kulturellem Reichtum. Von renommierten Automobilherstellern bis hin zu innovativen Start-Ups bietet Stuttgart vielfältige Karrieremöglichkeiten in verschiedenen Branchen.
Abseits der Arbeit locken zahlreiche Freizeitmöglichkeiten. Die grünen Parks und Gärten, wie der Schlossgarten und der Rosensteinpark, laden zum Entspannen und Genießen ein. Aber auch Sportbegeisterte kommen nicht zu kurz. In den umliegenden Wäldern und Hügeln finden sie ideale Bedingungen zum Wandern, Radfahren und Joggen.
Bewohner des Ortsteils Korntal-Münchingen profitieren von einer guten Verkehrsanbindung an Stuttgart und die umliegenden Gemeinden. Die Autobahn A81 sowie die S-Bahn-Linie S6 sorgen für eine schnelle und bequeme Anbindung an das regionale Verkehrsnetz.
Sonstige Angaben
Wir freuen uns auf Sie! Bitte senden Sie uns eine E-Mail-Anfrage zu!
Gern vereinbaren wir einen Besichtigungstermin mit Ihnen.
Weitere interessante Angebote finden Sie unter www.capera-immobilien.de
Weitere Dokumente
ExposéGrundriss
Grundriss
>
>
Adresse
Stuttgarter Str. 44, 70825 Korntal-Münchingen
Interessante Orte
Preis- und Lageinformationen
Preistrend für Bestandsimmobilien in Korntal-Münchingen