Erwerben Sie jetzt Ihr neues Zuhause und zahlen Sie eine Miete, die Ihnen gehört.
Hier fängt Ihr Traum an!
Miet-Kauf möglich.
Altschulden oder Verbindlichkeiten kein Hindernis. (Bonität vorausgesetzt)
Sie möchten erfahren ob Sie Miet-Kauf berechtigt sind?
Unser Miet-Kauf-Experte prüft dies gerne bei einem persönlichen Gespräch.
Jetzt mit Miet | Kauf den Traum vom Eigenheim erfüllen!
61276 Weilrod
Die vollständige Adresse der Immobilie erhalten Sie vom Anbieter.
Auf Karte anzeigen
Die vollständige Adresse der Immobilie erhalten Sie vom Anbieter.
Infos
| Haustyp | Einfamilienhaus |
|---|---|
| Wohnfläche ca. | 139 m2 |
| Nutzfläche | 0 m2 |
| Grundstücksfläche | 379 m2 |
| Zimmer | 4 |
| Schlafzimmer | 3 |
| Badezimmer | 1 |
| Anzahl Garage/Stellplatz | 0 |
Kosten
| Kaltmiete |
1.840 € |
|---|---|
| Nebenkosten | keine Angabe |
| Heizkosten | keine Angabe |
| Gesamtmiete | 1.840 € |
Weiter mieten oder doch kaufen?
Wer in Miete wohnt, überweist dem Vermieter im Laufe der Jahre hohe Summen, die sich
auch in die eigenen vier Wände investieren lassen könnten.
Bausubstanz & Energieausweis
| Baujahr | 2025 |
|---|---|
| Qualität der Austattung | Gehoben |
| Heizungsart | Wärmepumpe |
Beschreibung des Objekts
Ausstattung
Jedes unserer Fertighäuser wird speziell für Sie geplant und ist perfekt auf die Anforderungen und Vorgaben Ihres Bauvorhabens angepasst – Bebauungspläne, eine besondere Grundstückslage und die gewünschten Eigenleistungen werden im Detail geprüft und berücksichtigt.
Jedes technik-fertige White & Black Traumhaus verfügt standardmäßig über:
- Heizungstechnik auf Ihre Wünsche hin konfigurierbar
- Fußbodenheizung mit Kühleffekt im Sommer
- Elektroinstallation fertig hergestellt
- Hochwertige Ausstattung mit Markenfabrikaten
- 3-Scheiben-Wärmeschutzglas
- Rollläden im Standard enthalten, auf Wunsch auch mit Elektroantrieb lieferbar
- Schwimmender Estrich mit Wärmedämmung verlegt
- Sanitär-Rohinstallation enthalten
In Eigenleistung von Ihnen sind folgende Gewerke selbst auszuführen:
Malern
Fliesen
Bodenbeläge
Innentüren
Sanitärobjekte
Diesem Angebot liegt die beliebte White & Black-Ausbaustufe "technik-fertig" zugrunde. Diese kann selbstverständlich noch entsprechend Ihrer geplanten Eigenleistungen angepasst werden.
White & Black ist ein Home Concept der Firmen Schwabenhaus & Danhaus.
Lage
Willkommen in Weilrod, einer charmanten Gemeinde im malerischen Hochtaunuskreis in Hessen. Eingebettet in die sanften Hügel des Taunusgebirges, bietet Weilrod eine idyllische und naturnahe Wohnlage, die sowohl Ruhe als auch eine hohe Lebensqualität verspricht.
Die Gemeinde zeichnet sich durch ihre ländliche Atmosphäre und eine hervorragende Anbindung an die umliegenden Städte aus. In unmittelbarer Nähe befinden sich die Städte Bad Homburg und Usingen, die mit ihren vielfältigen Einkaufsmöglichkeiten, Restaurants und Freizeitangeboten schnell erreichbar sind. Auch die Landeshauptstadt Wiesbaden ist nur eine kurze Autofahrt entfernt.
Weilrod selbst bietet eine gute Infrastruktur mit Schulen, Kindergärten und Sporteinrichtungen, die für Familien besonders attraktiv sind. Die Umgebung lädt zu zahlreichen Freizeitaktivitäten ein, sei es beim Wandern, Radfahren oder einfach beim Genießen der Natur. Die reizvolle Landschaft und die saubere Luft machen Weilrod zu einem idealen Ort für Naturliebhaber und Erholungssuchende.
Die Verkehrsanbindung ist durch die nahegelegenen Bundesstraßen und die Anbindung an den öffentlichen Nahverkehr optimal.
Sonstige Angaben
Vereinbare einen persönlichen Beratungstermin, um über unser Miet-Kauf Modell zu sprechen.
Bitte beachte, dass die dargestellten Bilder und Grundrisse nur beispielhaft sind und unter Umständen Sonderbauteile enthalten, die nicht im angegebenen Preis enthalten sind.
Hab außerdem bitte Verständnis dafür, dass weitere Details zum angebotenen Grundstück erst nach einem persönlichen Gespräch bekanntgegeben werden und nur vollständige Anfragen bearbeitet werden können.
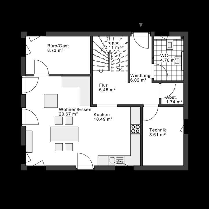
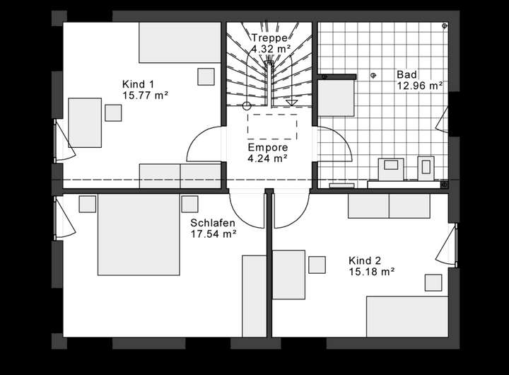
Grundriss
Grundriss EG
>
>
Grundriss OG
>
>
Adresse
61276 Weilrod
Interessante Orte
Preis- und Lageinformationen
Preistrend für Bestandsimmobilien in Weilrod