Erwerben Sie jetzt Ihr neues Zuhause und zahlen Sie eine Miete, die Ihnen gehört.
Hier fängt Ihr Traum an!
Miet-Kauf möglich.
Altschulden oder Verbindlichkeiten kein Hindernis. (Bonität vorausgesetzt)
Sie möchten erfahren ob Sie Miet-Kauf berechtigt sind?
Unser Miet-Kauf-Experte prüft dies gerne bei einem persönlichen Gespräch.
Jetzt mit Miet | Kauf den Traum vom Eigenheim erfüllen!
61250 Usingen
Die vollständige Adresse der Immobilie erhalten Sie vom Anbieter.
Auf Karte anzeigen
Die vollständige Adresse der Immobilie erhalten Sie vom Anbieter.
Infos
| Haustyp | Einfamilienhaus |
|---|---|
| Wohnfläche ca. | 120 m2 |
| Nutzfläche | 0 m2 |
| Grundstücksfläche | 384 m2 |
| Zimmer | 3 |
| Schlafzimmer | 3 |
| Badezimmer | 1 |
| Anzahl Garage/Stellplatz | 0 |
Kosten
| Kaltmiete |
1.790 € |
|---|---|
| Nebenkosten | keine Angabe |
| Heizkosten | keine Angabe |
| Gesamtmiete | 1.790 € |
Weiter mieten oder doch kaufen?
Wer in Miete wohnt, überweist dem Vermieter im Laufe der Jahre hohe Summen, die sich
auch in die eigenen vier Wände investieren lassen könnten.
Bausubstanz & Energieausweis
| Baujahr | 2025 |
|---|---|
| Qualität der Austattung | Gehoben |
| Heizungsart | Wärmepumpe |
Beschreibung des Objekts
Ausstattung
Jedes unserer Fertighäuser wird speziell für Sie geplant und ist perfekt auf die Anforderungen und Vorgaben Ihres Bauvorhabens angepasst – Bebauungspläne, eine besondere Grundstückslage und die gewünschten Eigenleistungen werden im Detail geprüft und berücksichtigt.
Jedes technik-fertige White & Black Traumhaus verfügt standardmäßig über:
- Heizungstechnik auf Ihre Wünsche hin konfigurierbar
- Fußbodenheizung mit Kühleffekt im Sommer
- Elektroinstallation fertig hergestellt
- Hochwertige Ausstattung mit Markenfabrikaten
- 3-Scheiben-Wärmeschutzglas
- Rollläden im Standard enthalten, auf Wunsch auch mit Elektroantrieb lieferbar
- Schwimmender Estrich mit Wärmedämmung verlegt
- Sanitär-Rohinstallation enthalten
In Eigenleistung von Ihnen sind folgende Gewerke selbst auszuführen:
Malern
Fliesen
Bodenbeläge
Innentüren
Sanitärobjekte
Diesem Angebot liegt die beliebte White & Black-Ausbaustufe "technik-fertig" zugrunde. Diese kann selbstverständlich noch entsprechend Ihrer geplanten Eigenleistungen angepasst werden.
White & Black ist ein Home Concept der Firmen Schwabenhaus & Danhaus.
Lage
Willkommen in Usingen, einer charmanten Stadt im Hochtaunuskreis in Hessen, die durch ihre idyllische Lage und hohe Lebensqualität besticht. Eingebettet in die malerische Landschaft des Taunus, bietet Usingen eine perfekte Kombination aus ländlichem Flair und urbaner Annehmlichkeiten.
Die Stadt zeichnet sich durch eine hervorragende Infrastruktur aus. In Usingen finden Sie eine Vielzahl von Einkaufsmöglichkeiten, Restaurants, Cafés und Dienstleistungsangeboten, die den täglichen Bedarf abdecken. Zudem sind Schulen und Kindergärten in der Nähe, was die Stadt besonders attraktiv für Familien macht.
Die Verkehrsanbindung ist optimal: Usingen ist sowohl über die Bundesstraße B456 als auch über die Autobahn A5 gut erreichbar. Der öffentliche Nahverkehr ermöglicht eine schnelle Anbindung an die umliegenden Städte wie Bad Homburg und Frankfurt am Main, die in kurzer Zeit erreicht werden können.
Die Umgebung von Usingen lädt zu vielfältigen Freizeitaktivitäten ein. Ob beim Wandern, Radfahren oder einfach beim Entspannen in der Natur – die reizvolle Landschaft des Taunus bietet zahlreiche Möglichkeiten zur Erholung und sportlichen Betätigung. Zudem finden regelmäßig kulturelle Veranstaltungen und Feste statt, die das Gemeinschaftsleben bereichern.
Insgesamt ist Usingen ein attraktiver Wohnort, der durch seine ruhige Lage, die gute Erreichbarkeit und die vielfältigen Freizeitmöglichkeiten überzeugt. Hier finden Sie ein harmonisches Zuhause in einer lebenswerten Stadt, die Tradition und Moderne gekonnt vereint.
Sonstige Angaben
Vereinbare einen persönlichen Beratungstermin, um über unser Miet-Kauf Modell zu sprechen.
Bitte beachte, dass die dargestellten Bilder und Grundrisse nur beispielhaft sind und unter Umständen Sonderbauteile enthalten, die nicht im angegebenen Preis enthalten sind.
Hab außerdem bitte Verständnis dafür, dass weitere Details zum angebotenen Grundstück erst nach einem persönlichen Gespräch bekanntgegeben werden und nur vollständige Anfragen bearbeitet werden können.
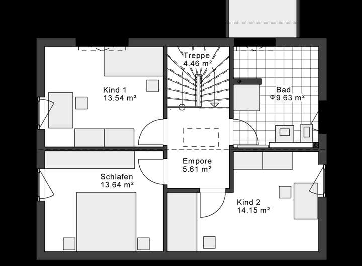
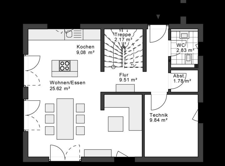
Grundriss
Grundriss EG
>
>
Grundriss OG
>
>
Adresse
61250 Usingen
Interessante Orte
Preis- und Lageinformationen
Preistrend für Bestandsimmobilien in Usingen