Erwerben Sie jetzt Ihr neues Zuhause und zahlen Sie eine Miete, die Ihnen gehört.
Hier fängt Ihr Traum an!
Miet-Kauf möglich.
Altschulden oder Verbindlichkeiten kein Hindernis. (Bonität vorausgesetzt)
Sie möchten erfahren ob Sie Miet-Kauf berechtigt sind?
Unser Miet-Kauf-Experte prüft dies gerne bei einem persönlichen Gespräch.
Jetzt mit Miet | Kauf den Traum vom Eigenheim erfüllen!
35447 Reiskirchen
Die vollständige Adresse der Immobilie erhalten Sie vom Anbieter.
Auf Karte anzeigen
Die vollständige Adresse der Immobilie erhalten Sie vom Anbieter.
Infos
| Haustyp | Einfamilienhaus |
|---|---|
| Wohnfläche ca. | 139 m2 |
| Nutzfläche | 0 m2 |
| Grundstücksfläche | 429 m2 |
| Zimmer | 4 |
| Schlafzimmer | 3 |
| Badezimmer | 1 |
| Anzahl Garage/Stellplatz | 0 |
Kosten
| Kaltmiete |
1.740 € |
|---|---|
| Nebenkosten | keine Angabe |
| Heizkosten | keine Angabe |
| Gesamtmiete | 1.740 € |
Weiter mieten oder doch kaufen?
Wer in Miete wohnt, überweist dem Vermieter im Laufe der Jahre hohe Summen, die sich
auch in die eigenen vier Wände investieren lassen könnten.
Bausubstanz & Energieausweis
| Baujahr | 2025 |
|---|---|
| Qualität der Austattung | Gehoben |
| Heizungsart | Wärmepumpe |
Beschreibung des Objekts
Ausstattung
3 Schlafzimmer
großzügiges Wohn-/Esszimmer mit Zugang zur sonnigen Terrasse
Grüner Garten zur eigenen Nutzung - perfekt für Kinder oder naturnahes Gärtnern
Gute Anbindung an den öffentlichen Nahverkehr, Schulen und Einkaufsmöglichkeiten in der Nähe
Lage
Reiskirchen liegt im Herzen des mittelhessischen Landkreises Gießen und besticht durch seine attraktive Lage in einer landschaftlich reizvollen Umgebung. Die Gemeinde bietet eine angenehme Mischung aus ruhigem Wohnen im Grünen und einer guten Anbindung an die umliegenden Städte. Die Immobilie befindet sich in einer gepflegten Wohngegend, die sowohl Ruhe als auch eine gute Erreichbarkeit gewährleistet. In unmittelbarer Nähe finden Sie Einkaufsmöglichkeiten, Schulen, Kindergärten sowie diverse Freizeit- und Erholungsmöglichkeiten. Die gute Verkehrsanbindung an die Autobahnen A45 und A5 sowie die Nähe zu Gießen machen Reiskirchen zu einem idealen Standort für Familien, Berufstätige und alle, die das ländliche Leben mit einer guten Infrastruktur verbinden möchten.
Sonstige Angaben
Vereinbare einen persönlichen Beratungstermin, um über unser Miet-Kauf Modell zu sprechen.
Bitte beachte, dass die dargestellten Bilder und Grundrisse nur beispielhaft sind und unter Umständen Sonderbauteile enthalten, die nicht im angegebenen Preis enthalten sind.
Hab außerdem bitte Verständnis dafür, dass weitere Details zum angebotenen Grundstück erst nach einem persönlichen Gespräch bekanntgegeben werden und nur vollständige Anfragen bearbeitet werden können.
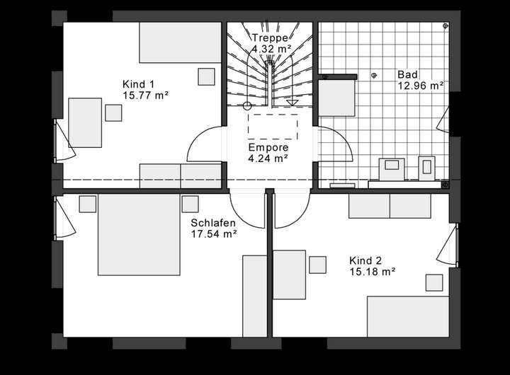
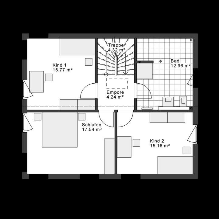
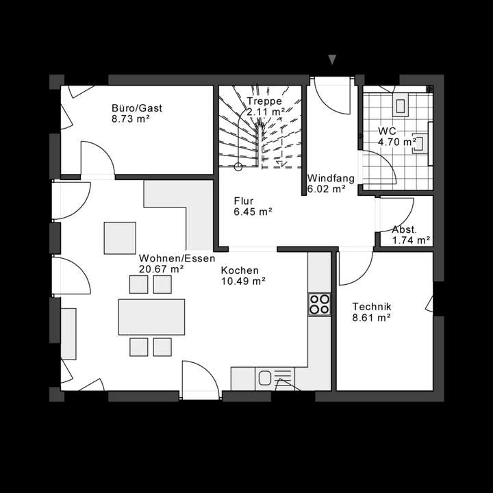
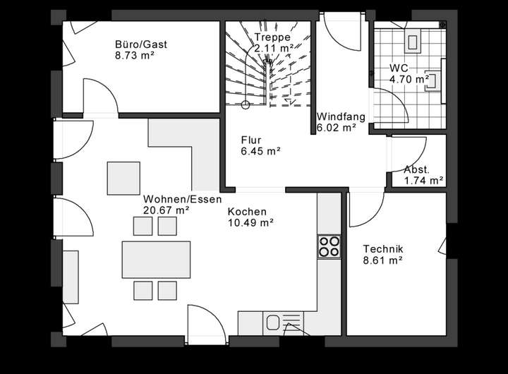
Grundriss
Grundriss EG
>
>
Grundriss OG
>
>
Adresse
35447 Reiskirchen
Interessante Orte
Preis- und Lageinformationen
Preistrend für Bestandsimmobilien in Reiskirchen