Nachhaltig wohnen, sicher ankommen: Ihr Weg ins Eigenheim beginnt hier!
In ruhiger, familienfreundlicher Lage erwartet Sie ein liebevoll gepflegtes Zuhause mit viel Raum für Ihre persönlichen Wünsche.
Ihr Zuhause mit Herz und Verstand - Jetzt im Mietkaufmodell
63571 Gelnhausen
Die vollständige Adresse der Immobilie erhalten Sie vom Anbieter.
Auf Karte anzeigen
Die vollständige Adresse der Immobilie erhalten Sie vom Anbieter.
Infos
| Haustyp | Einfamilienhaus |
|---|---|
| Wohnfläche ca. | 149 m2 |
| Nutzfläche | 0 m2 |
| Grundstücksfläche | 384 m2 |
| Zimmer | 4 |
| Schlafzimmer | 3 |
| Badezimmer | 1 |
| Anzahl Garage/Stellplatz | 0 |
Kosten
| Kaltmiete |
2.460 € |
|---|---|
| Nebenkosten | keine Angabe |
| Heizkosten | keine Angabe |
| Gesamtmiete | 2.460 € |
Weiter mieten oder doch kaufen?
Wer in Miete wohnt, überweist dem Vermieter im Laufe der Jahre hohe Summen, die sich
auch in die eigenen vier Wände investieren lassen könnten.
Bausubstanz & Energieausweis
| Baujahr | 2025 |
|---|---|
| Qualität der Austattung | Gehoben |
| Heizungsart | Wärmepumpe |
Beschreibung des Objekts
Ausstattung
3 Schlafzimmer
großzügiges Wohn-/Esszimmer mit Zugang zur sonnigen Terrasse
Grüner Garten zur eigenen Nutzung - perfekt für Kinder oder naturnahes Gärtnern
Gute Anbindung an den öffentlichen Nahverkehr, Schulen und Einkaufsmöglichkeiten in der Nähe
Lage
Gelnhausen liegt im Herzen des hessischen Main-Kinzig-Kreises und besticht durch seine historische Altstadt sowie seine attraktive Lage zwischen Frankfurt, Hanau und Fulda. Die Stadt vereint das charmante Flair einer mittelalterlichen Stadt mit einer modernen Infrastruktur. Die Immobilie befindet sich in einer ruhigen, gepflegten Wohngegend, die sowohl eine angenehme Wohnqualität als auch eine gute Erreichbarkeit bietet.
In unmittelbarer Nähe finden Sie Einkaufsmöglichkeiten, Schulen, Kindergärten sowie vielfältige Freizeit- und Erholungsmöglichkeiten, beispielsweise im nahegelegenen Stadtpark oder im umliegenden Waldgebiet. Die gute Anbindung an die Autobahnen A66 und A45 sowie die Nähe zu den größeren Städten macht Gelnhausen zu einem idealen Standort für Familien, Berufstätige und alle, die das Leben in einer lebendigen, historischen Stadt mit guter Infrastruktur schätzen.
Sonstige Angaben
Vereinbare einen persönlichen Beratungstermin, um über unser Miet-Kauf Modell zu sprechen.
Bitte beachte, dass die dargestellten Bilder und Grundrisse nur beispielhaft sind und unter Umständen Sonderbauteile enthalten, die nicht im angegebenen Preis enthalten sind.
Hab außerdem bitte Verständnis dafür, dass weitere Details zum angebotenen Grundstück erst nach einem persönlichen Gespräch bekanntgegeben werden und nur vollständige Anfragen bearbeitet werden können.
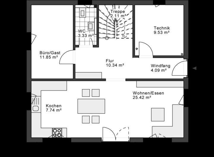
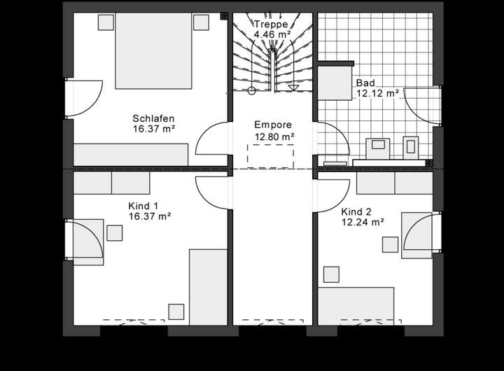
Grundriss
Grundriss EG
>
>
Grundriss OG
>
>
Adresse
63571 Gelnhausen
Interessante Orte
Preis- und Lageinformationen
Preistrend für Bestandsimmobilien in Gelnhausen