Nachhaltig wohnen, sicher ankommen: Ihr Weg ins Eigenheim beginnt hier!
In ruhiger, familienfreundlicher Lage erwartet Sie ein liebevoll gepflegtes Zuhause mit viel Raum für Ihre persönlichen Wünsche.
Ihr Zuhause mit Herz und Verstand - Jetzt im Mietkaufmodell
63128 Dietzenbach
Die vollständige Adresse der Immobilie erhalten Sie vom Anbieter.
Auf Karte anzeigen
Die vollständige Adresse der Immobilie erhalten Sie vom Anbieter.
Infos
| Haustyp | Einfamilienhaus |
|---|---|
| Wohnfläche ca. | 139 m2 |
| Nutzfläche | 0 m2 |
| Grundstücksfläche | 369 m2 |
| Zimmer | 4 |
| Schlafzimmer | 3 |
| Badezimmer | 1 |
| Anzahl Garage/Stellplatz | 0 |
Kosten
| Kaltmiete |
2.490 € |
|---|---|
| Nebenkosten | keine Angabe |
| Heizkosten | keine Angabe |
| Gesamtmiete | 2.490 € |
Weiter mieten oder doch kaufen?
Wer in Miete wohnt, überweist dem Vermieter im Laufe der Jahre hohe Summen, die sich
auch in die eigenen vier Wände investieren lassen könnten.
Bausubstanz & Energieausweis
| Baujahr | 2025 |
|---|---|
| Qualität der Austattung | Gehoben |
| Heizungsart | Wärmepumpe |
Beschreibung des Objekts
Ausstattung
3 Schlafzimmer
großzügiges Wohn-/Esszimmer mit Zugang zur sonnigen Terrasse
Grüner Garten zur eigenen Nutzung - perfekt für Kinder oder naturnahes Gärtnern
Gute Anbindung an den öffentlichen Nahverkehr, Schulen und Einkaufsmöglichkeiten in der Nähe
Lage
Dietzenbach ist eine lebendige und familienfreundliche Stadt im Landkreis Offenbach in Hessen, die durch ihre zentrale Lage und vielfältigen Freizeit- und Erholungsmöglichkeiten besticht. Die Immobilie befindet sich in einer ruhigen, gepflegten Wohngegend, die sowohl eine angenehme Nachbarschaft als auch eine gute Infrastruktur bietet.
Die Lage zeichnet sich durch eine hervorragende Anbindung an die umliegenden Städte aus: Die Autobahnen A3 und A661 sind schnell erreichbar, sodass Frankfurt am Main, Offenbach und Mühlheim in kurzer Zeit erreichbar sind. Auch die öffentlichen Verkehrsmittel sind gut ausgebaut, mit Buslinien und S-Bahn-Verbindungen, die eine bequeme Mobilität in der Region ermöglichen.
In der näheren Umgebung finden Sie alle Einrichtungen des täglichen Bedarfs, wie Supermärkte, Bäckereien, Apotheken sowie Schulen, Kindergärten und vielfältige Freizeitangebote. Die zahlreichen Grünflächen, Parks und Naherholungsgebiete laden zu Spaziergängen, Radfahren und Erholung im Grünen ein.
Sonstige Angaben
Vereinbare einen persönlichen Beratungstermin, um über unser Miet-Kauf Modell zu sprechen.
Bitte beachte, dass die dargestellten Bilder und Grundrisse nur beispielhaft sind und unter Umständen Sonderbauteile enthalten, die nicht im angegebenen Preis enthalten sind.
Hab außerdem bitte Verständnis dafür, dass weitere Details zum angebotenen Grundstück erst nach einem persönlichen Gespräch bekanntgegeben werden und nur vollständige Anfragen bearbeitet werden können.
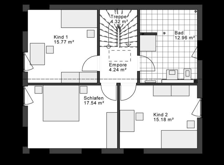
Grundriss
Grundriss EG
>
>
Grundriss OG
>
>
Adresse
63128 Dietzenbach
Interessante Orte
Preis- und Lageinformationen
Preistrend für Bestandsimmobilien in Dietzenbach