Erwerben Sie jetzt Ihr neues Zuhause und zahlen Sie eine Miete, die Ihnen gehört.
Hier fängt Ihr Traum an!
Miet-Kauf möglich.
Altschulden oder Verbindlichkeiten kein Hindernis. (Bonität vorausgesetzt)
Sie möchten erfahren ob Sie Miet-Kauf berechtigt sind?
Unser Miet-Kauf-Experte prüft dies gerne bei einem persönlichen Gespräch.
Jetzt mit Miet | Kauf den Traum vom Eigenheim erfüllen!
35428 Langgöns
Die vollständige Adresse der Immobilie erhalten Sie vom Anbieter.
Auf Karte anzeigen
Die vollständige Adresse der Immobilie erhalten Sie vom Anbieter.
Infos
| Haustyp | Einfamilienhaus |
|---|---|
| Wohnfläche ca. | 120 m2 |
| Nutzfläche | 0 m2 |
| Grundstücksfläche | 411 m2 |
| Zimmer | 3 |
| Schlafzimmer | 3 |
| Badezimmer | 1 |
| Anzahl Garage/Stellplatz | 0 |
Kosten
| Kaltmiete |
1.790 € |
|---|---|
| Nebenkosten | keine Angabe |
| Heizkosten | keine Angabe |
| Gesamtmiete | 1.790 € |
Weiter mieten oder doch kaufen?
Wer in Miete wohnt, überweist dem Vermieter im Laufe der Jahre hohe Summen, die sich
auch in die eigenen vier Wände investieren lassen könnten.
Bausubstanz & Energieausweis
| Baujahr | 2025 |
|---|---|
| Qualität der Austattung | Gehoben |
| Heizungsart | Wärmepumpe |
Beschreibung des Objekts
Ausstattung
3 Schlafzimmer
großzügiges Wohn-/Esszimmer mit Zugang zur sonnigen Terrasse
Grüner Garten zur eigenen Nutzung - perfekt für Kinder oder naturnahes Gärtnern
Gute Anbindung an den öffentlichen Nahverkehr, Schulen und Einkaufsmöglichkeiten in der Nähe
Lage
Die Immobilie befindet sich in der charmanten Gemeinde Langgöns, im Landkreis Gießen, in einer ruhigen und familienfreundlichen Wohngegend. Die Lage bietet eine angenehme Mischung aus ländlicher Idylle und guter Anbindung an die umliegenden Städte.
In der näheren Umgebung finden Sie Einkaufsmöglichkeiten, Supermärkte, Schulen und Kindergärten, die den Alltag bequem und unkompliziert machen. Für Freizeit und Erholung sorgen die zahlreichen Grünflächen, Wälder und Wanderwege in der Umgebung, die zu Spaziergängen, Radfahren und Naturerkundungen einladen.
Die Verkehrsanbindung ist sehr gut: Die Autobahnen A45 und A5 sind in kurzer Fahrzeit erreichbar, was die Mobilität nach Gießen, Frankfurt, Marburg und anderen Städten erleichtert. Auch die öffentlichen Verkehrsmittel, wie Buslinien, verbinden Langgöns mit den umliegenden Gemeinden und Städten.
Sonstige Angaben
Vereinbare einen persönlichen Beratungstermin, um über unser Miet-Kauf Modell zu sprechen.
Bitte beachte, dass die dargestellten Bilder und Grundrisse nur beispielhaft sind und unter Umständen Sonderbauteile enthalten, die nicht im angegebenen Preis enthalten sind.
Hab außerdem bitte Verständnis dafür, dass weitere Details zum angebotenen Grundstück erst nach einem persönlichen Gespräch bekanntgegeben werden und nur vollständige Anfragen bearbeitet werden können.
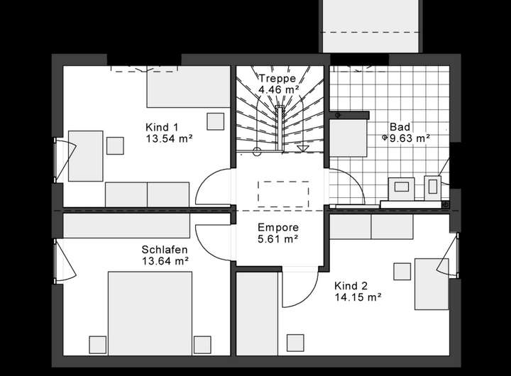
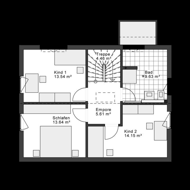
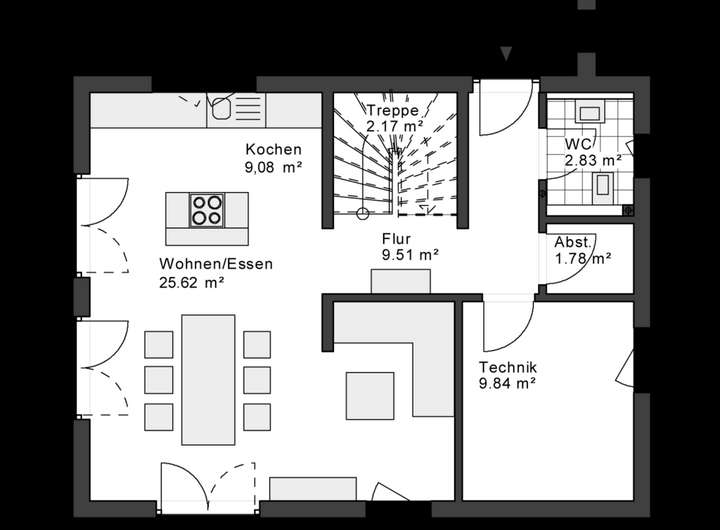
Grundriss
Grundriss EG
>
>
Grundriss OG
>
>
Adresse
35428 Langgöns
Interessante Orte
Preis- und Lageinformationen
Preistrend für Bestandsimmobilien in Langgöns