Nachhaltig wohnen, sicher ankommen: Ihr Weg ins Eigenheim beginnt hier!
In ruhiger, familienfreundlicher Lage erwartet Sie ein liebevoll gepflegtes Zuhause mit viel Raum für Ihre persönlichen Wünsche.
Ihr Zuhause mit Herz und Verstand - Jetzt im Mietkaufmodell
63755 Alzenau
Die vollständige Adresse der Immobilie erhalten Sie vom Anbieter.
Auf Karte anzeigen
Die vollständige Adresse der Immobilie erhalten Sie vom Anbieter.
Infos
| Haustyp | Einfamilienhaus |
|---|---|
| Wohnfläche ca. | 120 m2 |
| Nutzfläche | 0 m2 |
| Grundstücksfläche | 425 m2 |
| Zimmer | 3 |
| Schlafzimmer | 3 |
| Badezimmer | 1 |
| Anzahl Garage/Stellplatz | 0 |
Kosten
| Kaltmiete |
1.440 € |
|---|---|
| Nebenkosten | keine Angabe |
| Heizkosten | keine Angabe |
| Gesamtmiete | 1.440 € |
Weiter mieten oder doch kaufen?
Wer in Miete wohnt, überweist dem Vermieter im Laufe der Jahre hohe Summen, die sich
auch in die eigenen vier Wände investieren lassen könnten.
Bausubstanz & Energieausweis
| Baujahr | 2025 |
|---|---|
| Qualität der Austattung | Gehoben |
| Heizungsart | Wärmepumpe |
Beschreibung des Objekts
Ausstattung
3 Schlafzimmer
großzügiges Wohn-/Esszimmer mit Zugang zur sonnigen Terrasse
Grüner Garten zur eigenen Nutzung - perfekt für Kinder oder naturnahes Gärtnern
Gute Anbindung an den öffentlichen Nahverkehr, Schulen und Einkaufsmöglichkeiten in der Nähe
Lage
Michelbach liegt im Landkreis Aschaffenburg in Bayern und besticht durch seine ruhige und familienfreundliche Lage. Die Gemeinde bietet eine angenehme Mischung aus ländlicher Idylle und guter Erreichbarkeit zu den umliegenden Städten.
In Michelbach finden Sie alle wichtigen Einrichtungen für den täglichen Bedarf, wie Supermärkte, Bäckereien, Apotheken sowie Schulen, Kindergärten und vielfältige Freizeitangebote. Die zentrale Lage ermöglicht eine schnelle Anbindung an die Städte Aschaffenburg, Alzenau und Hanau, sowohl über die Autobahnen A45 und A3 als auch mit öffentlichen Verkehrsmitteln.
Die Umgebung ist geprägt von grünen Wiesen, Wäldern und Naherholungsgebieten, die zu Spaziergängen, Wanderungen und Radtouren einladen. Hier können Sie die Natur genießen und gleichzeitig die Vorzüge einer lebendigen Gemeinschaft erleben.
Sonstige Angaben
Vereinbare einen persönlichen Beratungstermin, um über unser Miet-Kauf Modell zu sprechen.
Bitte beachte, dass die dargestellten Bilder und Grundrisse nur beispielhaft sind und unter Umständen Sonderbauteile enthalten, die nicht im angegebenen Preis enthalten sind.
Hab außerdem bitte Verständnis dafür, dass weitere Details zum angebotenen Grundstück erst nach einem persönlichen Gespräch bekanntgegeben werden und nur vollständige Anfragen bearbeitet werden können.
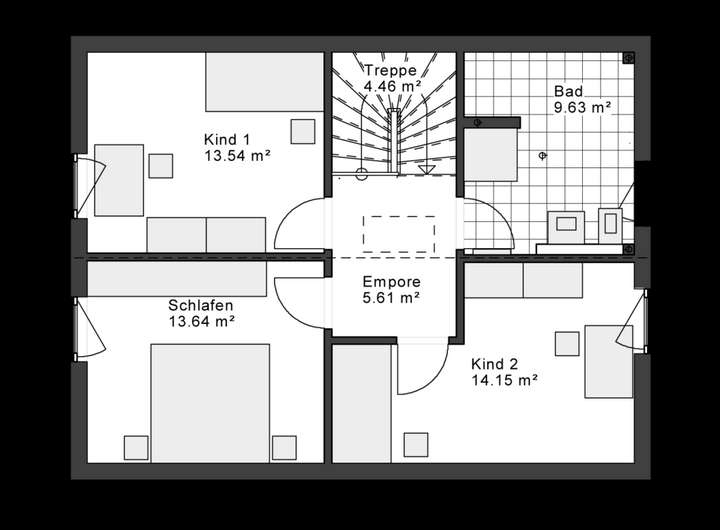
Grundriss
Grundriss EG
>
>
Grundriss OG
>
>
Adresse
63755 Alzenau
Interessante Orte
Preis- und Lageinformationen
Preistrend für Bestandsimmobilien in Alzenau