Nachhaltig wohnen, sicher ankommen: Ihr Weg ins Eigenheim beginnt hier!
In ruhiger, familienfreundlicher Lage erwartet Sie ein liebevoll gepflegtes Zuhause mit viel Raum für Ihre persönlichen Wünsche.
Ihr Zuhause mit Herz und Verstand - Jetzt im Mietkaufmodell
35423 Lich
Die vollständige Adresse der Immobilie erhalten Sie vom Anbieter.
Auf Karte anzeigen
Die vollständige Adresse der Immobilie erhalten Sie vom Anbieter.
Infos
| Haustyp | Einfamilienhaus |
|---|---|
| Wohnfläche ca. | 119 m2 |
| Nutzfläche | 0 m2 |
| Grundstücksfläche | 589 m2 |
| Zimmer | 3 |
| Schlafzimmer | 3 |
| Badezimmer | 1 |
| Anzahl Garage/Stellplatz | 0 |
Kosten
| Kaltmiete |
1.690 € |
|---|---|
| Nebenkosten | keine Angabe |
| Heizkosten | keine Angabe |
| Gesamtmiete | 1.690 € |
Weiter mieten oder doch kaufen?
Wer in Miete wohnt, überweist dem Vermieter im Laufe der Jahre hohe Summen, die sich
auch in die eigenen vier Wände investieren lassen könnten.
Bausubstanz & Energieausweis
| Baujahr | 2025 |
|---|---|
| Qualität der Austattung | Gehoben |
| Heizungsart | Wärmepumpe |
Beschreibung des Objekts
Ausstattung
3 Schlafzimmer
großzügiges Wohn-/Esszimmer mit Zugang zur sonnigen Terrasse
Grüner Garten zur eigenen Nutzung - perfekt für Kinder oder naturnahes Gärtnern
Gute Anbindung an den öffentlichen Nahverkehr, Schulen und Einkaufsmöglichkeiten in der Nähe
Lage
Die Immobilie befindet sich in der idyllischen Mittelhessischen Stadt Lich, im Landkreis Gießen. Die Lage bietet eine harmonische Verbindung aus ruhigem Wohnumfeld, grüner Umgebung und verkehrsgünstiger Anbindung. Einkaufsmöglichkeiten, Schulen und Freizeitangebote sind in unmittelbarer Nähe vorhanden und gut erreichbar.
I
Verkehrsanbindung: Gute Anbindung an die B49, ca. 15–20 Minuten Fahrzeit zur Autobahn A5/A45. Öffentliche Verkehrsmittel (Buslinien) verbinden die Innenstadt mit umliegenden Ortsteilen.
Einkaufsmöglichkeiten: Supermärkte, Bäcker, Apotheken und Einzelhandel sind fußläufig oder in wenigen Fahrminuten erreichbar.
Grundschule, weiterführende Schulen und Kindertagesstätten befinden sich in der Nähe, ebenso Senioren- und Freizeiteinrichtungen.
Die zentrale Lage ermöglicht schnelle Wege in grüne Oasen. Wälder, Felder und Parks laden zu Spaziergängen, Joggen oder Radtouren ein. Der nahegelegene Lichersee bietet zusätzliche Erholungsfläche und Freizeitmöglichkeiten.
Die Umgebung zeichnet sich durch eine ruhige Wohnlage mit sicherem Fuß- und Radwegenetz aus. Lokale Veranstaltungen, kulturelle Angebote und ein aktives Miteinander der Nachbarschaft tragen zu einer hohen Lebensqualität bei.
Sonstige Angaben
Vereinbare einen persönlichen Beratungstermin, um über unser Miet-Kauf Modell zu sprechen.
Bitte beachte, dass die dargestellten Bilder und Grundrisse nur beispielhaft sind und unter Umständen Sonderbauteile enthalten, die nicht im angegebenen Preis enthalten sind.
Hab außerdem bitte Verständnis dafür, dass weitere Details zum angebotenen Grundstück erst nach einem persönlichen Gespräch bekanntgegeben werden und nur vollständige Anfragen bearbeitet werden können.
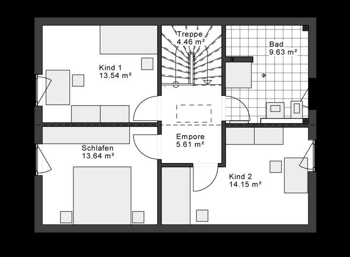
Grundriss
Grundriss EG
>
>
Grundriss OG
>
>
Adresse
35423 Lich
Interessante Orte
Preis- und Lageinformationen
Preistrend für Bestandsimmobilien in Lich