Nachhaltig wohnen, sicher ankommen: Ihr Weg ins Eigenheim beginnt hier!
In ruhiger, familienfreundlicher Lage erwartet Sie ein liebevoll gepflegtes Zuhause mit viel Raum für Ihre persönlichen Wünsche.
Ihr Zuhause mit Herz und Verstand - Jetzt im Mietkaufmodell
35625 Hüttenberg
Die vollständige Adresse der Immobilie erhalten Sie vom Anbieter.
Auf Karte anzeigen
Die vollständige Adresse der Immobilie erhalten Sie vom Anbieter.
Infos
| Haustyp | Einfamilienhaus |
|---|---|
| Wohnfläche ca. | 139 m2 |
| Nutzfläche | 0 m2 |
| Grundstücksfläche | 609 m2 |
| Zimmer | 4 |
| Schlafzimmer | 3 |
| Badezimmer | 1 |
| Anzahl Garage/Stellplatz | 0 |
Kosten
| Kaltmiete |
1.885 € |
|---|---|
| Nebenkosten | keine Angabe |
| Heizkosten | keine Angabe |
| Gesamtmiete | 1.885 € |
Weiter mieten oder doch kaufen?
Wer in Miete wohnt, überweist dem Vermieter im Laufe der Jahre hohe Summen, die sich
auch in die eigenen vier Wände investieren lassen könnten.
Bausubstanz & Energieausweis
| Baujahr | 2025 |
|---|---|
| Qualität der Austattung | Gehoben |
| Heizungsart | Wärmepumpe |
Beschreibung des Objekts
Ausstattung
3 Schlafzimmer
großzügiges Wohn-/Esszimmer mit Zugang zur sonnigen Terrasse
Grüner Garten zur eigenen Nutzung - perfekt für Kinder oder naturnahes Gärtnern
Gute Anbindung an den öffentlichen Nahverkehr, Schulen und Einkaufsmöglichkeiten in der Nähe
Lage
Die Immobilie befindet sich in einer ruhigen, familienfreundlichen Lage von Hüttenberg, einer attraktiven Gemeinde im mittelhessischen Luldauer Raum. Der Ortsteil, in dem sich das Objekt befindet, überzeugt durch eine angenehme Mischung aus ländlicher Ruhe und guter Infrastruktur.
Einkaufsmöglichkeiten, Apotheke, Post und weitere Nahversorgungsangebote sind im Ortsteil bzw. in den benachbarten Orten schnell erreichbar.
Vielfältige Freizeitmöglichkeiten in direkter Nähe: Grünflächen, Spielplätze und vereinseigene Sportanlagen laden zum täglichen Austoben und Entspannen ein.
Busverbindungen in umliegende Orte wie Hüttenberg-Medenbach, Sinn (Gießen/Bad Emstal) und Anschluss an größere Verkehrsachsen. Die Anbindung erleichtert Pendeln innerhalb der Region.
Die nächste größere Autobahn- bzw. Bundesstraße ist gut erreichbar, was Pendeln nach Marburg, Gießen oder Wetzlar erleichtert.
Ruhige Wohnstraßen mit überwiegend gepflegten Einfamilienhäusern und attraktiven Vorgärten schaffen eine angenehme, familienfreundliche Atmosphäre.
Die Nähe zu Grünflächen und Wäldern ermöglicht kleine Spaziergänge oder Radtouren direkt vom Zuhause aus.
Schulen, Kindertagesstätten sowie medizinische Einrichtungen befinden sich im Umfeld und sind zeitnah erreichbar.
Verkehrsanbindung:
Zentrale Lage innerhalb der Gemeinde ermöglicht eine gute Erreichbarkeit mit dem Pkw sowie öffentlichen Verkehrsmitteln. Die Nähe zu größeren Zentren wie Gießen oder Marburg ist vorteilhaft und macht Pendeln attraktiv.
Sonstige Angaben
Vereinbare einen persönlichen Beratungstermin, um über unser Miet-Kauf Modell zu sprechen.
Bitte beachte, dass die dargestellten Bilder und Grundrisse nur beispielhaft sind und unter Umständen Sonderbauteile enthalten, die nicht im angegebenen Preis enthalten sind.
Hab außerdem bitte Verständnis dafür, dass weitere Details zum angebotenen Grundstück erst nach einem persönlichen Gespräch bekanntgegeben werden und nur vollständige Anfragen bearbeitet werden können.
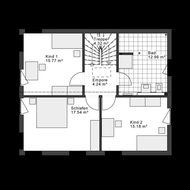
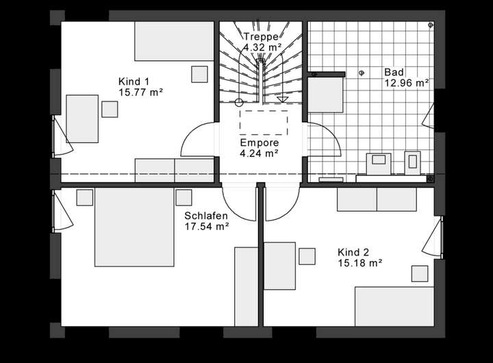
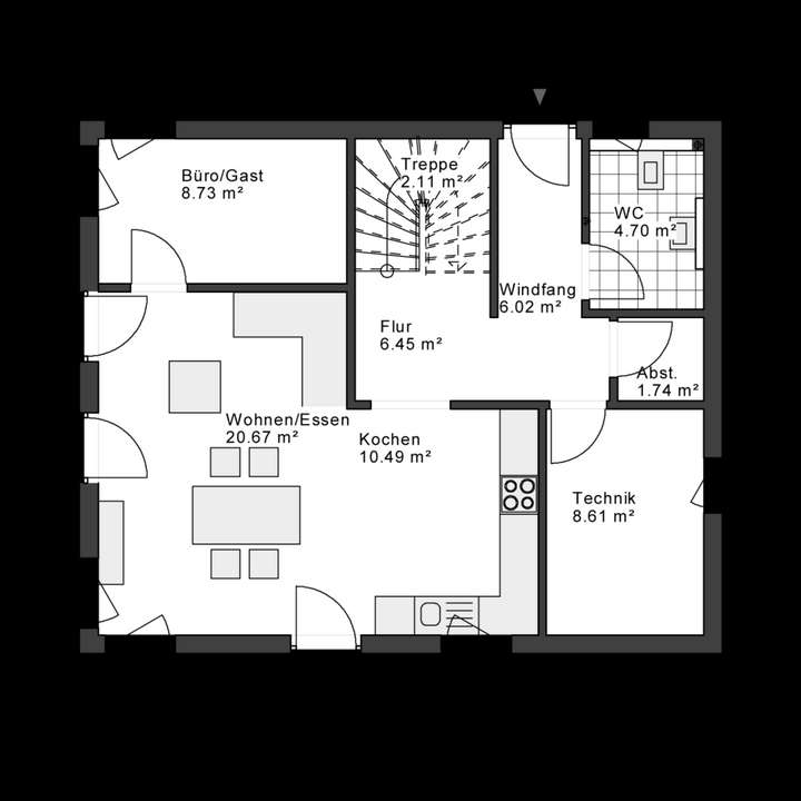
Grundriss
Grundriss EG
>
>
Grundriss OG
>
>
Adresse
35625 Hüttenberg
Interessante Orte
Preis- und Lageinformationen
Preistrend für Bestandsimmobilien in Hüttenberg