Nachhaltig wohnen, sicher ankommen: Ihr Weg ins Eigenheim beginnt hier!
In ruhiger, familienfreundlicher Lage erwartet Sie ein liebevoll gepflegtes Zuhause mit viel Raum für Ihre persönlichen Wünsche.
Ihr Zuhause mit Herz und Verstand - Jetzt im Mietkaufmodell
35633 Lahnau
Die vollständige Adresse der Immobilie erhalten Sie vom Anbieter.
Auf Karte anzeigen
Die vollständige Adresse der Immobilie erhalten Sie vom Anbieter.
Infos
| Haustyp | Einfamilienhaus |
|---|---|
| Wohnfläche ca. | 139 m2 |
| Nutzfläche | 0 m2 |
| Grundstücksfläche | 520 m2 |
| Zimmer | 4 |
| Schlafzimmer | 3 |
| Badezimmer | 1 |
| Anzahl Garage/Stellplatz | 0 |
Kosten
| Kaltmiete |
1.950 € |
|---|---|
| Nebenkosten | keine Angabe |
| Heizkosten | keine Angabe |
| Gesamtmiete | 1.950 € |
Weiter mieten oder doch kaufen?
Wer in Miete wohnt, überweist dem Vermieter im Laufe der Jahre hohe Summen, die sich
auch in die eigenen vier Wände investieren lassen könnten.
Bausubstanz & Energieausweis
| Baujahr | 2025 |
|---|---|
| Qualität der Austattung | Gehoben |
| Heizungsart | Wärmepumpe |
Beschreibung des Objekts
Ausstattung
3 Schlafzimmer
großzügiges Wohn-/Esszimmer mit Zugang zur sonnigen Terrasse
Grüner Garten zur eigenen Nutzung - perfekt für Kinder oder naturnahes Gärtnern
Gute Anbindung an den öffentlichen Nahverkehr, Schulen und Einkaufsmöglichkeiten in der Nähe
Lage
Die Immobilie befindet sich in der attraktiven Gemeinde Lahnau, die in unmittelbarer Nähe zur Stadt Wetzlar im schönen Hessen liegt. Lahnau besticht durch ihre naturnahe Lage, eine ruhige Wohnatmosphäre und eine hervorragende Anbindung an die umliegenden Städte.
Lahnau ist verkehrstechnisch gut erschlossen. Die Bundesstraße B277 und die Autobahn A45 sind in wenigen Minuten erreichbar, was eine schnelle Verbindung zu den Städten Frankfurt, Gießen und Wetzlar ermöglicht. Der örtliche Bahnhof bietet zudem gute Zugverbindungen, die das Pendeln erleichtern.
Die Gemeinde bietet eine solide Grundversorgung mit Einkaufsmöglichkeiten, darunter Supermärkte, Bäckereien und diverse Fachgeschäfte. Schulen und Kindergärten befinden sich in der Nähe und garantieren eine gute Betreuung für Familien mit Kindern. Zudem stehen zahlreiche Dienstleistungen, wie Ärzte und Apotheken, zur Verfügung.
Lahnau ist von einer malerischen Landschaft umgeben, die zu Outdoor-Aktivitäten einlädt. Viele Wander- und Radwege bieten die Möglichkeit, die Natur zu erkunden und sich sportlich zu betätigen. Verschiedene Sporteinrichtungen und Freizeitangebote in der Umgebung stärken die Gemeinschaft und fördern aktive Lebensstile.
Die Gemeinde Lahnau hält auch kulturelle Veranstaltungen und Feste bereit, die das Gemeinschaftsgefühl stärken. Die Nähe zu Wetzlar ermöglicht zudem den Zugriff auf eine Vielzahl an kulturellen Angeboten, wie Museen, Theateraufführungen und Konzerte.
Sonstige Angaben
Vereinbare einen persönlichen Beratungstermin, um über unser Miet-Kauf Modell zu sprechen.
Bitte beachte, dass die dargestellten Bilder und Grundrisse nur beispielhaft sind und unter Umständen Sonderbauteile enthalten, die nicht im angegebenen Preis enthalten sind.
Hab außerdem bitte Verständnis dafür, dass weitere Details zum angebotenen Grundstück erst nach einem persönlichen Gespräch bekanntgegeben werden und nur vollständige Anfragen bearbeitet werden können.
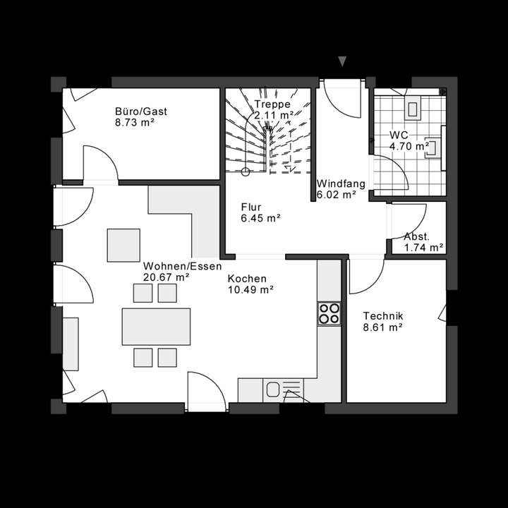
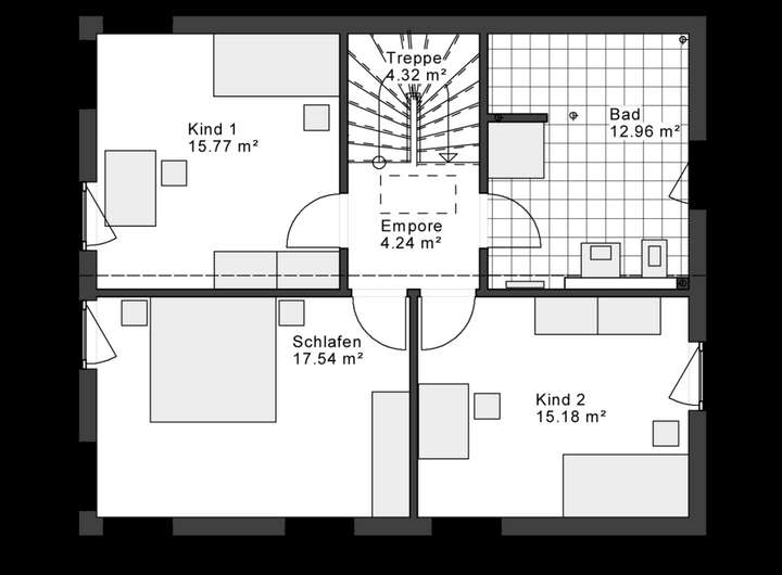
Grundriss
Grundriss EG
>
>
Grundriss OG
>
>
Adresse
35633 Lahnau
Interessante Orte
Preis- und Lageinformationen
Preistrend für Bestandsimmobilien in Lahnau