Nachhaltig wohnen, sicher ankommen: Ihr Weg ins Eigenheim beginnt hier!
In ruhiger, familienfreundlicher Lage erwartet Sie ein liebevoll gepflegtes Zuhause mit viel Raum für Ihre persönlichen Wünsche.
Ihr Zuhause mit Herz und Verstand - Jetzt im Mietkaufmodell
35759 Driedorf
Die vollständige Adresse der Immobilie erhalten Sie vom Anbieter.
Auf Karte anzeigen
Die vollständige Adresse der Immobilie erhalten Sie vom Anbieter.
Infos
| Haustyp | Einfamilienhaus |
|---|---|
| Wohnfläche ca. | 139 m2 |
| Nutzfläche | 0 m2 |
| Grundstücksfläche | 565 m2 |
| Zimmer | 4 |
| Schlafzimmer | 3 |
| Badezimmer | 1 |
| Anzahl Garage/Stellplatz | 0 |
Kosten
| Kaltmiete |
1.490 € |
|---|---|
| Nebenkosten | keine Angabe |
| Heizkosten | keine Angabe |
| Gesamtmiete | 1.490 € |
Weiter mieten oder doch kaufen?
Wer in Miete wohnt, überweist dem Vermieter im Laufe der Jahre hohe Summen, die sich
auch in die eigenen vier Wände investieren lassen könnten.
Bausubstanz & Energieausweis
| Baujahr | 2025 |
|---|---|
| Qualität der Austattung | Gehoben |
| Heizungsart | Wärmepumpe |
Beschreibung des Objekts
Ausstattung
3 Schlafzimmer
großzügiges Wohn-/Esszimmer mit Zugang zur sonnigen Terrasse
Grüner Garten zur eigenen Nutzung - perfekt für Kinder oder naturnahes Gärtnern
Gute Anbindung an den öffentlichen Nahverkehr, Schulen und Einkaufsmöglichkeiten in der Nähe
Lage
Die angebotene Immobilie befindet sich in der reizvollen Gemeinde Driedorf, die im Landkreis Lahn-Dill-Kreis in Hessen liegt. Driedorf zeichnet sich durch seine natürliche Umgebung, eine ruhige Wohnatmosphäre und eine hohe Lebensqualität aus, ideal für Naturliebhaber und Familien.
Driedorf ist verkehrsgünstig gelegen und bietet eine gute Anbindung an die umliegenden Städte. Die Bundesstraße B277, die in der Nähe vorbeiführt, ermöglicht eine schnelle Verbindung zu den Autobahnen A45 und A48, sodass Sie bequem in die Nachbarstädte wie Herborn, Dillenburg oder Wetzlar gelangen. Örtliche Busverbindungen gewährleisten zudem eine zuverlässige Erreichbarkeit des öffentlichen Nahverkehrs.
Die Gemeinde bietet eine solide Grundversorgung mit kleinen Lebensmittelgeschäften, Bäckereien und weiteren Dienstleistungen, die den täglichen Bedarf abdecken. Größere Einkaufsmöglichkeiten finden sich in den nahegelegenen Städten. Driedorf verfügt über Schulen und Kindergärten, was die Ansiedlung von Familien besonders attraktiv macht.
Die naturnahe Lage Driedorfs bietet eine Vielzahl von Freizeitmöglichkeiten. Zahlreiche Wander- und Radwege laden dazu ein, die malerische Umgebung zu erkunden. Die ruhige Atmosphäre und das umliegende Grün fördern Erholung und Entspannung. Lokale Sportvereine und Freizeitaktivitäten ermöglichen eine aktive Freizeitgestaltung und stärken das Gemeinschaftsgefühl in der Gemeinde.
Sonstige Angaben
Vereinbare einen persönlichen Beratungstermin, um über unser Miet-Kauf Modell zu sprechen.
Bitte beachte, dass die dargestellten Bilder und Grundrisse nur beispielhaft sind und unter Umständen Sonderbauteile enthalten, die nicht im angegebenen Preis enthalten sind.
Hab außerdem bitte Verständnis dafür, dass weitere Details zum angebotenen Grundstück erst nach einem persönlichen Gespräch bekanntgegeben werden und nur vollständige Anfragen bearbeitet werden können.
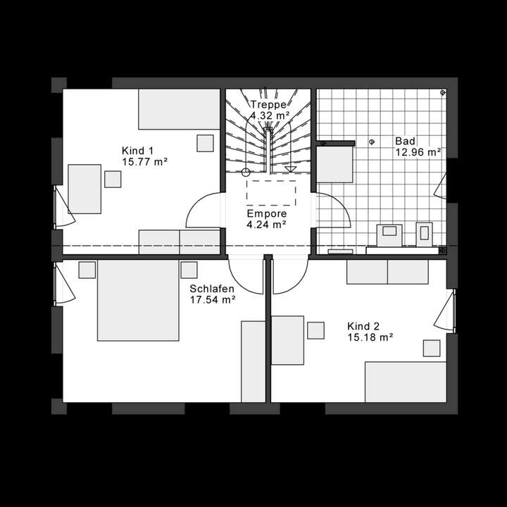
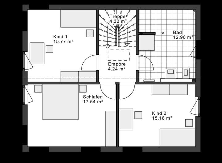
Grundriss
Grundriss EG
>
>
Grundriss OG
>
>
Adresse
35759 Driedorf
Interessante Orte
Preis- und Lageinformationen
Preistrend für Bestandsimmobilien in Driedorf