Nachhaltig wohnen, sicher ankommen: Ihr Weg ins Eigenheim beginnt hier!
In ruhiger, familienfreundlicher Lage erwartet Sie ein liebevoll gepflegtes Zuhause mit viel Raum für Ihre persönlichen Wünsche.
Ihr Zuhause mit Herz und Verstand - Jetzt im Mietkaufmodell
56477 Rennerod
Die vollständige Adresse der Immobilie erhalten Sie vom Anbieter.
Auf Karte anzeigen
Die vollständige Adresse der Immobilie erhalten Sie vom Anbieter.
Infos
| Haustyp | Einfamilienhaus |
|---|---|
| Wohnfläche ca. | 119 m2 |
| Nutzfläche | 0 m2 |
| Grundstücksfläche | 491 m2 |
| Zimmer | 3 |
| Schlafzimmer | 3 |
| Badezimmer | 1 |
| Anzahl Garage/Stellplatz | 0 |
Kosten
| Kaltmiete |
1.395 € |
|---|---|
| Nebenkosten | keine Angabe |
| Heizkosten | keine Angabe |
| Gesamtmiete | 1.395 € |
Weiter mieten oder doch kaufen?
Wer in Miete wohnt, überweist dem Vermieter im Laufe der Jahre hohe Summen, die sich
auch in die eigenen vier Wände investieren lassen könnten.
Bausubstanz & Energieausweis
| Baujahr | 2025 |
|---|---|
| Qualität der Austattung | Gehoben |
| Heizungsart | Wärmepumpe |
Beschreibung des Objekts
Ausstattung
3 Schlafzimmer
großzügiges Wohn-/Esszimmer mit Zugang zur sonnigen Terrasse
Grüner Garten zur eigenen Nutzung - perfekt für Kinder oder naturnahes Gärtnern
Gute Anbindung an den öffentlichen Nahverkehr, Schulen und Einkaufsmöglichkeiten in der Nähe
Lage
Die angebotene Immobilie befindet sich in der idyllischen Gemeinde Rennerod im Westerwaldkreis in Rheinland-Pfalz. Rennerod besticht durch seine naturnahe Lage und eine ruhige, familienfreundliche Atmosphäre, ideal für alle, die Erholung und Entspannung suchen.
Rennerod ist verkehrstechnisch gut angebunden. Die Nähe zur Autobahn A45 ermöglicht eine schnelle Erreichbarkeit der umliegenden Städte wie Siegen und Wetzlar. Darüber hinaus gibt es eine regelmäßige Anbindung an den öffentlichen Nahverkehr, der die Anreise in benachbarte Gemeinden ermöglicht.
Die Gemeinde bietet eine solide Grundversorgung mit Lebensmittelläden, Bäckereien und anderen Geschäften, die den täglichen Bedarf abdecken. Für umfassendere Einkäufe stehen die Städte in der Umgebung zur Verfügung. Rennerod verfügt über Schulen, Kindergärten und medizinische Einrichtungen, was die Ansiedlung von Familien besonders attraktiv macht.
Rennerod liegt inmitten des schönen Westerwaldes und bietet zahlreiche Möglichkeiten für Outdoor-Aktivitäten. Wander- und Radwege durch die malerische Landschaft laden zur Erkundung der Natur ein. Die ruhige und grüne Umgebung ist ideal für Naturliebhaber und sportlich Aktive. Zudem fördern lokale Veranstaltungen und Vereinsaktivitäten das Gemeinschaftsleben und die Identifikation mit der Region.
Sonstige Angaben
Vereinbare einen persönlichen Beratungstermin, um über unser Miet-Kauf Modell zu sprechen.
Bitte beachte, dass die dargestellten Bilder und Grundrisse nur beispielhaft sind und unter Umständen Sonderbauteile enthalten, die nicht im angegebenen Preis enthalten sind.
Hab außerdem bitte Verständnis dafür, dass weitere Details zum angebotenen Grundstück erst nach einem persönlichen Gespräch bekanntgegeben werden und nur vollständige Anfragen bearbeitet werden können.
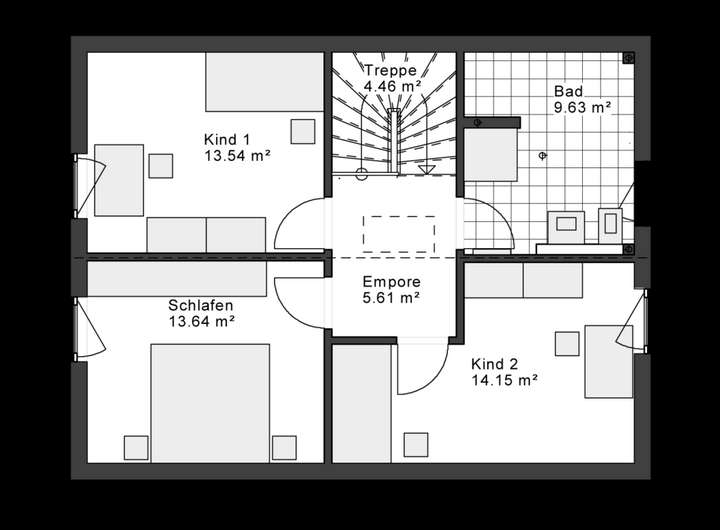
Grundriss
Grundriss EG
>
>
Grundriss OG
>
>
Adresse
56477 Rennerod
Interessante Orte
Preis- und Lageinformationen
Preistrend für Bestandsimmobilien in Rennerod