Nachhaltig wohnen, sicher ankommen: Ihr Weg ins Eigenheim beginnt hier!
In ruhiger, familienfreundlicher Lage erwartet Sie ein liebevoll gepflegtes Zuhause mit viel Raum für Ihre persönlichen Wünsche.
Ihr Zuhause mit Herz und Verstand - Jetzt im Mietkaufmodell
35321 Laubach
Die vollständige Adresse der Immobilie erhalten Sie vom Anbieter.
Auf Karte anzeigen
Die vollständige Adresse der Immobilie erhalten Sie vom Anbieter.
Infos
| Haustyp | Einfamilienhaus |
|---|---|
| Wohnfläche ca. | 119 m2 |
| Nutzfläche | 0 m2 |
| Grundstücksfläche | 465 m2 |
| Zimmer | 3 |
| Schlafzimmer | 3 |
| Badezimmer | 1 |
| Anzahl Garage/Stellplatz | 0 |
Kosten
| Kaltmiete |
1.340 € |
|---|---|
| Nebenkosten | keine Angabe |
| Heizkosten | keine Angabe |
| Gesamtmiete | 1.340 € |
Weiter mieten oder doch kaufen?
Wer in Miete wohnt, überweist dem Vermieter im Laufe der Jahre hohe Summen, die sich
auch in die eigenen vier Wände investieren lassen könnten.
Bausubstanz & Energieausweis
| Baujahr | 2025 |
|---|---|
| Qualität der Austattung | Gehoben |
| Heizungsart | Wärmepumpe |
Beschreibung des Objekts
Ausstattung
3 Schlafzimmer
großzügiges Wohn-/Esszimmer mit Zugang zur sonnigen Terrasse
Grüner Garten zur eigenen Nutzung - perfekt für Kinder oder naturnahes Gärtnern
Gute Anbindung an den öffentlichen Nahverkehr, Schulen und Einkaufsmöglichkeiten in der Nähe
Lage
Die angebotene Immobilie befindet sich im idyllischen Taunusabfall der Wetterau, zentral im Ortsteil Laubach, mit guter Anbindung an die umliegenden Gemeinden. Die Lage zeichnet sich durch eine ruhige, familienfreundliche Wohngegend aus, geprägt von gepflegten Eigenheimen, grünen Grünflächen und kurzen Wegen in die Natur.
Einkaufsmöglichkeiten, Apotheke und Bäcker sind innerhalb weniger Minuten fußläufig erreichbar.
Grundschule und weiterführende Schulen sind gut erreichbar, ebenso Vereine und Freizeiteinrichtungen.
Ärzte- und Apothekennetzwerk in der Nähe sorgt für eine zuverlässige medizinische Versorgung.
Optimale Anbindung an die B275 sowie die nahegelegene A45 ermöglicht eine schnelle Verbindung in die Zentren von Gießen, Butzbach und Frankfurt.
ÖPNV: Mehrere Buslinien verbinden Laubach mit den umliegenden Orten; der Bahnhof in Bad Nauheim/Alsfeld ist per Auto oder Bus gut erreichbar.
Nähe zu Wald- und Grünflächen lädt zu sportlichen Aktivitäten, Joggen und Spaziergängen ein.
Vielfältige Freizeitmöglichkeiten durch nahegelegene Vereine, Sportanlagen und kulturelle Einrichtungen in der Region.
Sonstige Angaben
Vereinbare einen persönlichen Beratungstermin, um über unser Miet-Kauf Modell zu sprechen.
Bitte beachte, dass die dargestellten Bilder und Grundrisse nur beispielhaft sind und unter Umständen Sonderbauteile enthalten, die nicht im angegebenen Preis enthalten sind.
Hab außerdem bitte Verständnis dafür, dass weitere Details zum angebotenen Grundstück erst nach einem persönlichen Gespräch bekanntgegeben werden und nur vollständige Anfragen bearbeitet werden können.
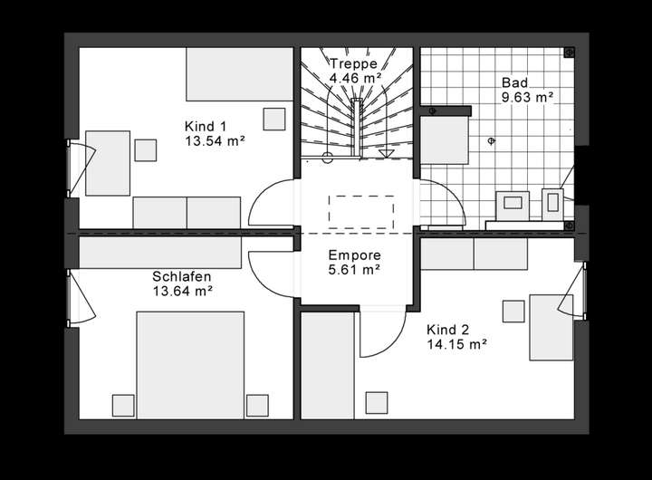
Grundriss
Grundriss EG
>
>
Grundriss OG
>
>
Adresse
35321 Laubach
Interessante Orte
Preis- und Lageinformationen
Preistrend für Bestandsimmobilien in Laubach