Nachhaltig wohnen, sicher ankommen: Ihr Weg ins Eigenheim beginnt hier!
In ruhiger, familienfreundlicher Lage erwartet Sie ein liebevoll gepflegtes Zuhause mit viel Raum für Ihre persönlichen Wünsche.
Ihr Zuhause mit Herz und Verstand - Jetzt im Mietkaufmodell
35447 Reiskirchen
Die vollständige Adresse der Immobilie erhalten Sie vom Anbieter.
Auf Karte anzeigen
Die vollständige Adresse der Immobilie erhalten Sie vom Anbieter.
Infos
| Haustyp | Einfamilienhaus |
|---|---|
| Wohnfläche ca. | 139 m2 |
| Nutzfläche | 0 m2 |
| Grundstücksfläche | 447 m2 |
| Zimmer | 4 |
| Schlafzimmer | 3 |
| Badezimmer | 1 |
| Anzahl Garage/Stellplatz | 0 |
Kosten
| Kaltmiete |
1.490 € |
|---|---|
| Nebenkosten | keine Angabe |
| Heizkosten | keine Angabe |
| Gesamtmiete | 1.490 € |
Weiter mieten oder doch kaufen?
Wer in Miete wohnt, überweist dem Vermieter im Laufe der Jahre hohe Summen, die sich
auch in die eigenen vier Wände investieren lassen könnten.
Bausubstanz & Energieausweis
| Baujahr | 2025 |
|---|---|
| Qualität der Austattung | Gehoben |
| Heizungsart | Wärmepumpe |
Beschreibung des Objekts
Ausstattung
3 Schlafzimmer
großzügiges Wohn-/Esszimmer mit Zugang zur sonnigen Terrasse
Grüner Garten zur eigenen Nutzung - perfekt für Kinder oder naturnahes Gärtnern
Gute Anbindung an den öffentlichen Nahverkehr, Schulen und Einkaufsmöglichkeiten in der Nähe
Lage
Die Immobilie befindet sich in der idyllischen Gemeinde Reiskirchen, im Landkreis Gießen, und bietet eine ausgezeichnete Kombination aus ländlicher Ruhe und guter Anbindung an städtische Infrastrukturen. Reiskirchen ist eine charmante Ortschaft, die besonders für ihre naturnahe Umgebung und die hohe Lebensqualität geschätzt wird.
Die Gemeinde liegt etwa 15 Kilometer nordwestlich von Gießen und bietet damit eine direkte Anbindung an die A485 sowie die B49, die beide eine schnelle Verbindung zu den Städten Gießen und Wetzlar ermöglichen. Auch die Anbindung an den öffentlichen Nahverkehr ist gut: Der Bahnhof Reiskirchen bietet regelmäßige Zugverbindungen in die umliegenden Städte und Region, sodass Sie sowohl den Arbeitsweg als auch Freizeitaktivitäten problemlos gestalten können.
In Reiskirchen finden sich alle wesentlichen Einrichtungen des täglichen Bedarfs: Supermärkte, Bäckereien und Apotheke sind bequem zu erreichen, ebenso wie eine Grundschule und ein Kindergarten. Zudem ist die Umgebung durch zahlreiche Freizeitmöglichkeiten wie Wander- und Radwege geprägt, die zu Erholung und Sport einladen. Der nahe gelegene Wald und die ländliche Idylle bieten sowohl Naturfreunden als auch Familien ein schönes Zuhause.
Die Nähe zu Gießen ermöglicht es Ihnen, von den vielfältigen Angeboten der Universitätsstadt zu profitieren, wie zum Beispiel kulturellen Veranstaltungen, Restaurants, Einkaufszentren und einem breiten Sportangebot. Der internationale Flughafen Frankfurt ist ebenfalls in etwa 45 Minuten mit dem Auto erreichbar, was eine zusätzliche Bequemlichkeit für Geschäftsreisende oder Urlauber darstellt.
Die Lage dieser Immobilie verbindet die Vorteile des Landlebens mit der Nähe zu urbanen Zentren und sorgt so für ein hohes Maß an Lebensqualität und Komfort.
Sonstige Angaben
Vereinbare einen persönlichen Beratungstermin, um über unser Miet-Kauf Modell zu sprechen.
Bitte beachte, dass die dargestellten Bilder und Grundrisse nur beispielhaft sind und unter Umständen Sonderbauteile enthalten, die nicht im angegebenen Preis enthalten sind.
Hab außerdem bitte Verständnis dafür, dass weitere Details zum angebotenen Grundstück erst nach einem persönlichen Gespräch bekanntgegeben werden und nur vollständige Anfragen bearbeitet werden können.
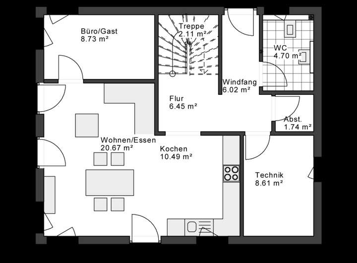
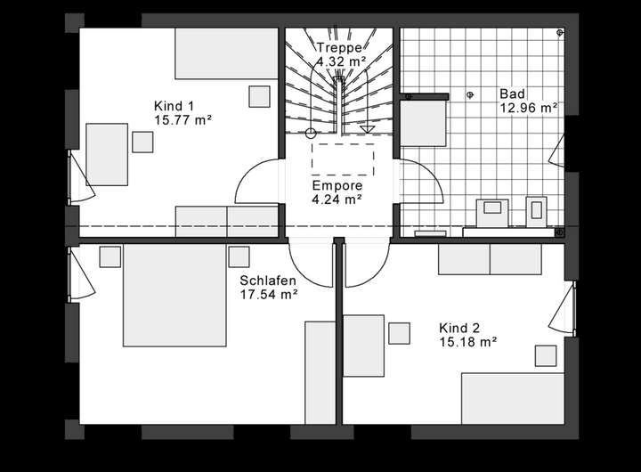
Grundriss
Grundriss EG
>
>
Grundriss OG
>
>
Adresse
35447 Reiskirchen
Interessante Orte
Preis- und Lageinformationen
Preistrend für Bestandsimmobilien in Reiskirchen