Nachhaltig wohnen, sicher ankommen: Ihr Weg ins Eigenheim beginnt hier!
In ruhiger, familienfreundlicher Lage erwartet Sie ein liebevoll gepflegtes Zuhause mit viel Raum für Ihre persönlichen Wünsche.
Ihr Zuhause mit Herz und Verstand - Jetzt im Mietkaufmodell
35753 Greifenstein
Die vollständige Adresse der Immobilie erhalten Sie vom Anbieter.
Auf Karte anzeigen
Die vollständige Adresse der Immobilie erhalten Sie vom Anbieter.
Infos
| Haustyp | Einfamilienhaus |
|---|---|
| Wohnfläche ca. | 140 m2 |
| Nutzfläche | 0 m2 |
| Grundstücksfläche | 530 m2 |
| Zimmer | 4 |
| Schlafzimmer | 3 |
| Badezimmer | 1 |
| Anzahl Garage/Stellplatz | 0 |
Kosten
| Kaltmiete |
1.490 € |
|---|---|
| Nebenkosten | keine Angabe |
| Heizkosten | keine Angabe |
| Gesamtmiete | 1.490 € |
Weiter mieten oder doch kaufen?
Wer in Miete wohnt, überweist dem Vermieter im Laufe der Jahre hohe Summen, die sich
auch in die eigenen vier Wände investieren lassen könnten.
Bausubstanz & Energieausweis
| Baujahr | 2025 |
|---|---|
| Qualität der Austattung | Gehoben |
| Heizungsart | Wärmepumpe |
Beschreibung des Objekts
Ausstattung
3 Schlafzimmer
großzügiges Wohn-/Esszimmer mit Zugang zur sonnigen Terrasse
Grüner Garten zur eigenen Nutzung - perfekt für Kinder oder naturnahes Gärtnern
Gute Anbindung an den öffentlichen Nahverkehr, Schulen und Einkaufsmöglichkeiten in der Nähe
Lage
Die Immobilie befindet sich in der Gemeinde Greifenstein, malerisch gelegen im Lahn-Dill-Kreis in Mittelhessen. Greifenstein ist vor allem für seine beeindruckende Burgruine und die reizvolle Mittelgebirgslandschaft bekannt, die den Ort umgibt. Die Gemeinde besteht aus mehreren Ortsteilen, die durch ihre ländliche Struktur, Ruhe und hohe Lebensqualität überzeugen.
Greifenstein bietet eine naturnahe Wohnlage mit viel Raum zur Erholung – ideal für Familien, Naturliebhaber oder Ruhesuchende. Wälder, Wiesen und gut ausgebaute Wander- und Radwege prägen das Bild der Region. Die Umgebung lädt zu zahlreichen Outdoor-Aktivitäten ein – vom Spaziergang im Grünen bis hin zu Ausflügen zur bekannten Burg Greifenstein, die ein beliebtes Ausflugsziel mit atemberaubender Aussicht ist.
Trotz der ruhigen Lage ist die Infrastruktur gut ausgebaut: In den nahegelegenen Städten Beilstein, Ehringshausen, Herborn oder Dillenburg finden sich Einkaufsmöglichkeiten, Ärzte, Apotheken, Schulen und alles, was für den täglichen Bedarf erforderlich ist. Auch Kindergärten und Grundschulen befinden sich in der näheren Umgebung.
Die Anbindung an das Verkehrsnetz ist durch die Bundesstraße B49 sowie die Autobahn A45 sehr gut. So sind die Städte Wetzlar, Gießen, Siegen oder Frankfurt bequem mit dem Auto erreichbar. Auch der Anschluss an den öffentlichen Nahverkehr ist durch Busverbindungen und nahegelegene Bahnhöfe gegeben.
Sonstige Angaben
Vereinbare einen persönlichen Beratungstermin, um über unser Miet-Kauf Modell zu sprechen.
Bitte beachte, dass die dargestellten Bilder und Grundrisse nur beispielhaft sind und unter Umständen Sonderbauteile enthalten, die nicht im angegebenen Preis enthalten sind.
Hab außerdem bitte Verständnis dafür, dass weitere Details zum angebotenen Grundstück erst nach einem persönlichen Gespräch bekanntgegeben werden und nur vollständige Anfragen bearbeitet werden können.
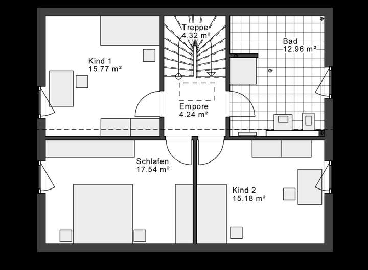
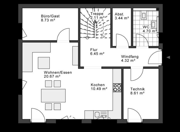
Grundriss
Grundriss EG
>
>
Grundriss OG
>
>
Adresse
35753 Greifenstein
Interessante Orte
Preis- und Lageinformationen
Preistrend für Bestandsimmobilien in Greifenstein