Idyllisch wohnen mit Galerie und einem Lichtdurchflutetem Wohnraum...
Bei diesem Immobilienangebot handelt es sich um eine herrliche 4 Zimmer Maisonette-Wohnung, welche erst in 2025 vollständig saniert wurde. Neue sanitäre Anlagen, eine neue und moderne Einbauküche, ein großzügiger Balkon mit herrlichem Ausblick und viel Platz sind hier garantiert.
Familienidyll: Kernsaniertes Traumhaus
74211 Leingarten
Die vollständige Adresse der Immobilie erhalten Sie vom Anbieter.
Auf Karte anzeigen
Die vollständige Adresse der Immobilie erhalten Sie vom Anbieter.
Infos
| Haustyp | Reiheneckhaus |
|---|---|
| Etagenzahl | 2 |
| Wohnfläche ca. | 154 m2 |
| Nutzfläche | 12 m2 |
| Grundstücksfläche | 0 m2 |
| Bezugsfrei ab | sofort |
| Zimmer | 4,5 |
| Schlafzimmer | 3 |
| Badezimmer | 1 |
| Haustiere | Nach Vereinbarung |
| Garage/Stellplatz | Garage |
| Anzahl Garage/Stellplatz | 2 |
Kosten
| Kaltmiete |
1.855 € |
|---|---|
| Nebenkosten | + 260 € |
| Heizkosten | in Nebenkosten enthalten |
| Gesamtmiete | 2.115 € |
| Kaution o. Genossenschaftsanteile | 3 Monatskaltmieten |
Weiter mieten oder doch kaufen?
Wer in Miete wohnt, überweist dem Vermieter im Laufe der Jahre hohe Summen, die sich
auch in die eigenen vier Wände investieren lassen könnten.
Bausubstanz & Energieausweis
| Baujahr | 1970 |
|---|---|
| Letzte Sanierung | 2025 |
| Objektzustand | Erstbezug nach Sanierung |
| Qualität der Austattung | Gehoben |
| Heizungsart | Wärmepumpe |
| Energieausweis | liegt zur Besichtigung vor |
Beschreibung des Objekts
Ausstattung
Hier bleiben keine Wünsche offen...
Durch die zeitlose und helle Ausstattung des gesamten Hauses und die offene Galerie herrscht in dieser Wohnung eine tolle Atmosphäre.
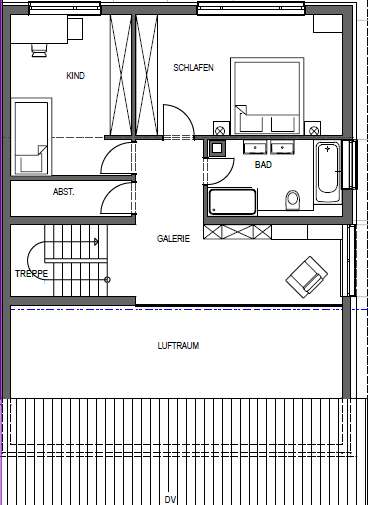
Mit insgesamt 4 Zimmern, davon drei Schlafzimmern und einer Wohnfläche von knapp 155 m² verteilt auf zwei Etagen eignet sich dieses Objekt perfekt für junge Familien oder Paare. Ein separates WC, ein zeitloses Tageslichtbad mit Wanne und Dusche und eine hochwertige Küche dürfen hier natürlich nicht fehlen. Auch für genügend Platz an der frischen Luft ist aufgrund des großzügigen Balkons gesorgt. An den zahlreichen Fenstern finden Sie überwiegend elektrische Rollläden. Die gesamte Wohnung wird über eine Fußbodenheizung durch eine neue Wärmepumpe geheizt.
Stauraum und Abstellflächen bietet Ihnen diese Maisonettewohnung ebenfalls, durch den Dachboden, den Abstellraum im OG und die zwei Kellerräume. Der Anschluss für die Waschmaschine befindet sich ebenfalls im Keller.
Eine Garage sowie Stellplatz vor dem Haus runden das Angebot ab.
Lage
Leingarten - Idylle in Hülle und Fülle
Die hier angebotene Immobilie befindet sich in einer familienfreundlichen Wohngegend in der attraktiven Stadt Leingarten, im schönen Leintal. Die Stadt bietet hohe Wohnqualität, zahlreiche infrastrukturelle Einrichtungen und einen hohen Freizeitwert. Eingebettet in eine landschaftlich reizvolle Lage um den Heuchelberg mit Weinbau und vielen Sport- und Naherholungseinrichtungen garantiert Leingarten ein lebenswertes Umfeld.
Die hervorragende Wohnqualität zeichnet sich vor allem durch die sehr guten infrastrukturellen Einrichtungen in Leingarten aus. Zahlreiche Ärzte, Apotheken, Gesundheits- und Pflegeeinrichtungen haben sich in Leingarten niedergelassen. Mehrere Bäckereien, Metzgereien und Supermärkte garantieren eine Versorgung auf hohem Niveau.
Sonstige Angaben
- Bei Anfragen bitte Telefonnummer und E-Mail-Adresse angeben.
- benötigte Unterlagen: Mieterselbstauskunft, Schufa-Auskunft, Gehaltsnachweise der letzten drei Monate
Grundriss
4,5-Zi DG mit Galerie
>
>
4,5-Zi EG
>
>
Adresse
74211 Leingarten
Interessante Orte
Preis- und Lageinformationen
Preistrend für Bestandsimmobilien in Leingarten