Idyllisches Einfamilienhaus in Kronberg am Taunus – abgeschieden, grün und perfekt gelegen.
Eingebettet in das üppige Grün von Kronberg am Taunus bietet dieses charmante Einfamilienhaus eine seltene Kombination aus Privatsphäre, Komfort und Bequemlichkeit. Das Haus liegt versteckt in einer ruhigen Umgebung und ist ideal für Familien, die Ruhe und Platz suchen und dennoch schnellen Zugang zu allem haben möchten, was sie im Alltag brauchen – darunter auch die renommierte Frankfurt International School, die nur eine kurze Autofahrt entfernt ist.
Das Haus wurde sorgfältig für das Familienleben konzipiert und verfügt im Herzen des Hauses über ein geräumiges Familienzimmer mit direktem Zugang zu einer sonnigen Terrasse, die sich nahtlos zum wunderschön angelegten Garten hin öffnet – perfekt für entspannte Nachmittage oder zur Unterhaltung von Gästen. Eine separate Küche und ein eigener Essbereich bieten einen warmen und einladenden Raum für gemeinsame Mahlzeiten und unvergessliche Momente.
Die untere Etage besticht durch eine vielseitige Raumaufteilung mit einem großen Spiel-/Familienzimmer mit einem Zugang zur großen Terrasse und einem ruhigen Bürobereich, der es leicht macht, Beruf und Familie unter einen Hut zu bringen.
Im Obergeschoss befinden sich vier gut geschnittene Schlafzimmer.
Dies ist mehr als nur ein Haus – es ist ein Zuhause, in dem das nächste Kapitel Ihrer Familie beginnt, in einer der begehrtesten und grünsten Ecken des Taunus.
Idyllisches Einfamilienhaus – nähe Frankfurt International School (FIS)
61476 Kronberg im Taunus
Die vollständige Adresse der Immobilie erhalten Sie vom Anbieter.
Auf Karte anzeigen
Die vollständige Adresse der Immobilie erhalten Sie vom Anbieter.
Infos
| Haustyp | Einfamilienhaus |
|---|---|
| Etagenzahl | 3 |
| Wohnfläche ca. | 238 m2 |
| Grundstücksfläche | 1.104 m2 |
| Bezugsfrei ab | sofort |
| Zimmer | 8 |
| Schlafzimmer | 5 |
| Badezimmer | 3 |
| Haustiere | Nach Vereinbarung |
| Garage/Stellplatz | Garage |
| Anzahl Garage/Stellplatz | 2 |
Kosten
| Kaltmiete |
4.550 € |
|---|---|
| Nebenkosten | + 650 € |
| Heizkosten | keine Angabe |
| Gesamtmiete | 5.200 € (zzgl. Heizkosten) |
| Miete für Garage/Stellplatz | 0 € |
| Kaution o. Genossenschaftsanteile | 3 MM |
Weiter mieten oder doch kaufen?
Wer in Miete wohnt, überweist dem Vermieter im Laufe der Jahre hohe Summen, die sich
auch in die eigenen vier Wände investieren lassen könnten.
Bausubstanz & Energieausweis
| Baujahr | 1955 |
|---|---|
| Letzte Sanierung | 2023 |
| Objektzustand | Modernisiert |
| Qualität der Austattung | Gehoben |
| Heizungsart | Gas-Heizung |
| Wesentliche Energieträger | Erdgas schwer |
| Energieausweis | liegt zur Besichtigung vor |
Beschreibung des Objekts
Ausstattung
- EBK inkl. alle notwendigen Geräten vom 2022
- Gäste-WC im EG
- Keller
- 2 Garagen und 2 Außenstellplätze
- 3 Bäder
- 2 Terrassen
- Gartenhütte
- Waschküche im UG
Lage
Kronberg im Taunus gilt als eine der attraktivsten Wohngegenden im Rhein-Main-Gebiet, besonders für Familien. Die Stadt vereint eine idyllische Lage mit einer sehr guten Infrastruktur und hoher Lebensqualität.
Eingebettet am Südhang des Taunus bietet Kronberg viel Natur: Wälder, Wander- und Radwege sowie zahlreiche Grünflächen laden zu gemeinsamen Aktivitäten im Freien ein. Gleichzeitig ist Frankfurt am Main in nur rund 20 Minuten mit Auto oder S-Bahn erreichbar – ideal für Berufspendler, die ihre Familie in einer ruhigeren Umgebung großziehen möchten.
Für Kinder gibt es ein vielfältiges Betreuungs- und Bildungsangebot: von modernen Kindertagesstätten über Grundschulen bis hin zu weiterführenden Schulen in und um Kronberg. Zudem bieten Musikschulen, Sportvereine, Reitställe und kreative Freizeitangebote eine breite Palette an Möglichkeiten für die ganze Familie.
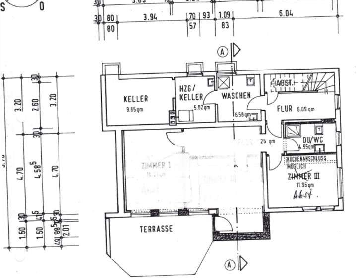
Grundriss
Grundriss EG
>
>
Grundriss OG
>
>
Grundriss UG
>
>
Adresse
61476 Kronberg im Taunus
Interessante Orte
Preis- und Lageinformationen
Preistrend für Bestandsimmobilien in Kronberg im Taunus