5 Zimmer, verteilt auf etwa 145 m², stehen Dir bei der größeren Variante der beiden Haustypen, zur Verfügung.
- Erstbezug
- Großzügige Wohnfläche mit eigener Terrasse & Garten
- Moderne Einbauküche mit deutschen Markengeräten
- Funktionaler Grundriss für hohem Wohnkomfort
- Stauraum durch Vorgarten- und Terrassenschrank, sowie Gartenbox
- Jedes Haus verfügt über zwei Außenstellplätze, sowie hausabhängig zum Teil auch über ein eigenes Carport
Du wohnst modern und energieeffizient im KfN-40-Standard. Das nachhaltige Energiekonzept mit unserem Partner OVE sorgt für niedrige Nebenkosten und und schont die Umwelt. Eine zentrale Wärmepumpe liefert nachhaltige Nahwärme. Der Strom stammt überwiegend aus der eigenen Photovoltaikanlage; überschüssige Energie wird an die einzelnen Häuser verteilt. Das ermöglicht eine besonders effiziente Nutzung der Ressourcen und sorgt für energieeffizientes Wohnen.
RESERVIERT - MoVida Reihenendhaus D15 mit 350 m² Grundstück
Am Kindergarten 6,
61169 Friedberg (Hessen)
Auf Karte anzeigen
Infos
| Etagenzahl | 2 |
|---|---|
| Wohnfläche ca. | 145 m2 |
| Nutzfläche | 3,4 m2 |
| Grundstücksfläche | 350 m2 |
| Bezugsfrei ab | 01.2026 |
| Zimmer | 5 |
| Schlafzimmer | 4 |
| Badezimmer | 2 |
| Anzahl Garage/Stellplatz | 2 |
Kosten
| Kaltmiete |
2.400 € |
|---|---|
| Nebenkosten | + 290 € |
| Heizkosten | keine Angabe |
| Gesamtmiete | 2.690 € (zzgl. Heizkosten) |
| Miete für Garage/Stellplatz | 150 € |
| Kaution o. Genossenschaftsanteile | 7.650 € |
Weiter mieten oder doch kaufen?
Wer in Miete wohnt, überweist dem Vermieter im Laufe der Jahre hohe Summen, die sich
auch in die eigenen vier Wände investieren lassen könnten.
Bausubstanz & Energieausweis
| Baujahr | 2025 |
|---|---|
| Objektzustand | Erstbezug |
| Qualität der Austattung | Gehoben |
| Heizungsart | Wärmepumpe |
| Wesentliche Energieträger | Strom |
| Energieausweis | liegt vor |
| Energieausweistyp | Bedarfsausweis |
| Energieverbrauchskennwert | 47,8 kWh/(m²*a) |
| Energieeffizienzklasse | A |
47,8
kWh/(m²*a)
Energieeffizienzklasse A
- A+
- A
- B
- C
- D
- E
- F
- G
- H
- 0
- 25
- 50
- 75
- 100
- 125
- 150
- 175
- 200
- 225
- >250
Beschreibung des Objekts
Ausstattung
5 Zimmer, verteilt auf etwa 145 m², stehen Dir bei der größeren Variante der beiden Haustypen, zur Verfügung.
Jede Wohneinheit überzeugt durch hochwertige, stilvolle Ausstattung und clevere Details für deinen Alltag. Design-Vinylböden, elektrische Rollläden und moderne Sanitärelemente in den Bädern sorgen für echtes Wohlfühlambiente. Großzügige Wohnflächen, praktische Gartenboxen und vorgelagerte Schränke bieten dir extra viel Komfort und Stauraum.
- Design-Vinyl-Boden
- Moderne Fliesen in Bädern & Eingangsbereich
- Vorgarten- und Terrassenschrank sowie Gartenbox
- PKW-Stellplatz – vorbereitet für E-Mobilität
- Glasfaseranschluss
- Photovoltaikanlage & Luft-Wasser-Wärmepumpe
In deiner neuen Küche wird Kochen zum Erlebnis: modern, funktional und stilvoll eingerichtet – hier passt einfach alles. Hochwertige Markengeräte (Backofen, Induktionsfeld, Dunstabzugshaube, Geschirrspüler, Kühl-Gefrierkombi & Umluftfilter) von deutschen Herstellern bringen dir Leistung, auf die du dich im Alltag verlassen kannst. Deine Arbeitsplatte bietet viel Platz zum Vorbereiten, und clevere Stauraumlösungen bringen Ordnung und machen deinen Küchenalltag leichter.
Lage
Das Wohnprojekt liegt in einem gewachsenen Wohnumfeld in Friedberg mit überwiegend wohnwirtschaftlicher Nutzung und überzeugt durch eine zentrale und dennoch ruhige Lage mit optimaler Anbindung an Frankfurt und die gesamte Rhein-Main-Region.
Die Kombination aus guter Infrastruktur, naturnahem Umfeld und lebendiger Stadtstruktur macht den Standort sowohl für Familien als auch für Berufspendler äußerst attraktiv.
Friedberg, die charmante Kreisstadt in der Wetterau, verbindet historisches Flair mit der Nähe zur Metropole Frankfurt am Main. Eingebettet in die fruchtbare Wetterau mit ihren weiten Feldern und Streuobstwiesen, bietet sie eine perfekte Kombination aus ruhigem Wohnen, naturnaher Umgebung und einer hervorragenden Anbindung an das Rhein-Main-Gebiet.
Sonstige Angaben
Sie möchten das Objekt besichtigen? Dann senden Sie uns eine Nachricht über das entsprechende Kontaktformular. Wir freuen uns auf Ihre Anfrage!
Die gezeigten Bilder sind Visualisierungen oder stammen aus einem Musterhaus und dienen zur Veranschaulichung. Der tatsächliche Grundriss kann von der Darstellung abweichen. Die Möblierung und Dekoration sind nicht Bestandteil der Mietsache.
**Es wird ein Kündigungsausschluss von 24 Monaten, sowie eine Indexmiete vereinbart.**
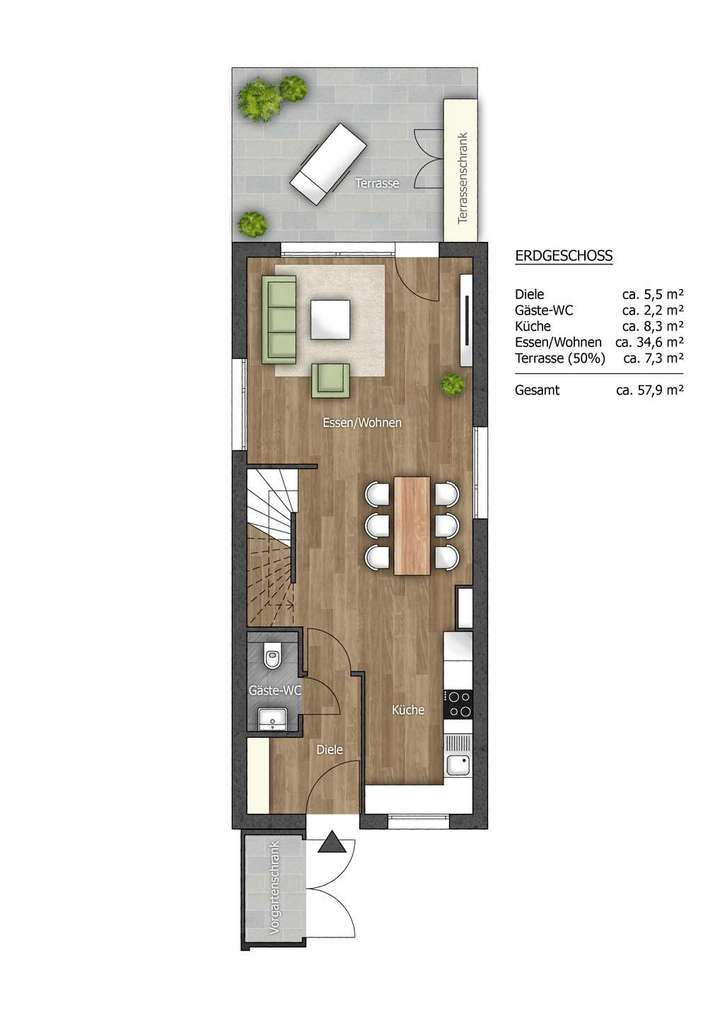
Grundriss
145er_EG_600
>
>
145er_OG_600
>
>
145er_DG_600
>
>
Adresse
Am Kindergarten 6, 61169 Friedberg (Hessen)
Interessante Orte
Preis- und Lageinformationen
Preistrend für Bestandsimmobilien in Friedberg (Hessen)