Willkommen in Ihrem neuen Zuhause! Dieses exklusive Neubau-Doppelhaus mit ca. 134 m² Wohnfläche und 6,5 Zimmern wird im Oktober 2025 bezugsfertig sein. Das Haus wurde im Jahr 2025 erbaut und befindet sich in einem Erstbezugs-Zustand mit luxuriöser Innenausstattung. Es bietet auf einem ca. 400 m² großen Grundstück viel Platz für die ganze Familie. Die Beheizung erfolgt über eine moderne Wärmepumpe mit Strom als primärem Energieträger. Ein Gäste-WC ist vorhanden, und Haustiere sind nach Vereinbarung erlaubt. Ein Außenstellplatz sowie eine Garage stehen zur Verfügung. Die Wohnfläche ist barrierefrei zugänglich. Das Haus verfügt über einen Keller.
Neubau-Doppelhaushälfte mit 6,5 Zimmern in Essen-Überruhr-Hinsel
45277 Essen
Die vollständige Adresse der Immobilie erhalten Sie vom Anbieter.
Auf Karte anzeigen
Die vollständige Adresse der Immobilie erhalten Sie vom Anbieter.
Infos
| Haustyp | Doppelhaushaelfte |
|---|---|
| Wohnfläche ca. | 134 m2 |
| Nutzfläche | 160 m2 |
| Grundstücksfläche | 400 m2 |
| Bezugsfrei ab | 15.10.2025 |
| Zimmer | 5,5 |
| Schlafzimmer | 4 |
| Badezimmer | 1 |
| Haustiere | Nach Vereinbarung |
| Garage/Stellplatz | Außenstellplatz |
| Anzahl Garage/Stellplatz | 2 |
Kosten
| Kaltmiete |
2.400 € |
|---|---|
| Nebenkosten | + 200 € |
| Heizkosten | keine Angabe |
| Gesamtmiete | 2.600 € (zzgl. Heizkosten) |
| Kaution o. Genossenschaftsanteile | 4900 |
Weiter mieten oder doch kaufen?
Wer in Miete wohnt, überweist dem Vermieter im Laufe der Jahre hohe Summen, die sich
auch in die eigenen vier Wände investieren lassen könnten.
Bausubstanz & Energieausweis
| Baujahr | 2025 |
|---|---|
| Letzte Sanierung | 2025 |
| Objektzustand | Erstbezug |
| Qualität der Austattung | Luxus |
| Heizungsart | Wärmepumpe |
| Wesentliche Energieträger | Strom |
| Energieausweis | liegt vor |
Beschreibung des Objekts
Lage
Überruhr-Hinsel in Essen-Ruhrhalbinsel ist eine Nachbarschaft mit moderater Bevölkerungsdichte, die ein ruhiges Wohnen ermöglicht. Die Anbindung an öffentliche Verkehrsmittel ist gut, mit der S-Bahn-Linie S9, die eine Verbindung zum Essener Stadtzentrum bietet. Die Gegend ist besonders bei Familien beliebt und bietet grüne Parks sowie Spielplätze, was sie zu einer idealen Umgebung für Kinder macht. Auch junge Berufstätige und Rentner schätzen die familienfreundliche und ruhige Atmosphäre.
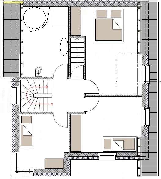
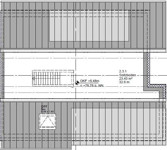
Grundriss
4
>
>
3
>
>
2
>
>
Adresse
45277 Essen
Interessante Orte
Preis- und Lageinformationen
Preistrend für Bestandsimmobilien in Überruhr-Hinsel