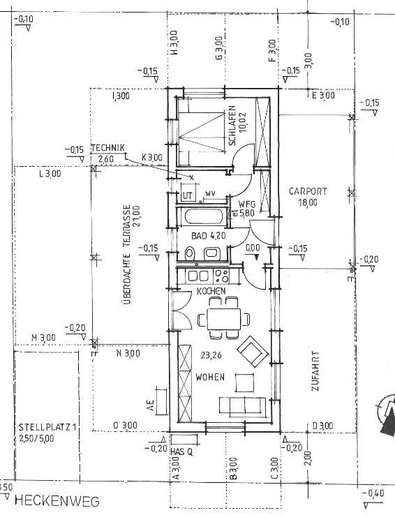
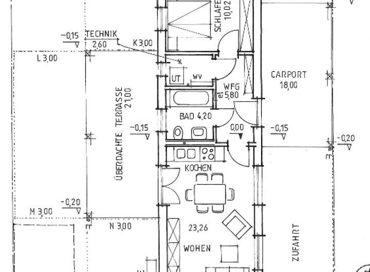
Zur Vermietung steht ein stilvolles Tiny House in Illkofen bei Barbing, das l Platz für ein komfortables Zuhause bietet. Das Haus verfügt über zwei Zimmer – ein gemütliches Schlafzimmer und ein einladendes Wohnzimmer – sowie eine großzügige Terrasse von ca. 21 m², perfekt für entspannte Stunden im Freien.
Das Haus wurde nachhaltig gebaut und punktet durch eine durchdachte Raumaufteilung, hochwertige Materialien und moderne Ausstattung. Die offene Raumgestaltung sorgt für viel Licht und ein angenehmes Wohngefühl.
Ideal für Singles, Paare oder alle, die das Leben im kleinen, flexiblen Zuhause schätzen und gleichzeitig Wert auf Komfort legen.
Highlights:
Große Terrasse von ca. 21 m²
Offene, lichtdurchflutete Raumgestaltung
Nachhaltige Bauweise und hochwertige Materialien
Ruhige Lage in Illkofen bei Barbing
Perfekt für Natur- und Lifestyle-Liebhaber
Wenn Sie Interesse an diesem charmanten Tiny House haben, freuen wir uns auf Ihre Kontaktaufnahme für weitere Infos oder eine Besichtigung!
Vorankündigung - traumhaftes Tiny - Haus in Illkofen bei Barbing zur Miete
93092 Barbing
Die vollständige Adresse der Immobilie erhalten Sie vom Anbieter.
Auf Karte anzeigen
Die vollständige Adresse der Immobilie erhalten Sie vom Anbieter.
Infos
| Haustyp | Bungalow |
|---|---|
| Wohnfläche ca. | 56 m2 |
| Nutzfläche | 66,88 m2 |
| Grundstücksfläche | 250 m2 |
| Zimmer | 2 |
| Schlafzimmer | 1 |
| Badezimmer | 1 |
| Haustiere | Nein |
Kosten
| Kaltmiete |
0 € |
|---|---|
| Nebenkosten | keine Angabe |
| Heizkosten | in Nebenkosten enthalten |
| Gesamtmiete | 950 € (zzgl. Nebenkosten) |
Weiter mieten oder doch kaufen?
Wer in Miete wohnt, überweist dem Vermieter im Laufe der Jahre hohe Summen, die sich
auch in die eigenen vier Wände investieren lassen könnten.
Bausubstanz & Energieausweis
| Baujahr | 2025 |
|---|---|
| Objektzustand | Erstbezug |
| Qualität der Austattung | Gehoben |
| Heizungsart | Wärmepumpe |
| Energieausweis | liegt vor |
| Energieausweistyp | Bedarfsausweis |
| Energieverbrauchskennwert | 35,3 kWh/(m²*a) |
| Energieeffizienzklasse | A |
35,3
kWh/(m²*a)
Energieeffizienzklasse A
- A+
- A
- B
- C
- D
- E
- F
- G
- H
- 0
- 25
- 50
- 75
- 100
- 125
- 150
- 175
- 200
- 225
- >250
Beschreibung des Objekts
Lage
Die Immobilie befindet sich im idyllischen Ortsteil Illkofen, einer ruhigen und naturnahen Ortschaft der Gemeinde Barbing im Landkreis Regensburg. Illkofen liegt nur wenige Kilometer östlich der Stadt Regensburg und bietet damit eine ideale Kombination aus ländlicher Ruhe und stadtnaher Infrastruktur.
Barbing ist durch seine gute Verkehrsanbindung besonders attraktiv: Die A3 sowie die B8 sind in wenigen Minuten erreichbar und ermöglichen eine schnelle Verbindung nach Regensburg, Straubing oder Richtung München. Der Bahnhof in Barbing bietet zudem Anschluss an den öffentlichen Nahverkehr.
In unmittelbarer Umgebung befinden sich weitläufige Felder, Donauauen und zahlreiche Rad- und Wanderwege, die zur Erholung einladen. Illkofen selbst zeichnet sich durch eine freundliche Dorfgemeinschaft und ein familienfreundliches Umfeld aus. Schulen, Kindergärten, Einkaufsmöglichkeiten und ärztliche Versorgung befinden sich im nahen Barbing oder im wenige Fahrminuten entfernten Regensburg.
Die Lage ist ideal für alle, die naturnah wohnen möchten, ohne auf die Vorzüge der Stadt verzichten zu müssen. Ob für Familien, Berufspendler oder Ruhesuchende – Illkofen bietet Lebensqualität auf hohem Niveau.
Grundriss
Grundriss
>
>
Adresse
93092 Barbing
Interessante Orte
Preis- und Lageinformationen
Preistrend für Bestandsimmobilien in Barbing