In ruhiger Wohnlage von Xanten-Vynen entsteht diese moderne Doppelhaushälfte in einer privaten Anliegerstraße. Das Grundstück umfasst 229 m², die Wohnfläche beträgt ca. 134 m², verteilt auf drei Etagen.
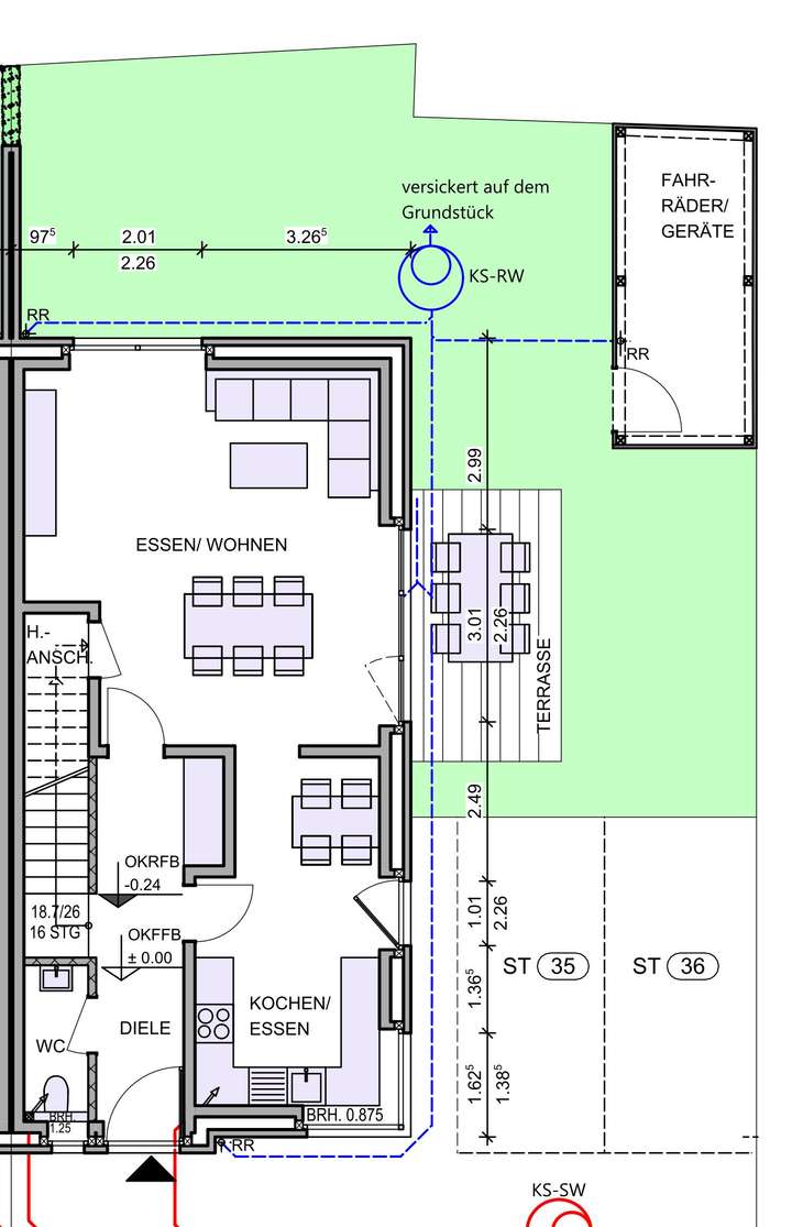
Das Haus überzeugt durch eine hochwertige Bauweise mit Klinkerfassade und moderner Wärmepumpentechnik. Im Erdgeschoss befindet sich der großzügige Wohn- und Essbereich mit Zugang zur Terrasse und zum Garten, eine offene Küche sowie ein Gäste-WC. In den oberen Etagen liegen die Schlafräume und das Hauptbad.
Dank der durchdachten Raumaufteilung bietet das Haus Platz für Familien oder Paare, die modernes Wohnen in ruhiger Umgebung schätzen. Zwei Außenstellplätze gehören zum Objekt.
Die Fertigstellung erfolgt demnächst – es handelt sich um einen Erstbezug.
Moderne Doppelhaushälfte in ruhiger Lage von Xanten-Vynen
Hauptstr. 18b,
46509 Xanten
Auf Karte anzeigen
Infos
| Haustyp | Doppelhaushaelfte |
|---|---|
| Etagenzahl | 3 |
| Wohnfläche ca. | 132 m2 |
| Nutzfläche | 132,8 m2 |
| Grundstücksfläche | 229 m2 |
| Bezugsfrei ab | 1.3.2026 |
| Zimmer | 6 |
| Schlafzimmer | 4 |
| Badezimmer | 1 |
| Haustiere | Nach Vereinbarung |
| Garage/Stellplatz | Außenstellplatz |
| Anzahl Garage/Stellplatz | 2 |
Kosten
| Kaltmiete |
1.650 € |
|---|---|
| Nebenkosten | + 150 € |
| Heizkosten | in Nebenkosten enthalten |
| Gesamtmiete | 1.800 € |
| Kaution o. Genossenschaftsanteile | 4.950,00 |
Weiter mieten oder doch kaufen?
Wer in Miete wohnt, überweist dem Vermieter im Laufe der Jahre hohe Summen, die sich
auch in die eigenen vier Wände investieren lassen könnten.
Bausubstanz & Energieausweis
| Baujahr | 2025 |
|---|---|
| Objektzustand | Erstbezug |
| Qualität der Austattung | Gehoben |
| Heizungsart | Wärmepumpe |
| Energieausweis | liegt zur Besichtigung vor |
Beschreibung des Objekts
Lage
Diese Doppelhaushälfte befindet sich in ruhiger Wohnlage im beliebten Xantener Ortsteil Vynen, nur wenige Kilometer nördlich des Stadtzentrums. Der Ort ist geprägt von Einfamilien- und Doppelhäusern, gepflegten Gärten und einem naturnahen Umfeld – ideal für Familien und Paare, die Wert auf ein ruhiges und sicheres Wohnumfeld legen.
In fußläufiger Entfernung befinden sich ein Supermarkt, eine Bäckerei, ein Kindergarten und eine Grundschule. Weiterführende Schulen, Ärzte, Apotheken und vielfältige Einkaufsmöglichkeiten bietet das nahegelegene Xanten.
Der Freizeitwert ist hoch: Die Xantener Nord- und Südsee liegen nur wenige Minuten entfernt und bieten ideale Möglichkeiten zum Schwimmen, Segeln, Radfahren oder Spazierengehen. Auch die Bislicher Insel und zahlreiche Rad- und Wanderwege in der Umgebung laden zur Erholung in der Natur ein.
Über die Bundesstraße B57 und die Landstraße L460 besteht eine gute Verkehrsanbindung in Richtung Wesel, Rheinberg und Geldern. Der Bahnhof Xanten sorgt für Anbindung an den Regionalverkehr Richtung Duisburg und Krefeld.
Xanten-Vynen verbindet somit ländliche Ruhe mit der Nähe zur Stadt und einem hohen Freizeitwert – ein attraktiver Standort für alle, die komfortables Wohnen im Grünen schätzen.
Grundriss
Erdgeschoss
>
>
Dachgeschoss
>
>
Spitzboden
>
>
Adresse
Hauptstr. 18b, 46509 Xanten
Interessante Orte
Preis- und Lageinformationen
Preistrend für Bestandsimmobilien in Xanten