Diese neuwertige und äußerst gepflegte Immobilie überzeugt durch ihre freundliche Ausstrahlung und hochwertige Ausstattung. Das im Jahr 2018 errichtete KfW-55 Einfamilienhaus bietet ca. 450 m² nutzbare Gartenfläche und eignet sich ideal für Familien oder Paare mit Platzbedarf.
Raumaufteilung und Komfort
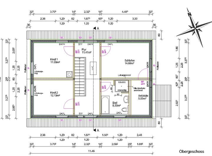
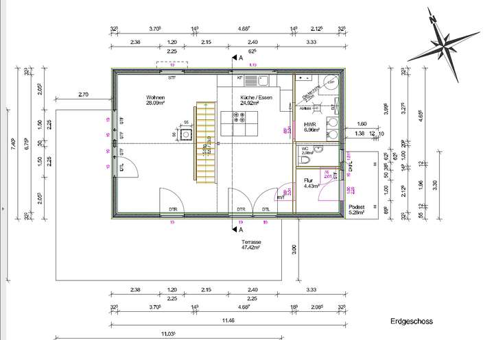
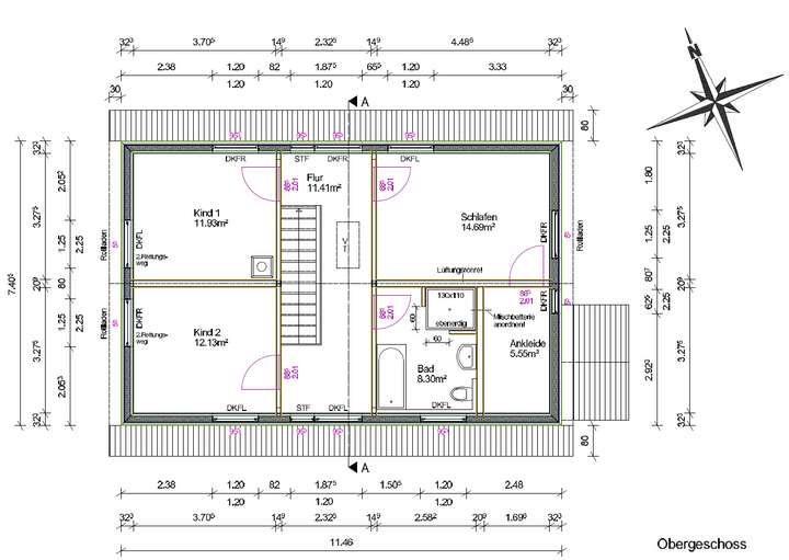
Das Haus verfügt über vier helle, gut geschnittene Zimmer, ein modernes Badezimmer sowie ein separates Gäste-WC. Die Ankleide ist direkt vom Schlafzimmer aus zugänglich. Ein eigener Stellplatz direkt am Haus sorgt für komfortables Parken und erleichtert den Alltag.
Ausstattung für modernes Wohnen
- Effiziente Luft-Wasser-Wärmepumpe mit Fußbodenheizung
- Balancierte Wohnraumlüftung mit Wärmerückgewinnung und Pollenfilter
- Fenster mit einbruchhemmendem Glas und abschließbaren Fensterriegeln
- Gemütlicher Kamin für behagliche Stunden
- Großzügige nordische Holzterrasse mit ca. 47 m² Fläche
- Hochwertige Sanitärinstallation mit Markenarmaturen und Sanitärobjekten
- Glasfaseranschluss für schnelles Internet – ideal für Homeoffice und Streaming
Besonderheiten
Die Beheizung erfolgt nachhaltig und effizient – zusätzliche Vorauszahlungen für Heizkosten entfallen. Es besteht die Möglichkeit, vom aktuellen Vormieter Ausstattungsgegenstände gegen eine Abstandszahlung zu übernehmen. Die Abwicklung erfolgt ausschließlich zwischen Vormieter und Interessent; der Vermieter ist daran nicht beteiligt.
Mietkonditionen
Die monatliche Miete für das Haus inklusive Grundstück beträgt 2.300 Euro.
Ihr neues Zuhause: Stilvolles KfW-55 Haus in Oranienburg – provisionsfrei vom Eigentümer
16515 Oranienburg
Die vollständige Adresse der Immobilie erhalten Sie vom Anbieter.
Auf Karte anzeigen
Die vollständige Adresse der Immobilie erhalten Sie vom Anbieter.
Infos
| Haustyp | Einfamilienhaus |
|---|---|
| Etagenzahl | 1 |
| Wohnfläche ca. | 154 m2 |
| Nutzfläche | 94 m2 |
| Grundstücksfläche | 696 m2 |
| Bezugsfrei ab | 1.1.2026 |
| Zimmer | 4,5 |
| Schlafzimmer | 1 |
| Badezimmer | 1 |
| Haustiere | Nach Vereinbarung |
| Garage/Stellplatz | Außenstellplatz |
| Anzahl Garage/Stellplatz | 2 |
Kosten
| Kaltmiete |
2.200 € |
|---|---|
| Nebenkosten | + 100 € |
| Heizkosten | in Nebenkosten enthalten |
| Gesamtmiete | 2.300 € |
| Kaution o. Genossenschaftsanteile | 6.9 |
Weiter mieten oder doch kaufen?
Wer in Miete wohnt, überweist dem Vermieter im Laufe der Jahre hohe Summen, die sich
auch in die eigenen vier Wände investieren lassen könnten.
Bausubstanz & Energieausweis
| Baujahr | 2018 |
|---|---|
| Objektzustand | Neuwertig |
| Qualität der Austattung | Gehoben |
| Heizungsart | Wärmepumpe |
| Wesentliche Energieträger | Umweltwärme |
| Energieausweis | liegt vor |
| Energieausweistyp | Bedarfsausweis |
| Energieverbrauchskennwert | 35,0 kWh/(m²*a) |
| Energieeffizienzklasse | A+ |
35,0
kWh/(m²*a)
Energieeffizienzklasse A+
- A+
- A
- B
- C
- D
- E
- F
- G
- H
- 0
- 25
- 50
- 75
- 100
- 125
- 150
- 175
- 200
- 225
- >250
Beschreibung des Objekts
Lage
Die Immobilie befindet sich in Oranienburg, einer charmanten Stadt nördlich von Berlin mit direkter Anbindung an die Bahnlinie RB 32 Nord – ideal für eine schnelle Verbindung zum Flughafen BER und in die Hauptstadt.
In fußläufiger Umgebung stehen Ihnen zahlreiche Einrichtungen des täglichen Bedarfs zur Verfügung: ein Supermarkt, ein Restaurant, mehrere Grün- und Parkanlagen sowie Fitnessstudios. Auch ein Modegeschäft, eine Tierhandlung und ein Schuhladen sind bequem erreichbar.
Im erweiterten Umfeld finden Sie weitere Einkaufsmöglichkeiten, einen Kindergarten sowie vielfältige kulturelle Angebote – darunter ein Kino und verschiedene Einrichtungen für Kunst und Kultur. Eine gute medizinische Versorgung rundet das attraktive Umfeld ab.
Weitere Dokumente
EnergiesausweisGrundriss
Grundriss Erdgeschoss
>
>
Grundriss Obergeschoss
>
>
Adresse
16515 Oranienburg
Interessante Orte
Preis- und Lageinformationen
Preistrend für Bestandsimmobilien in Oranienburg