Die schöne und helle 3-Zimmer-Wohnung befindet sich im 1. Obergeschoss in einem sehr gepflegten Mehrfamilienhaus in idealer Lage von Freudenstadt. Das Haus wurde 1994 sehr hochwertig gebaut. Im Keller befindet sich für die Allgemeinheit ein Wasch- & Trockenraum. Zur Wohnung gehört ein großer, abgeschlossener Kellerraum und ein Außenstellplatz. Der Garten hinter dem Haus kann gerne mitbenutzt werden. Die Wohnung hat eine ideale Ost-West Ausrichtung und einen herrlichen und unverbauten Ausblick auf das Christophstal. Vom großen Balkon lässt sich der Sonnenuntergang genießen. Die Morgensonne begrüßt Sie im großzügigen Badezimmer. Hier heißt es "Einziehen und Wohlfühlen".
Wünsche der Eigentümer:
- bestehendes Arbeitsverhältnis
- langfristiges Mietverhältnis (mind. 2 Jahre)
- keine Haustiere
- Nichtraucher
- bestehende Haftpflichtversicherung
Lichtdurchflutete Wohnung mit 2 Westbalkonen und herrlicher Aussicht!
72250 Freudenstadt
Die vollständige Adresse der Immobilie erhalten Sie vom Anbieter.
Auf Karte anzeigen
Die vollständige Adresse der Immobilie erhalten Sie vom Anbieter.
Infos
| Wohnungskategorie | Etagenwohnung |
|---|---|
| Etage | 2 von 4 |
| Wohnfläche ca. | 93 m2 |
| Bezugsfrei ab | 01.01.2026 |
| Zimmer | 3 |
| Schlafzimmer | 2 |
| Badezimmer | 1 |
| Garage/Stellplatz | Außenstellplatz |
| Anzahl Garage/Stellplatz | 1 |
Kosten
| Kaltmiete |
995 € |
|---|---|
| Nebenkosten | + 290 € |
| Heizkosten | in Nebenkosten enthalten |
| Gesamtmiete | 1.285 € |
| Miete für Garage/Stellplatz | 25 € |
| Kaution o. Genossenschaftsanteile | 1.990,00 € |
Weiter mieten oder doch kaufen?
Wer in Miete wohnt, überweist dem Vermieter im Laufe der Jahre hohe Summen, die sich
auch in die eigenen vier Wände investieren lassen könnten.
Bausubstanz & Energieausweis
| Baujahr | 1994 |
|---|---|
| Objektzustand | Gepflegt |
| Qualität der Austattung | Normal |
| Heizungsart | Zentralheizung |
| Wesentliche Energieträger | Gas |
| Energieausweis | liegt vor |
| Energieausweistyp | Verbrauchsausweis |
| Energieverbrauchskennwert | 128,0 kWh/(m²*a) |
| Energieeffizienzklasse | D |
128,0
kWh/(m²*a)
Energieeffizienzklasse D
- A+
- A
- B
- C
- D
- E
- F
- G
- H
- 0
- 25
- 50
- 75
- 100
- 125
- 150
- 175
- 200
- 225
- >250
Beschreibung des Objekts
Ausstattung
-ideale Lage
-zwei Balkone
-Badezimmer mit Badewanne, Dusche, 2 Waschbecken und WC
-Gästetoilette
-Einbauküche vorhanden
-Zentrumsnah
-helle Räume
-schöne Raumaufteilung
-Gas-Zentralheizung
-Glasfaseranschluss (vorbereitet)
-Kunststofffenster mit Isolierverglasung
-pflegeleichter Fliesenboden
-Keller
-PKW-Außenstellplatz
Lage
Die Wohnung befindet sich in der Nähe des Stadtzentrum, nur ca. 5 Gehminuten vom Marktplatz entfernt. Aber auch den nahegelegenen Teuchelwald mit seinen vielen Wander- und Radwegen erreicht man in wenigen Minuten. Man kann alle Wege des täglichen Bedarfs bequem zu Fuß erledigen. Die Anbindung an öffentliche Verkehrsmittel ist durch die Bushaltestelle um die Ecke gewährleistet.
Sonstige Angaben
Unser Service für Sie als Vermieter: Wir bewerten gerne kostenfrei Ihre Immobilie zum aktuellen Mietwert, ermitteln eine angemessene Nebenkostenvorauszahlung, suchen für Sie einen solventen Mieter und stehen Ihnen über die reine Vermietung Ihrer Immobilie bis zur erfolgreichen Schlüsselübergabe zur Verfügung. Kommen Sie einfach bei uns vorbei, rufen Sie uns an oder senden Sie uns eine E-Mail – wir freuen uns, Sie kennen zu lernen.
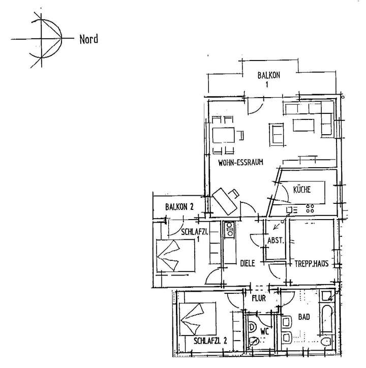
Grundriss
Grundriss
>
>
Adresse
72250 Freudenstadt
Interessante Orte
Preis- und Lageinformationen
Preistrend für Bestandsimmobilien in Freudenstadt