Entdecke dein neues Zuhause im Herzen von Zeitz! Diese charmante Dachgeschosswohnung bietet dir alles, was du für ein gemütliches Zuhause brauchst. Auf ca. 61 m² erwarten dich ein offenes Raumkonzept mit drei einladenden Zimmern, die genug Platz für kreative Entfaltung lassen. Das Schlafzimmer bietet dir einen ruhigen Rückzugsort, und das Badezimmer ist modern und funktional gestaltet.
Der Mix aus Laminat und Fliesen verleiht der Wohnung einen stylischen und zugleich gemütlichen Charakter. Die Einbauküche ist bereits vorhanden und lädt zum kulinarischen Ausprobieren ein.
Diese Wohnung eignet sich ideal für Singles oder Paare, die Wert auf einen besonderen Rückzugsort über den Dächern von Zeitz legen. Lass dir die Chance nicht entgehen, Teil dieser charmanten Stadt zu werden!
Infos
| Wohnungskategorie | Dachgeschoss |
|---|---|
| Wohnfläche ca. | 61 m2 |
| Bezugsfrei ab | ab sofort |
| Zimmer | 2,5 |
| Schlafzimmer | 1 |
| Badezimmer | 1 |
Kosten
| Kaltmiete |
0 € |
|---|---|
| Nebenkosten | + 220 € |
| Heizkosten | in Nebenkosten enthalten |
| Gesamtmiete | 580 € |
| Kaution o. Genossenschaftsanteile | 720,00 |
Weiter mieten oder doch kaufen?
Wer in Miete wohnt, überweist dem Vermieter im Laufe der Jahre hohe Summen, die sich
auch in die eigenen vier Wände investieren lassen könnten.
Bausubstanz & Energieausweis
| Baujahr | 1900 |
|---|---|
| Objektzustand | Gepflegt |
| Heizungsart | Zentralheizung |
| Wesentliche Energieträger | Gas |
| Energieausweis | laut Gesetz nicht erforderlich |
Beschreibung des Objekts
Lage
Rosa-Luxemburg-Straße 4, 06712 Zeitz
Sonstige Angaben
HINWEIS: Wir bitten Sie, unsere allgemeinen Geschäftsbedingungen und die gemäß neuen EU-Verbrauchrichtlinien seit 13.06.2014 geltende Widerrufsbelehrung zu beachten. Wünschen Sie weitere Unterlagen, Informationen oder einen Besichtigungstermin bereits innerhalb der 14 tägigen Widerrufsfrist, bitten wir Sie dies ausdrücklich zu erklären.
Gerne stehen wir Ihnen auch für unsere amtlich anerkannte, professionelle 3A Verkehrswerteinschätzung inkl. Marktwertanalyse zur Verfügung. Rufen Sie uns einfach an und vereinbaren kurzfristig einen Termin!
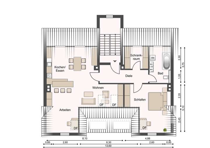
Grundriss
Grundriss
>
>
Adresse
Rosa-Luxemburg-Straße 4, 06712 Zeitz
Interessante Orte
Preis- und Lageinformationen
Preistrend für Bestandsimmobilien in Zeitz