HIER SIND EXISTENZGRÜNDER GEFRAGT. WOHNEN WO MAN ARBEITET IN DER NEUGRÜNDUNG.
WEITER FLÄCHEN SIND IN DER UMGEBUNFG ANZUZPACHTEN
DIESES ANGEBOT IST FÜR VERSCHIEDEN GEWERBE NUTZBAR
DAS IN EINEM GEWERBEGEBIET STEHENDE HAUS MIT 1000m2 GRUNDSTÜCK BIETET PLATZ FÜR EINE KFZ WERKSTAETTEN UND HANDWERKER EINE HUNDESCHULE; HUNDEZÜCHTER SONSTIGE ZÜCHTER ODER HUNDEPENSION.
Das dahinter liegende 1500m2 Grundfstück kann bei Berdarf dazu gepachtet werde, für 400 €/Monat.
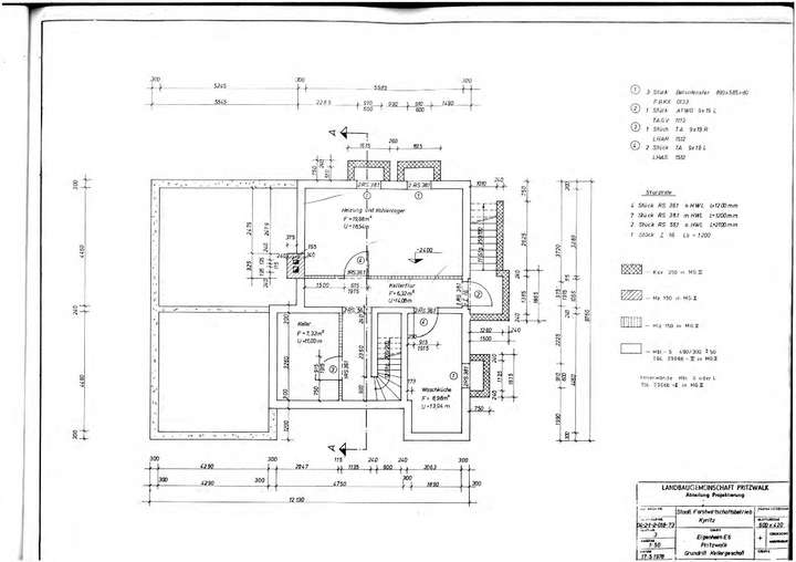
Dieses charmante Einfamilienhaus mit ca. 130 m² Wohnfläche und 6 Zimmern wurde 1988 erbaut und befindet sich auf einem ca. 1000 m² großen Grundstück in Potsdam-Fahrland. Das Haus bietet eine großzügige Raumaufteilung und ist ideal für Gewerbliche Nutznug. Es verfügt über einen ausgebauten Keller und ein Unterstand. die zusätzlichen Stauraum und Komfort bieteten. Die Ölheizung sorgt für wohlige Wärme. Das Haus wird ab dem 10.10.2025 verfügbar sein. Der Zustand des Hauses ist verhandelbar, was Ihnen Spielraum für eigene Gestaltungsideen lässt.
Die Fussböden sind in einerfacher weise belegt.
Vereinbaren Sie eine Besichtigungstermin und überzeugen Sie sich von der Nutzbarkeit für Ihr Gewerbe.
Paketdienste hätten hier ideale Voraussetzngen.
GUTER STANDORT FÜR EIN UNTERNEHMEN , für kleine Pflanzenhandel oder Gärtnerei. Mischgebiet
Marquardter Straße 15,
14476 Potsdam
Auf Karte anzeigen
Infos
| Haustyp | Einfamilienhaus |
|---|---|
| Etagenzahl | 1 |
| Wohnfläche ca. | 130 m2 |
| Nutzfläche | 130 m2 |
| Grundstücksfläche | 1.000 m2 |
| Zimmer | 6 |
| Badezimmer | 1 |
| Haustiere | Ja |
Kosten
| Kaltmiete |
2.200 € |
|---|---|
| Nebenkosten | + 200 € |
| Heizkosten | in Nebenkosten enthalten |
| Gesamtmiete | 2.400 € |
| Kaution o. Genossenschaftsanteile | 6600 |
Weiter mieten oder doch kaufen?
Wer in Miete wohnt, überweist dem Vermieter im Laufe der Jahre hohe Summen, die sich
auch in die eigenen vier Wände investieren lassen könnten.
Bausubstanz & Energieausweis
| Baujahr | 1988 |
|---|---|
| Objektzustand | Gepflegt |
| Qualität der Austattung | Einfach |
| Heizungsart | Zentralheizung |
| Wesentliche Energieträger | Öl |
Beschreibung des Objekts
Lage
Fahrland ist ein charmanter Stadtteil im Norden Potsdams, der sich durch eine moderate Bevölkerungsdichte und eine ausgewogene Altersverteilung auszeichnet. Die gute Anbindung an das öffentliche Verkehrsnetz mit regelmäßigen Buslinien ermöglicht eine einfache Erreichbarkeit des Potsdamer Stadtzentrums. Die Nachbarschaft ist geprägt von Einfamilien- und Reihenhäusern, was zu einem ruhigen und familiären Umfeld beiträgt. Zahlreiche Grünflächen und Parks in der Umgebung machen Fahrland zu einem beliebten Wohnort für Familien und Naturliebhaber.Auch Grundschule, Autowerkstatt,Tischlerei,Supermarkt Bäcker , Piza und Döner werden auch angebotenPoststelle sowie Schuster Zahnarzt bieten für alle den Komfort, des Tages
Adresse
Marquardter Straße 15, 14476 Potsdam
Interessante Orte
Preis- und Lageinformationen
Preistrend für Bestandsimmobilien in Fahrland
>