Ihr neues Zuhause im modernen Neubau: Zentral, energieeffizient & mit Tiefgarage – wohnen Sie ruhig und komfortabel im Herzen von Heuchlingen!
Im Herzen der idyllischen Gemeinde Heuchlingen befindet sich dieses moderne Mehrfamilienhaus mit insgesamt zehn Eigentumswohnungen, das im August 2023 fertiggestellt wurde. Die Lage im Ortszentrum bietet kurze Wege zu Einkaufsmöglichkeiten, Schulen und öffentlichen Verkehrsanbindungen – ideal für alle, die zentral und doch ruhig wohnen möchten.
Das Gebäude erfüllt den energieeffizienten KfW‑55‑Standard und wird mit einer modernen Wärmepumpe beheizt. Diese nachhaltige Bauweise sorgt für niedrige Energiekosten und ein angenehmes Wohnklima. Das dreigeschossige 10‑Familienhaus verfügt über eine Tiefgarage sowie einen Aufzug, sodass alle Etagen bequem und barrierefrei erreichbar sind.
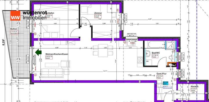
Die helle 3‑Zimmer‑Wohnung bietet eine durchdachte Raumaufteilung mit einem großzügigen Wohn‑ und Essbereich, einem modernen Badezimmer, einem praktischen Hauswirtschaftsraum sowie einem sonnigen Süd‑Balkon mit schöner Aussicht. Große Fensterflächen sorgen für lichtdurchflutete Räume und schaffen eine freundliche Wohnatmosphäre.
Zur hochwertigen Ausstattung gehören eine Fußbodenheizung mit Einzelraumregelung, dreifach verglaste Fenster mit elektrischen Rollläden sowie moderne Bodenbeläge. Die Kombination aus Komfort und Funktionalität macht diese Wohnung sowohl für Paare als auch für kleine Familien attraktiv.
Ein bis zwei Tiefgaragenstellplätze können für jeweils 70 Euro monatlich angemietet werden.
Diese Neubauwohnung überzeugt durch ihre ruhige, zentrale Lage, energieeffiziente Ausstattung, barrierefreien Zugang und den großzügigen Balkon mit Süd‑Ausrichtung – perfekte Voraussetzungen für komfortables Wohnen in Heuchlingen.
Kontaktieren Sie uns gerne, um einen virtuellen Rundgang oder einen persönlichen Besichtigungstermin vor Ort zu vereinbaren.
Wir bitten um Verständnis, dass Ihre Anfrage nur bei vollständiger Angabe der Kontaktdaten und Vorlage einer Mieterselbstauskunft bearbeitet werden kann.
Moderne 3-Zimmer-Wohnung mit Aufzug, Tiefgarage und Süd-Balkon in Heuchlingen
73572 Heuchlingen
Die vollständige Adresse der Immobilie erhalten Sie vom Anbieter.
Auf Karte anzeigen
Die vollständige Adresse der Immobilie erhalten Sie vom Anbieter.
Infos
| Wohnungskategorie | Etagenwohnung |
|---|---|
| Etagenzahl | 4 |
| Wohnfläche ca. | 97 m2 |
| Zimmer | 3 |
| Schlafzimmer | 2 |
| Badezimmer | 1 |
Kosten
| Kaltmiete |
1.060 € |
|---|---|
| Nebenkosten | + 140 € |
| Heizkosten | + 120 € |
| Gesamtmiete | 1.320 € |
Weiter mieten oder doch kaufen?
Wer in Miete wohnt, überweist dem Vermieter im Laufe der Jahre hohe Summen, die sich
auch in die eigenen vier Wände investieren lassen könnten.
Bausubstanz & Energieausweis
| Baujahr | 2023 |
|---|---|
| Objektzustand | Erstbezug |
| Qualität der Austattung | Gehoben |
| Heizungsart | Fußbodenheizung |
| Energieausweis | liegt vor |
| Energieausweistyp | Bedarfsausweis |
| Energieverbrauchskennwert | 17,8 kWh/(m²*a) |
| Energieeffizienzklasse | A+ |
17,8
kWh/(m²*a)
Energieeffizienzklasse A+
- A+
- A
- B
- C
- D
- E
- F
- G
- H
- 0
- 25
- 50
- 75
- 100
- 125
- 150
- 175
- 200
- 225
- >250
Beschreibung des Objekts
Ausstattung
- 10 Wohnungen in Heuchlingen (2022/2023)
- 1 Wohnung im 1 OG verfügbar ab 15.10.2025
- A+ Energie-Standard
- Wesentlicher Energieträger Luft-Wärmepumpe
- großzügiger Balkon
- Hausmeister betreut
- Fußbodenheizung
- elektrische Rollläden
- zwei Tiefgaragenstellplätze je Wohneinheit sind separat auf Anfrage zu mieten (70 € je Stellplatz)
- die hochwertige Einbauküche kann vom Vormieter nach Absprache entgeltlich übernommen werden
Lage
Die Gemeinde Heuchlingen liegt im ländlichen Raum des Ostalbkreises zwischen den großen Städten Aalen (14 km) und Schwäbisch Gmünd (14 km). Die Gesamtfläche beträgt insgesamt, 903 ha. Die verkehrsmäßige Anbindung und die Versorgung durch den ÖPNV ist als gut zu bezeichnen. Der nächste Bahnhof befindet sich in nur 4 km Entfernung in Mögglingen. Bei der Gemeinde Heuchlingen handelt es sich vorwiegend um eine Wohngemeinde, die aufgrund der herrlichen Landschaft auch „Perle des Leintals“ genannt wird. In den letzten Jahren hat die Gemeinde eine Vielzahl von Preisen im Wettbewerb „Unser Dorf soll schöner werden – unser Dorf hat Zukunft“ gewonnen.
Heuchlingen hat verschiedenste Handwerksbetriebe und kleinere Unternehmen. Große Industrieunternehmen sind nicht vorhanden. Die Gemeinde verfügt über eine sehr gute öffentliche Infrastruktur. Die öffentlichen Einrichtungen wie Schule, Sportanlagen und Verwaltung zeichnen sich durch einen guten Zustand und eine sehr zentrale Lage aus.
Sonstige Angaben
Alle Angaben in diesem Exposé wurden sorgfältig und so vollständig wie möglich gemacht. Gleichwohl kann das Vorhandensein von Fehlern nicht ausgeschlossen werden. Die Angaben in diesem Exposé erfolgen daher ohne jede Gewähr. Maßgeblich sind die im Mietvertrag geschlossenen Vereinbarungen. Soweit die Grundrissgrafiken Maßangaben und Einrichtungen enthalten, wird auch für diese jegliche Haftung ausgeschlossen.
GERNE BETREUEN WIR AUCH IHRE IMMOBILIEN
Mail: anja.leese@wuestenrot.de
Mobil: 0173 6901492
Grundriss
Grundriss_1.OG
>
>
Adresse
73572 Heuchlingen
Interessante Orte
Preis- und Lageinformationen
Preistrend für Bestandsimmobilien in Heuchlingen