Details
Objektbeschreibung
Objektbeschreibung
Auf der Grenze zwischen St. Magnus und Grohn befindet sich dieses großzügige,
freistehende Einfamilienhaus. Die Windmühlenstraße ist eine kleine, ruhige Anliegerstraße, die als Sackgasse endet. Die infrastrukturelle Lage ist sehr gut. Die Bremer City erreichen Sie mit der Deutschen Bahn in ca. 15 Minuten, ebenfalls kurzfristig erreichbar ist die A27. Geschäfte des täglichen Bedarfs, sowie Schulen, Kindergärten und die Jacobs University sind fussläufig zu erreichen. Wir weisen in diesem Exposé stichwortartig auf folgende Besonderheiten hin: Enegetische Sanierung Dach und Fenster Südseite-Anbau 2023, - großzügiger, sonniger Garten - großzügiger Wohnbereich - Wohnküche, hell und modern, ca. 27,5 m² - Gäste-WC mit Dusche - Sauna - Bad mit Wanne, Dusche, Bidet und zwei Fenstern sowie Fußbodenheizung - Kaminanschluss im Wohnbereich möglich - Fußbodenbelag im Erdgeschoss: Fliesen mit Fußbodenheizung - Fußbodenbelag im Obergeschoss/Dachgeschoss: Holzdielen - Malerarbeiten werden vor Bezug komplett ausgeführt. Dieses sehr schöne, freistehende Einfamilienhaus bietet Ihnen viele individuelle Wohnmöglichkeiten. Wenn Sie ein ernsthaftes Mietinteresse haben, sollten Sie unbedingt eine Innenbesichtigung mit uns vereinbaren.
Sonstiges
RAUMAUFTEILUNG
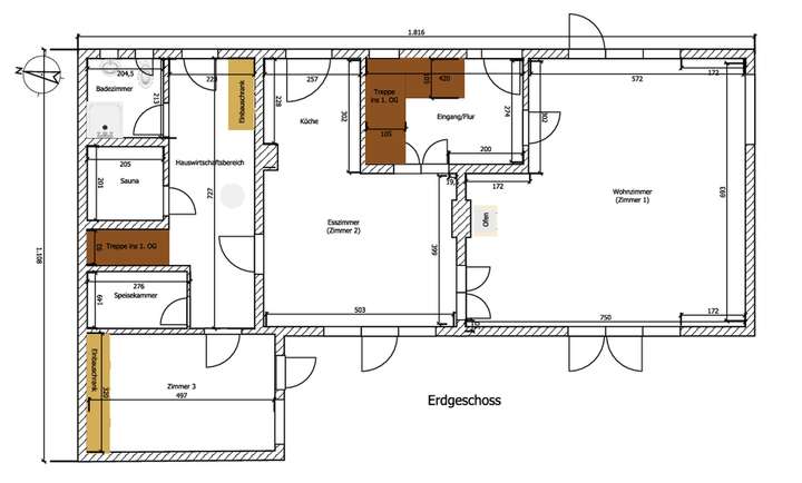
Räumliche Aufteilung: Erdgeschoss: - Wohnbereich ca. 47 m²( zur Zeit in zwei Räume aufgeteilt, kann bei Bedarf zu Einem werden) - Wohnküche ca. 27,5 m² - Zimmer ca. 16 m² - Gäste-WC ca. 4 m² - Sauna ca. 4 m² - Diele ca. 11 m² - Abstellraum-Speisekammer ca. 4 m² - Hauswirtschaftsraum ca. 15 m² Erdgeschoss gesamt ca. 128 m²
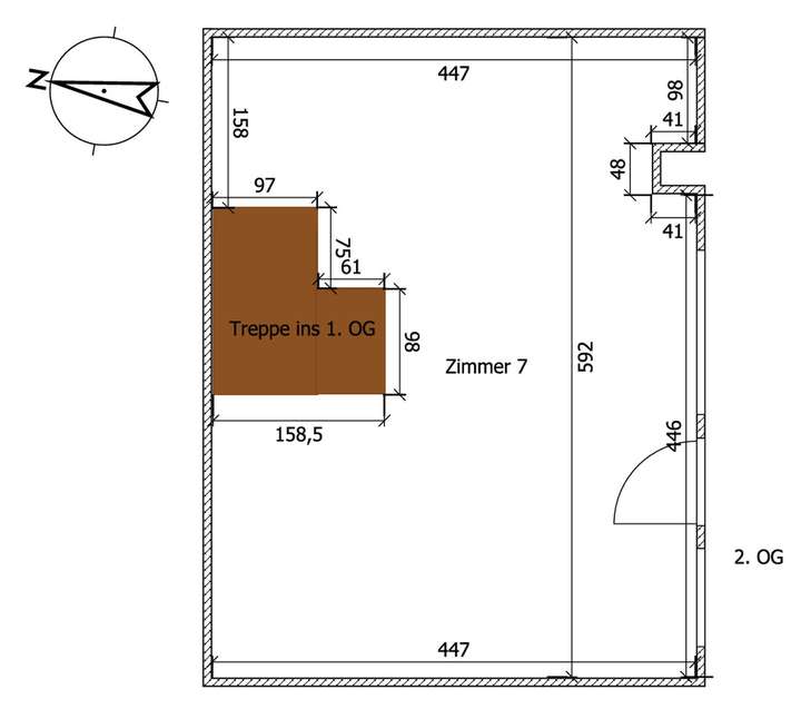
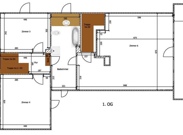
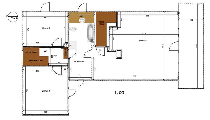
Obergeschoss: - Zimmer ca. 41m² - Zimmer ca. 17 m² - Zimmer ca. 11 m² - Bad ca. 15 m² - Diele ca. 4 m² Obergeschoss gesamt ca. 97 m² - Spitzboden 1 Zimmer ca. 14 m² - Dachboden über Badezimmer - Begehbare Dachterasse ca. 20 m² Begehbare Dachterasse ca. 3 m²
Weniger anzeigen
Weitere Informationen
Stichworte
Anzahl Terrassen: 2
Haus mit Garten und Garage
28759 Bremen
Die vollständige Adresse der Immobilie erhalten Sie vom Anbieter.
Auf Karte anzeigen
Die vollständige Adresse der Immobilie erhalten Sie vom Anbieter.
Infos
| Haustyp | Einfamilienhaus |
|---|---|
| Etagenzahl | 2 |
| Wohnfläche ca. | 210 m2 |
| Nutzfläche | 210 m2 |
| Grundstücksfläche | 600 m2 |
| Bezugsfrei ab | 01.05.2026 |
| Zimmer | 8 |
| Schlafzimmer | 6 |
| Badezimmer | 2 |
| Garage/Stellplatz | Garage |
| Anzahl Garage/Stellplatz | 1 |
Kosten
| Kaltmiete |
2.100 € |
|---|---|
| Nebenkosten | + 150 € |
| Heizkosten | keine Angabe |
| Gesamtmiete | 2.250 € |
| Kaution o. Genossenschaftsanteile | 4200 EUR |
Weiter mieten oder doch kaufen?
Wer in Miete wohnt, überweist dem Vermieter im Laufe der Jahre hohe Summen, die sich
auch in die eigenen vier Wände investieren lassen könnten.
Bausubstanz & Energieausweis
| Baujahr | 1993 |
|---|---|
| Objektzustand | Vollständig Renoviert |
| Wesentliche Energieträger | Gas |
| Energieausweis | liegt vor |
| Energieausweistyp | Verbrauchsausweis |
| Energieverbrauchskennwert | 77,7 kWh/(m²*a) |
| Energieeffizienzklasse | C |
77,7
kWh/(m²*a)
Energieeffizienzklasse C
- A+
- A
- B
- C
- D
- E
- F
- G
- H
- 0
- 25
- 50
- 75
- 100
- 125
- 150
- 175
- 200
- 225
- >250
Beschreibung des Objekts
Ausstattung
Terrasse, Garten, Dachterrasse, Vollbad, Duschbad, Sauna, Einbauküche, Gäste-WC, Kamin, Fliesen, Sonstiges (s. Text)
Lage
Weitere Bilder und Grundrisse
https://www.ohne-makler.net/immobilie/bremen-grosses-einfamilienhaus-in-guter-lage/
Infrastruktur (im Umkreis von 5 km):
Apotheke, Lebensmittel-Discount, Allgemeinmediziner, Kindergarten, Grundschule, Hauptschule, Realschule, Gymnasium, Gesamtschule, Öffentliche Verkehrsmittel
Sonstige Angaben
Heizungsart: Fußbodenheizung
Energieträger: Gas
Glasfaseranschluß
Enegetische Sanierung 2023
Vermietung an Gewerbe möglich
ohne-makler (OM) ist weder Anbieter noch Vermittler der Immobilie. OM betreibt eine Plattform für Immobilieneigentümer, die unter anderem die gleichzeitige Veröffentlichung einzelner Inserate auf mehreren Immobilienportalen ermöglicht. Die Inhalte dieser Inserate werden ausschließlich von Dritten verantwortet. Für die Richtigkeit, Vollständigkeit oder Rechtmäßigkeit der Angaben übernimmt OM keine Haftung. Hinweise auf mögliche Rechtsverstöße können jederzeit gemeldet werden und werden nach Prüfung umgehend bearbeitet.
Grundriss
Grundriss EG
>
>
Grundriss 1.OG
>
>
Grundriss 2. EG
>
>
Adresse
28759 Bremen
Interessante Orte
Preis- und Lageinformationen
Preistrend für Bestandsimmobilien in St. Magnus