Diese weitläufige Maisonette-Wohnung befindet sich in ruhiger Lage am Rand der historischen Altstadt von Ehingen und eignet sich hervorragend als Mitarbeiterwohnung oder für eine Mitarbeiter-Wohngemeinschaft.
Die Wohnung verfügt über eine voll ausgestattete Einbauküche. Derzeit sind mehrere Einzelzimmer durch Rigipswände abgetrennt, wodurch jeder Bewohner ein hohes Maß an Privatsphäre genießt. Auf Wunsch können diese Zwischenwände entfernt werden, um eine individuelle Raumgestaltung nach den Bedürfnissen Ihres Teams zu ermöglichen.
Parkmöglichkeiten:
Direkt am Gebäude stehen keine Stellplätze zur Verfügung. Jedoch können mehrere Stellplätze in der gegenüberliegenden Tiefgarage für jeweils 50,00 € monatlich angemietet werden.
Flexible Wohnlösung für Unternehmen – große WG-Wohnung zu vermieten
89584 Ehingen (Donau)
Die vollständige Adresse der Immobilie erhalten Sie vom Anbieter.
Auf Karte anzeigen
Die vollständige Adresse der Immobilie erhalten Sie vom Anbieter.
Infos
| Etage | 2 von 2 |
|---|---|
| Wohnfläche ca. | 263 m2 |
| Bezugsfrei ab | 01.112025 |
| Zimmer | 10 |
| Haustiere | Nach Vereinbarung |
Kosten
| Kaltmiete |
2.100 € |
|---|---|
| Nebenkosten | + 400 € |
| Heizkosten | in Nebenkosten enthalten |
| Gesamtmiete | 2.500 € |
Weiter mieten oder doch kaufen?
Wer in Miete wohnt, überweist dem Vermieter im Laufe der Jahre hohe Summen, die sich
auch in die eigenen vier Wände investieren lassen könnten.
Bausubstanz & Energieausweis
| Baujahr | unbekannt |
|---|---|
| Objektzustand | Nach Vereinbarung |
| Qualität der Austattung | Einfach |
| Wesentliche Energieträger | Öl |
| Energieausweis | liegt zur Besichtigung vor |
Beschreibung des Objekts
Lage
Die Wohnung befindet sich in attraktiver Randlage der Ehinger Altstadt und verbindet ruhiges Wohnen mit der Nähe zum urbanen Leben. In wenigen Gehminuten erreichen Sie das Stadtzentrum mit zahlreichen Einkaufsmöglichkeiten, Cafés, Restaurants und Dienstleistern. Auch der Bahnhof sowie Bushaltestellen sind bequem zu Fuß erreichbar und bieten eine gute Anbindung an den öffentlichen Nahverkehr.
Die Umgebung ist geprägt von einer angenehmen Mischung aus Wohn- und Geschäftshäusern sowie grünen Innenhöfen. Für Berufspendler oder Unternehmen, die eine zentrale und dennoch ruhige Unterkunft für ihre Mitarbeitenden suchen, bietet diese Lage ideale Voraussetzungen.
Sonstige Angaben
Ein Energieausweis ist derzeit nicht vorhanden, wird jedoch aktuell erstellt.
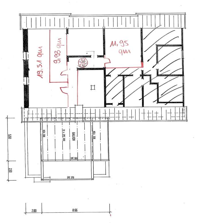
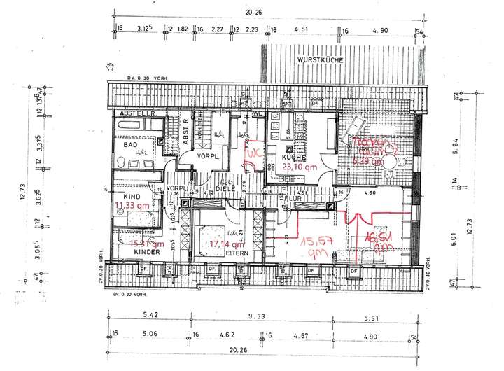
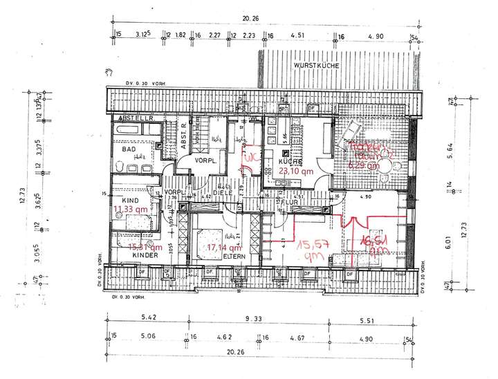
Grundriss
Grundriss 2. OG
>
>
Grundriss DG
>
>
Adresse
89584 Ehingen (Donau)
Interessante Orte
Preis- und Lageinformationen
Preistrend für Bestandsimmobilien in Ehingen (Donau)