• die Doppelhaushälften wurden in massiv konventioneller Bauweise nach KfW 55 Standard erstellt – dieses steht für den KfW-Effizienzhaus-Standard 55
• ein Vollgeschoss mit voll ausgebautem Dachgeschoss und ausgedieltem Spitzboden als großzügige Abstellfläche
• klassisches Satteldach mit anthrazitfarbener Pfanneneindeckung
• ansprechend weiß gestrichene Putzfassade
• 3-fach verglaste Kunststofffenster, außen elegant dunkel gehalten
• die Beheizung der Häuser erfolgt über eine effiziente Luft- Wärmepumpe von 2025
• dezentrale Be- und Entlüftungsanlage mit Staubfilter
• komfortable Fußbodenheizung im gesamten Haus
• ein bedarfsorientierter Energieausweis liegt vor: Endenergiebedarf: 19,25 kWh/ (m²*a), Primärenergiebedarf: 41,55 kWh/ (m²*a);
Klasse A+
• jeweils zwei Pkw- Stellplatz sowie ein Gartenhaus gehören zum Haus
• in den großen Hauswirtschaftsräumen im Erdgeschoss befinden sich u.a. die Anschlüsse für die Waschmaschinen
...Neubau Erstbezug! Attraktive DHH in KfW 55 Standard mit Süd- West Terrassen und Stellplätzen
Hamburger Str. 66d,e,
21493 Schwarzenbek
Auf Karte anzeigen
Infos
| Haustyp | Doppelhaushaelfte |
|---|---|
| Wohnfläche ca. | 104 m2 |
| Nutzfläche | 6 m2 |
| Grundstücksfläche | 150 m2 |
| Bezugsfrei ab | 01. Februar 2026 |
| Zimmer | 4 |
| Anzahl Garage/Stellplatz | 2 |
Kosten
| Kaltmiete |
1.600 € |
|---|---|
| Nebenkosten | + 350 € |
| Heizkosten | in Nebenkosten enthalten |
| Gesamtmiete | 1.950 € |
| Kaution o. Genossenschaftsanteile | 4.800,00 |
Weiter mieten oder doch kaufen?
Wer in Miete wohnt, überweist dem Vermieter im Laufe der Jahre hohe Summen, die sich
auch in die eigenen vier Wände investieren lassen könnten.
Bausubstanz & Energieausweis
| Baujahr | 2025 |
|---|---|
| Heizungsart | Wärmepumpe |
| Wesentliche Energieträger | expose.parameter.energySourcesEnev2014.HEAT_SUPPLY |
| Energieausweis | liegt vor |
| Energieausweistyp | Bedarfsausweis |
| Energieverbrauchskennwert | 19,3 kWh/(m²*a) |
| Energieeffizienzklasse | A+ |
19,3
kWh/(m²*a)
Energieeffizienzklasse A+
- A+
- A
- B
- C
- D
- E
- F
- G
- H
- 0
- 25
- 50
- 75
- 100
- 125
- 150
- 175
- 200
- 225
- >250
Beschreibung des Objekts
Ausstattung
Ausstattung der jeweiligen Häuser:
• der Eingangsbereich ist gegliedert in einen Flur als Empfangsbereich mit praktischer Garderobenmöglichkeit und Zugang zu allen Räumen im Erdgeschoss
• lichtdurchfluteter Wohn-/ Essbereich mit großer Fensterfront und zwei Ausgängen auf die Terrasse mit optimaler Süd- West Ausrichtung
• offene moderne Einbauküche mit viel Staufläche und allen erforderlichen Elektrogeräten inkl. Geschirrspüler
• im Erdgeschoss befindet sich ein Gäste-WC, im Dachgeschoss ein Duschbad mit großer Glasdusche - beide Bereiche sind geschmackvoll ausgestattet und verfügen über Fenster
• eine geschlossene und geflieste Betontreppe führt vom Erdgeschoss in das Dachgeschoss
• dort befinden sich drei Zimmer mit guten Raumgrößen sowie das Bad
• die Böden sind mit Fliesen oder Designbelag in Holzoptik ausgestattet
• zeitgemäß weiße Türen und Zargen
• die Wände und Decken sind glatt gespachtelt, mit Malervlies tapeziert und weiß gestrichen
• alle Wohnräumen verfügen über einen Netzwerkanschluss und schnelles Glasfaser liegt bereits im Haus
• bitte beachten Sie: die Miete sollte aus eigenem Arbeitseinkommen bezahlt werden können und Hunde sind hier leider nicht gewünscht
Lage
• die Immobilie befindet sich in einem gewachsenem Wohngebiet von Schwarzenbek – in nur ca. 700 m erreichen Sie fußläufig die Innenstadt
• die Stadt bietet ihren ca. 17.000 Einwohnern eine hervorragende Infrastruktur mit attraktiven Boutiquen, Restaurants, Supermärkten und allen Annehmlichkeiten urbanen Lebens
• Kindergärten, Grundschulen und weiterführende Schulen wie die Gemeinschaftsschule und die Europaschule Gymnasium Schwarzenbek sind fußläufig oder mit dem Fahrrad schnell zu erreichen
• Sie haben mit der Bahn direkte Anbindung in die Hamburger Innenstadt, in ca. 25 Minuten sind Sie schon an der Alster, am Jungfernstieg oder Rathausmarkt
• in Schwarzenbek und Umgebung erwarten Sie vielfältige Sport- und Freizeitangebote wie z.B. Tennis, Handball und Fußball sowie der nahegelegene Golf-/ und Countryclub
• der Sachsenwald und der nahe Elbstrand bei Geesthacht laden zum Radeln, Joggen oder zu ausgiebigen Spaziergängen ein
• mit dem Auto sind Sie in nur einer Stunde an der Ostsee oder in der Holsteinischen Schweiz
Sonstige Angaben
Diese beiden attraktiven Doppelhaushälften vor den Toren Hamburgs sind neu gebaut und befinden sich in einer gewachsenen Wohnlage von Schwarzenbek.
Sie bestechen durch Ihre klar gegliederten Grundrisse ebenso wie durch die neue und moderne Gesamtausstattung.
Die Häuser lassen wenig Wünsche offen: erstellt in energieeffizienter Bauweise mit Kfw 55 Standard und Luftwärmepumpe, komfortabler Lüftungsanlage, angenehmer Fußbodenheizung, großzügigem Wohn-/ Essbereich mit offener moderner Einbauküche, geschmackvolle Bodenbelägen, Terrasse mit optimaler Süd- West Ausrichtung, zwei Pkw- Stellplätze usw…..
... anschauen, einziehen und sich wohlfühlen!
Eine Besichtigung ist sehr zu empfehlen und gerne mit unserem Büro zu vereinbaren.
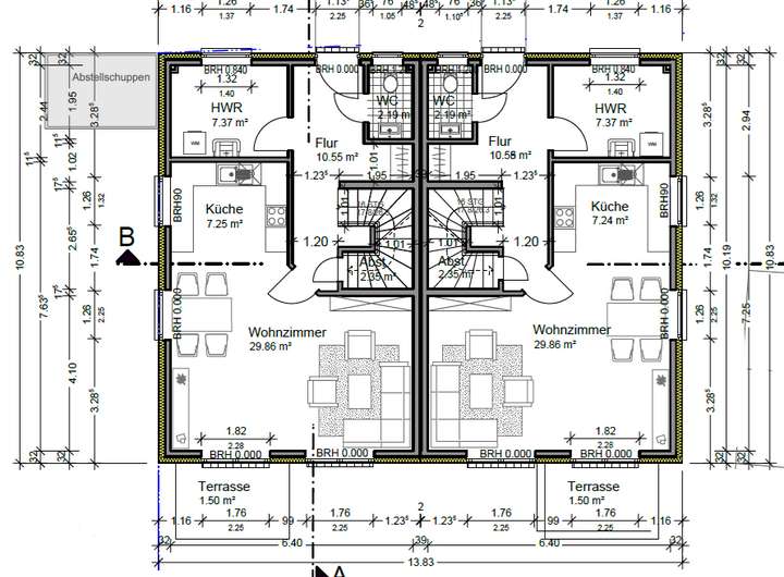
Grundriss
Grundriss Erdgeschoss
>
>
Grundriss Dachgeschoss
>
>
Adresse
Hamburger Str. 66d,e, 21493 Schwarzenbek
Interessante Orte
Preis- und Lageinformationen
Preistrend für Bestandsimmobilien in Schwarzenbek