Dieses stilvolle Apartment befindet sich in einem kernsanierten Gebäude, das modernen Wohnkomfort mit historischem Charme verbindet.
Die Sanierung umfasste sämtliche Leitungen, Fenster, Dämmung sowie eine moderne Heizungsanlage, sodass das Gebäude höchsten energetischen Standards entspricht.
Das Apartment überzeugt mit einem gut durchdachten Grundriss und einer hochwertigen Ausstattung. Die offene Wohnküche ist bereits mit einer modernen Einbauküche inklusive Elektrogeräten ausgestattet. Der Wohn- und Schlafbereich bietet durch seine große Fensterfront viel Tageslicht und eine angenehme Atmosphäre.
Das Badezimmer wurde mit hochwertigen Fliesen, einer bodengleichen Dusche und stilvollen Armaturen versehen.
Hochwertiger Vinylboden sorgt für ein angenehmes Wohngefühl.
Das Apartment eignet sich ideal für Singles, Berufspendler oder Studierende. Haustiere nach Absprache.
Haben wir Ihr Interesse geweckt? Vereinbaren Sie gerne einen Besichtigungstermin!
Einziehen und wohlfühlen, modernes und barrierefreies 1-Raum Appartement im Herzen von Gladbeck
45964 Gladbeck
Die vollständige Adresse der Immobilie erhalten Sie vom Anbieter.
Auf Karte anzeigen
Die vollständige Adresse der Immobilie erhalten Sie vom Anbieter.
Infos
| Wohnungskategorie | Etagenwohnung |
|---|---|
| Etage | 3 von |
| Wohnfläche ca. | 35 m2 |
| Bezugsfrei ab | 01.09.2025 |
| Zimmer | 1 |
| Schlafzimmer | 1 |
| Badezimmer | 1 |
Kosten
| Kaltmiete |
624 € |
|---|---|
| Nebenkosten | + 105 € |
| Heizkosten | in Nebenkosten enthalten |
| Gesamtmiete | 729 € |
| Kaution o. Genossenschaftsanteile | 2MM |
Weiter mieten oder doch kaufen?
Wer in Miete wohnt, überweist dem Vermieter im Laufe der Jahre hohe Summen, die sich
auch in die eigenen vier Wände investieren lassen könnten.
Bausubstanz & Energieausweis
| Baujahr | 2025 |
|---|---|
| Letzte Sanierung | 2025 |
| Objektzustand | Erstbezug nach Sanierung |
| Qualität der Austattung | Gehoben |
| Heizungsart | Wärmepumpe |
| Energieausweis | liegt vor |
| Energieausweistyp | Bedarfsausweis |
| Energieverbrauchskennwert | 33,8 kWh/(m²*a) |
| Energieeffizienzklasse | A |
33,8
kWh/(m²*a)
Energieeffizienzklasse A
- A+
- A
- B
- C
- D
- E
- F
- G
- H
- 0
- 25
- 50
- 75
- 100
- 125
- 150
- 175
- 200
- 225
- >250
Beschreibung des Objekts
Ausstattung
- Barrierefrei
- Moderne Einbauküche mit Herd, Backofen, Mikrowelle, Kühlschrank und Spülmaschine
- Hochwertiger Bodenbelag
- Loggia
- Badezimmer mit bodengleicher Dusche und stilvollen Armaturen und Badunterschrank
- Energieeffiziente Fenster für optimale Schalldämmung
- bedarfsgerechte Hybridlüftung
- Fußbodenheizung
- Personenaufzug
- Schließsytem mit Videosprechanlage und Airkey
- Schnelles Internet dank Glasfaseranschluss
- Fahrradstellplatz / Kellerabteil
- KFZ Stellplatz kann dazu gemietet werden
Lage
Die hier angebotene Wohnung befindet sich im Stadtzentrum von Gladbeck .
Alle Einkaufsmöglichkeiten, Ärzte, Schulen usw. sind in nur wenigen Minuten fußläufig erreichbar.
Durch die unmittelbare Nähe zum Grüngürtel der Stadt, beginnen Spaziergänge und ausgedehnte Fahrradtouren direkt vor der Haustür.
Die Autobahnen A2, A31, A52 und Schnellstraße B224, erreichen Sie innerhalb weniger Fahrminuten und verbinden Sie mit den umliegenden Städten.
Sonstige Angaben
Alle in diesem Angeboten enthaltenen Angaben,
Abmessungen und Preisangaben beruhen auf Angaben
des Eigentümers (oder eines Dritten). Eine Haftung
hierfür wird ausgeschlossen.
Weitere Interessante Angebote finden Sie unter www.pier-immobilien.de
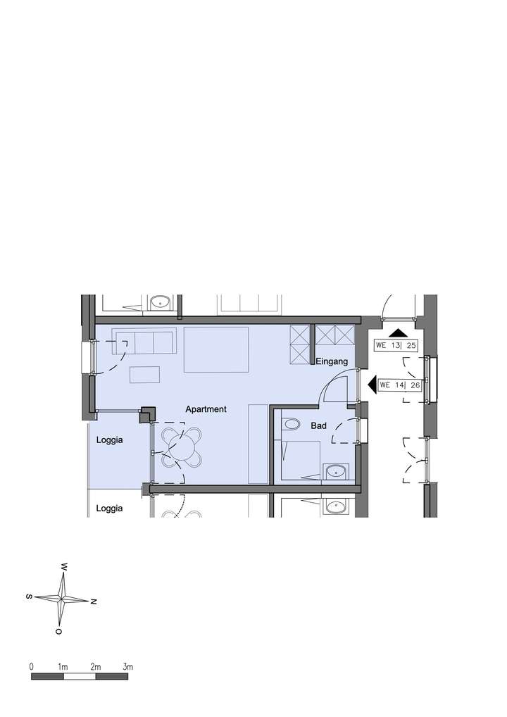
Grundriss
Grundriss-WE 14_26
>
>
Adresse
45964 Gladbeck
Interessante Orte
Preis- und Lageinformationen
Preistrend für Bestandsimmobilien in Gladbeck