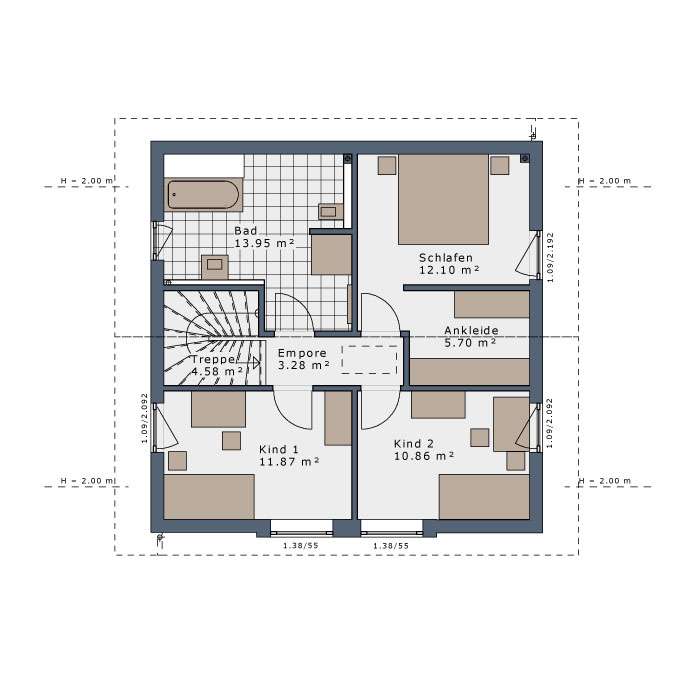
Das großzügige Einfamilienhaus besticht durch die modernen, großflächigen Fenster, die viel Licht ins Innere lassen und zum Verweilen mit Familie und Freunden einladen. Wohnen, Essen und Kochen bilden im Erdgeschoss eine Einheit und bieten über die Terrasse direkten Zugang in den Garten, sodass Sie Ihre Kinder stets im Blick haben. Im Erdgeschoss befinden sich außerdem ein Technikraum sowie ein Gäste-WC. Im Dachgeschoss gibt es keinen Streit um die Auswahl der Zimmer, denn diese sind nahezu gleich groß und im großzügigen Wellness-Bad gibt es am Morgen auch kein Gedränge.
Ohne Eigenkapital möglich. Mietkaufimmobilie abzugeben.
34127 Kassel
Die vollständige Adresse der Immobilie erhalten Sie vom Anbieter.
Auf Karte anzeigen
Die vollständige Adresse der Immobilie erhalten Sie vom Anbieter.
Infos
| Haustyp | Einfamilienhaus |
|---|---|
| Wohnfläche ca. | 120 m2 |
| Nutzfläche | 0 m2 |
| Grundstücksfläche | 679 m2 |
| Zimmer | 4 |
| Schlafzimmer | 3 |
| Badezimmer | 1 |
| Anzahl Garage/Stellplatz | 1 |
Kosten
| Kaltmiete |
1.390 € |
|---|---|
| Nebenkosten | keine Angabe |
| Heizkosten | keine Angabe |
| Gesamtmiete | 1.390 € |
Weiter mieten oder doch kaufen?
Wer in Miete wohnt, überweist dem Vermieter im Laufe der Jahre hohe Summen, die sich
auch in die eigenen vier Wände investieren lassen könnten.
Bausubstanz & Energieausweis
| Baujahr | 2026 |
|---|---|
| Qualität der Austattung | Gehoben |
| Heizungsart | Wärmepumpe |
Beschreibung des Objekts
Ausstattung
Neben kurzen Bauzeiten, innovativer Haustechnik, attraktiver Architektur und hochwertiger Manufaktur-Qualität bietet Ihnen das angebotene Schwabenhaus im “Green-Edition” All-Inclusive-Paket folgende Mehr-Werte:
- Bodenplatte inkl. Effizienzhaus 55 Perimeter-Dämmung unterhalb der Bodenplatte sowie stirnseitig
- Klima-Komfort-Bauweise für das Effizienzhaus 55
- Zimmermannsmäßiges Pfettendach
- Photovoltaik-Vorbereitung für die Ausführung eines Photovoltaik-Systems
- Komplette Elektro-, Sanitär- und Heizungs-Installation inkl. Grundinstallation für das Schwabenhaus auf Schwabenhaus-Bodenplatte bzw. -Keller*
- Zukunftsweisende Elektro-Installation*
- Abgeschirmte Lichtleitungen für moderne, störungsfreie Beleuchtung und Lichtszenarien
- Rollläden im Erd- und Obergeschoss Ihres Schwabenhauses
- Doppel-Wärmepumpe Eco* für Heizen, Kühlen, Lüften, Luftreinigung und Warmwasser
- Schwimmender Estrich mit Wärmedämmung*
- Blower-Door Test zur Überprüfung der Luftwechselrate*
- Klima-Komfort-Außenwand mit über 200 Putzfarben zur Auswahl
- Hochwertige, mehrschichtige Holz-Haustür in vielfältigen Design-Lösungen, mit Sicherheitsschließzylinder, 5-fach- Sicherheits-Verriegelung und 3-Scheiben-Wärmeschutzverglasung
- Kunststoff-Fenster mit 3-Scheiben- Wärmeschutzverglasung
- Dachflächenfenster mit Kipp- und Schwingfunktion sowie elektrischen Rollläden*, wenn laut Grundriss enthalten
- Außenfensterbänke aus Naturstein
- Innenfensterbänke aus Kunst- oder Naturstein*
- Massiv-Vollholz-Treppe
- Protect Versicherungs-Paket mit Wohngebäude-Versicherung inkl. Elementarschutz, Haus- und Wohnungs-Schutzbrief, Bauleistungs-Versicherung und Bauherren-Haftpflichtversicherung sowie Job-Protect Versicherungs-Paket
- 10 sowie 30 Jahre Gewährleistung gemäß Definition in der Schwabenhaus Bau- und Leistungsbeschreibung
*Ab Ausbaustufe "Fast-Vollendet"
¹Beim Effizienzhaus 40 Kühlung nur in Verbindung mit optionaler PV-Anlage.
Die aufgeführten Mehr-Werte und Leistungsinhalte beziehen sich ausschließlich auf das in der Schwabenhaus Bau- und Leistungsbeschreibung (BLB) beschriebene Technologie + Komfort-Paket "Green -Edition". Die Mehr-Werte und Leistungsinhalte anderer Schwabenhaus Bau- und Leistungsbeschreibungen bzw. Technologie + Komfort-Pakete können hiervon abweichen.
Lage
.
Sonstige Angaben
Vereinbaren Sie einen persönlichen Beratungstermin, um über Ihren Haustraum und das angebotene Objekt zu sprechen.
Bitte beachten Sie, dass die dargestellten Bilder und Grundrisse nur beispielhaft sind und unter Umständen Sonderbauteile enthalten, die nicht im aufgerufenen Preis inkludiert sind.
Haben Sie außerdem Verständnis dafür, dass erst nach dem persönlichen Gespräch weitere Details zu dem angebotenen Grundstück bekanntgegeben werden und dass nur vollständige Anfragen bearbeitet werden können.
Anbauteile, Carport, Garage und Keller können Extras sein, die als Sonderausstattung angeboten werden. Abbildungen, Grundrisse und Flächenangaben sind beispielhaft und können Extras zeigen. Flächenangaben nach DIN 277.
Profitieren Sie jetzt von der Schwabenhaus Online Beratung und verwirklichen Sie Ihr Traumhaus https://www.schwabenhaus.de/anmeldung-hausbau-beratung-online/
Grundriss
Erdgeschoss
>
>
Obergeschoss
>
>
Adresse
34127 Kassel
Interessante Orte
Preis- und Lageinformationen
Preistrend für Bestandsimmobilien in Philippinenhof-Warteberg